Menu
Skûlestrjitte 33 Mitselwier - Hoofdafbeelding.jpg
A

Tonen op kaart

Brochure

Beschikbaar: Skûlestrjitte 33, Mitselwier

Mitselwier Skûlestrjitte 33

246 m² woonoppervlakte

575 m² perceeloppervlakte

10 kamers, waarvan 9 slaapkamers

Levensloopbestendig wonen met garage én gastenverblijf

€ 495.000

k.k.

Beschikbaar

Geïnteresseerd in dit object?

Vraag eenvoudig een bezichtiging aan!

Interesse in woning

Omschrijving

Zelden zie je een woning die écht alles heeft: ruimte, privacy, comfort én een uitzicht waar je stil van wordt. Aan de rustige Skûlestrjitte in het sfeervolle dorp Mitselwier (Metslawier) staat deze onder architectuur gebouwde vrijstaande woning uit 1993 welke in 1999 uitgebouwd is. Dit is een perfect thuis voor wie op zoek is naar mogelijkheden op maar liefst 246 m² gebruiksoppervlakte, en de beschikking heeft over een aangebouwde garage met verlengde schuur van 33 m², energielabel A en een perceel van 575 m².

Een huis dat meegroeit met jouw wensen:
Gelijkvloers wonen? Een gastenverblijf of kantoor aan huis? Grote gezinnen of veel hobbyruimte? Deze woning past zich moeiteloos aan jouw levensfase aan. Op de begane grond vind je namelijk een gastenverblijf, bestaande uit 2 (slaap)kamers met een eigen badkamer. Ook ideaal voor gebruik als mantelzorgwoning of levensloopbestendig wonen.

Zeven (slaap)kamers boven:
De indeling is flexibel en slim doordacht. De ruime zijbeuk aan de woning maakt het plaatje compleet. Op de bovenverdiepingen zijn in totaal maar liefst 7 (slaap)kamers aanwezig. Ideaal voor gezinnen, werken aan huis, logees of hobbyruimtes.

Duurzaam en praktisch:
Deze woning is klaar voor de toekomst: uitstekend geïsoleerd, deels HR++-beglazing en voorzien van 10 zonnepanelen. De aangebouwde garage met verlengde schuur is ideaal als hobbyruimte, opslag of parkeerplek, en de lange oprit biedt plek voor meerdere auto’s.

De indeling is als volgt:
Begane grond:
Entree via de overdekte voordeur in de linkerzijgevel van de woning; ruime ontvangsthal met meterkast en trapopgang; toiletruimte met toilet en fontein; L-vormige, tuingerichte woon-/eetkamer met veel lichtinval en directe toegang tot de achtertuin; naadloze overgang naar de open keuken met voorraadkast, keuken in wandopstelling plus een luxe kookeiland voorzien van diverse inbouwapparatuur zoals een oven en inductiekookplaat; bijkeuken met cv-ketel, witgoedaansluitingen en achterdeur; vanuit de keuken toegankelijk multifunctioneel gastenverblijf bestaande uit 2 kamers, waarvan 1 met vaste kast en 1 met rechtstreekse toegang tot de badkamer (voorzien van ligbad, douche, wastafel, toilet en handdoekradiator) en inloopkast, en middels openslaande deuren toegang tot het terras en aan de zijkant een loopdeur naar buiten.

Eerste verdieping:
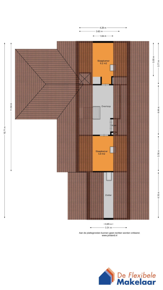
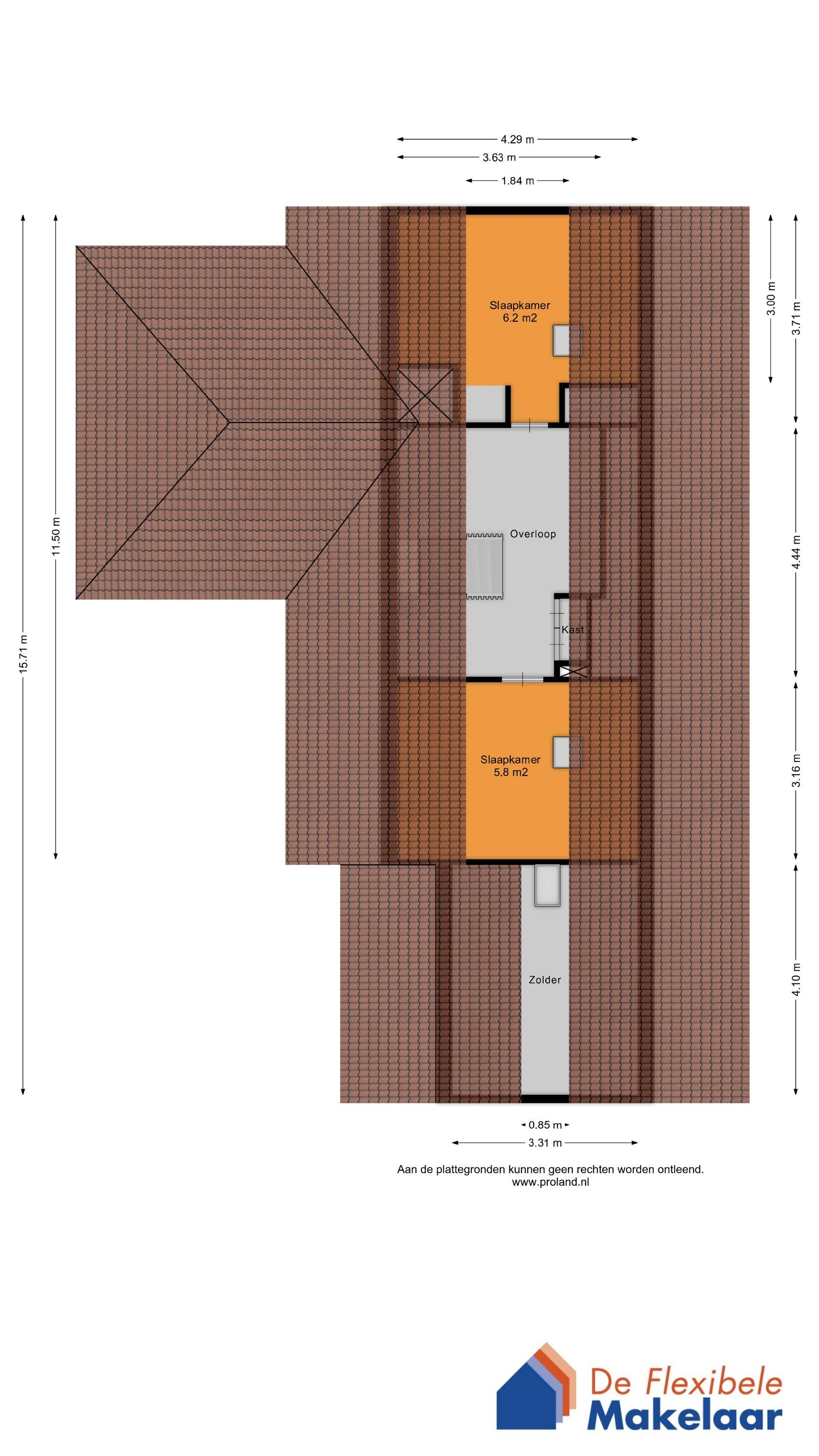
Trapopgang via de trap in de hal beneden; overloop met vaste kast en met toegang tot de badkamer, welke is voorzien van douche, toilet en wastafel; 3 aangrenzende slaapkamers en 2 slaapkamers die via de andere ruimtes bereikbaar zijn. Middels een kleine verbouwing zou elk vertrek vanaf de overloop toegankelijk gemaakt kunnen worden. Ook boven volop mogelijkheden dus!

Tweede verdieping:
Eveneens middels vaste trap bereikbaar (vanaf overloop op de 1e etage); overloop; 2 slaapkamers voorzien van dakramen.

Bergzolder:
Bereikbaar via plafondluik met vlizotrap in de slaapkamer aan de voorzijde van de woning.

Genieten van buiten:
De fraai aangelegde tuin is een oase van rust en groen. Met verschillende zithoekjes, een gazon, sierbeplanting én een vlonderterras aan het water is het hier elke dag genieten. De tuin ligt op het westen, dus dat betekent: uitzicht over de landerijen én spectaculaire zonsondergangen. Het perceel is zeer gunstig ingedeeld, met aan de voorzijde eveneens een tuin met beplanting en terras (momenteel ingericht als buitenruimte voor het gastenverblijf/appartement). De oprit biedt plek aan voldoende auto's, en anders is er aanvullende parkeergelegenheid in de straat aanwezig. Aan het eind van de lange oprit staat de aangebouwde houten garage met kanteldeur en loopdeur naar de tuin. De schuur is voorzien van krachtstroom.

Het dorp en de omgeving:
In het dorp zelf vind je onder andere een basisschool, huisarts, apotheek en diverse sportverenigingen. De rustige, dorpse sfeer maakt het een heerlijke plek om te wonen, met volop ruimte en natuur om je heen. Metslawier is bovendien gunstig gelegen: binnen 10 autominuten ben je in het gezellige centrum van Dokkum, waar je terecht kunt voor bijvoorbeeld een uitgebreid winkelaanbod, horeca en voortgezet onderwijs. Ook het openbaar vervoer is goed geregeld; er zijn busverbindingen richting Dokkum, Kollum en Leeuwarden, waarmee je eenvoudig verder reist binnen de regio. Door de komst van de Centrale As rij je ook zelf met de auto vlot in alle windrichtingen. Voor natuurliefhebbers en watersporters ligt het prachtige Nationaal Park Lauwersmeer op korte afstand, net als de Waddenzee, die je binnen 15 minuten bereikt. Vanuit de nabijgelegen haven van Lauwersoog kun je zelfs voor een dagje strand naar Schiermonnikoog (vaartijd sneldienst circa 20 minuten).

Of je nu gelijkvloers wilt wonen, een gastenverblijf of kantoor aan huis zoekt, of gewoon veel ruimte wenst op een heerlijke plek: Skûlestrjitte 33 te Mitselwier (Metslawier) biedt het allemaal. Mis deze unieke kans niet en plan vandaag nog een bezichtiging met onze flexibele makelaars.

Kenmerken

Soort Eengezinswoning, Vrijstaande woning
Vraagprijs 495.000 k.k.
Aangeboden 5 maanden geleden
Status Beschikbaar
Aanvaarding In overleg

Bekijk alle kenmerken...

Interesse?

Vraag een bezichtiging aan

Bekijk de omgeving

Ontdek de ligging van deze woning

Alle kenmerken

Bouw

Bouwvorm Bestaande bouw
Bouwjaar 1993
Bouwjaar omschrijving Gebouwd in 1993.
Onderhoud (binnen) Goed
Toelichting De woning is goed onderhouden.
Onderhoud (buiten) Goed
Toelichting De woning is goed onderhouden.
Dak Samengesteld dak
Dak materialen Pannen, Bitumineuze dakbedekking
Dak toelichting Samengesteld dak, met pannen gedekt.

Energie

Energielabel A
Einddatum 2028-08-30
Isolatie Dakisolatie, Muurisolatie, Vloerisolatie, Dubbel glas, Gedeeltelijk dubbel glas, Volledig geïsoleerd, Grotendeels dubbel glas, HR-glas
Verwarming CV-ketel
Warm water CV-ketel
C.V.-ketel Intergas HR Gas gestookte combiketel uit 2023 eigendom

Buitenruimte

Ligging Aan water, Aan rustige weg, In woonwijk, Open ligging, Landelijk gelegen
Tuin Achtertuin, Voortuin, Zijtuin, Tuin rondom (Fraai aangelegd)
Tuin oppervlakte 400 m²
Ligging Gelegen op (bereikbaar via achterom)
Parkeren Openbaar parkeren, Op eigen terrein
Parkeren Er is voldoende parkeergelegenheid op eigen terrein en in de omgeving.

Garage

Garage soort Aangebouwd (hout)
Voorzieningen Elektra
Isolatie Geen isolatie
Oppervlakte 33 m² (12.75m diep en 2.76m breed)
Capaciteit 1 auto(s)
Aantal 1

Oppervlakken en inhoud

Perceeloppervlakte 575 m²
Woonoppervlakte 246 m²
Overige ruimten 4 m²
Inhoud 845 m³
Oppervlakte externe bergruimte 33 m²

Indeling

Woonlagen 4 woonlagen
Kamers 10 kamers, waarvan 9 slaapkamers
Badkamers 2 badkamer(s) en 1 aparte toilet(ten)
Badkamervoorzieningen Ligbad, Zitbad, Wastafel, Toiletten 2, Douches 2
Voorzieningen Mechanische ventilatie, TV-kabel, Rookkanaal, Dakraam, Glasvezelkabel, Zonnepanelen, Natuurlijke ventilatie

Bestemming

Huidig gebruik Woonruimte
Huidige bestemming Woonruimte
Permanente bewoning Ja

Schuur / berging

Schuur / berging soort Vrijstaand (hout)
Isolatie Geen isolatie
Aantal 1

Kadaster NIJKERK FRIESLAND C 2264

Oppervlakte 575 m²
Omvang Geheel perceel

Vergelijkbaar in de buurt

...