Menu
Elizabethstraat 12 Leeuwarden - Hoofdafbeelding.jpg
B

Tonen op kaart

Brochure

Verkocht: Elizabethstraat 12, Leeuwarden

Leeuwarden Elizabethstraat 12

145 m² perceeloppervlakte

Verkocht

Geïnteresseerd in dit object?

Vraag eenvoudig een bezichtiging aan!

Interesse in woning

Omschrijving

OPEN HUIS
In verband met de grote belangstelling en het feit dat alles verhuurd is, hebben we besloten een Open Huis te organiseren op donderdag 6 februari van 14:30 tot 17:00 uur. Wij zijn dan met 3 personen aanwezig om u te woord te staan. Aanmelden voor het Open Huis kan via [email protected].

Elizabethstraat 12 en 12b is een goed onderhouden beleggingsobject gelegen op een perfecte locatie in de wijk Vossenpark op loopafstand van het centrum en het centraal station.

Het geheel bestaat uit een nette zelfstandige benedenwoning met stadstuin en een keurige bovenwoning met vier verhuurde kamers. Zowel de benedenwoning als de bovenwoning hebben een energielabel B.

Het appartement op de begane grond van het pand en beschikt over eigen voorzieningen inclusief een stadstuin aan de achterzijde van het appartement.

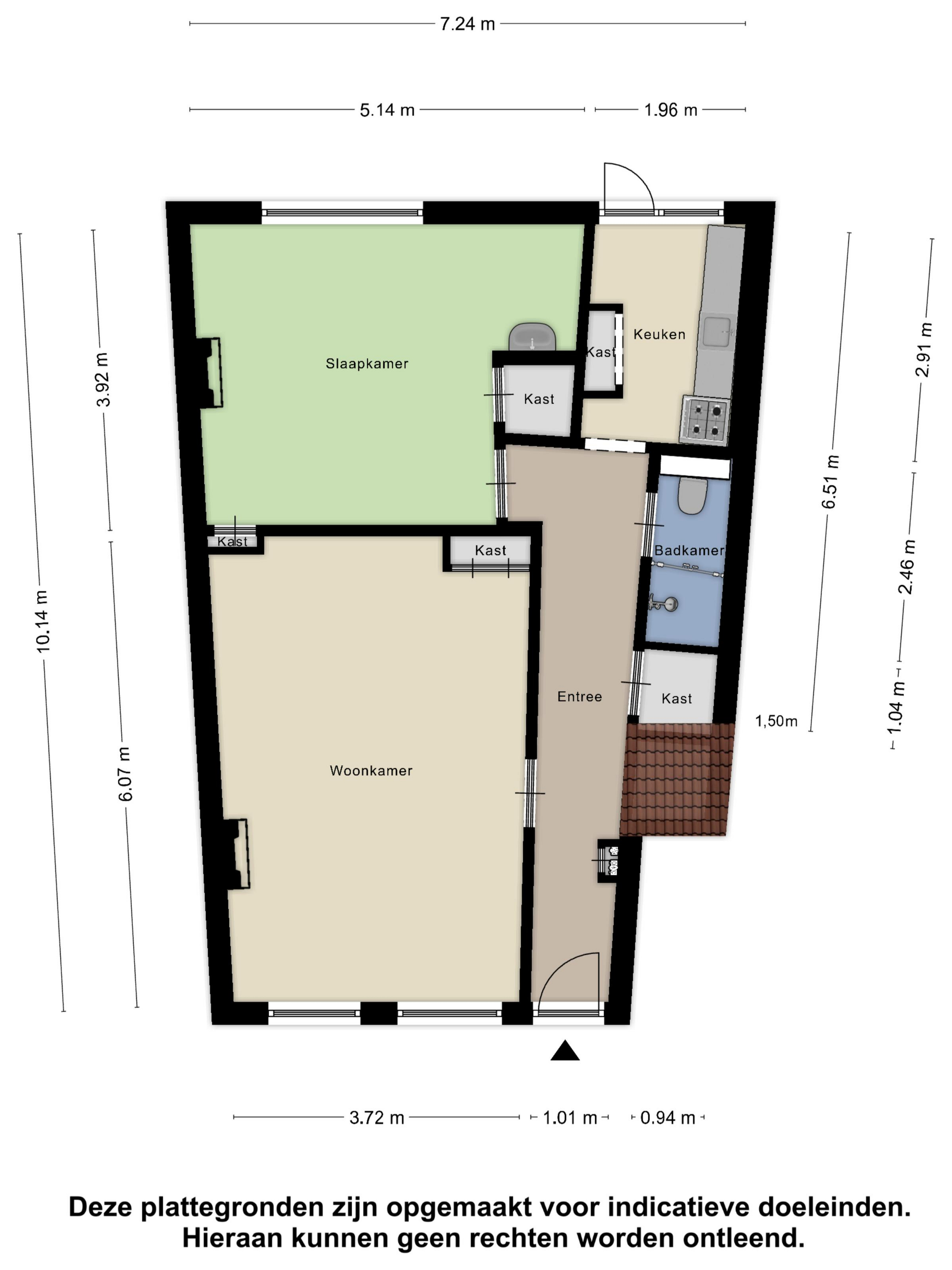
De indeling van deze benedenwoning is als volgt:
Entree, hal, meterkast, de woonkamer van ca. 23m², de slaapkamer van ca. 16m², de keuken met een nette keukenopstelling en toegang naar de stadstuin, de badkamer met toilet en douche. Aan de achterzijde de stadstuin van ca. 66m² met houten berging.

De bovenwoning heeft de volgende indeling:
Entree, hal met trapopgang naar de eerste verdieping.

Eerste verdieping: overloop, een kamer van ca. 23m², een kamer van ca. 16m² met inbouwkast, de keuken met een nette keukenopstelling, de cv-ketelopstellingen en een toegang naar het balkon, toilet, badkamer met douche, wasmeubel en witgoedaansluitingen

Tweede verdieping:
Overloop met aansluitend twee kamers van ca. 23m² en 19m², een zolderberging ca. 6m².

Is uw interesse voor dit goed onderhouden geheel gewekt? Maak dan een afspraak met onze flexibele-makelaars om uw indruk compleet te maken.

Kenmerken

Vraagprijs Prijs op aanvraag
Aangeboden 1 jaar geleden
Status Verkocht

Bekijk alle kenmerken...

Interesse?

Vraag een bezichtiging aan

Bekijk de omgeving

Ontdek de ligging van deze woning

Alle kenmerken

Bouw

In aanbouw Nee
Bouwjaar 1905
Bouwjaaromschrijving Bouwjaar volgens BAG
Toelichting Het woonhuis is goed onderhouden.
Onderhoud (binnen) Goed
Toelichting Het woonhui is goed onderhouden.
Onderhoud (buiten) Goed
Bouwvorm Bestaande bouw
Naam Elizabethstraat 12/12b
Woonruimte Geen woonruimte aanwezig
Hoofdfunctie BELEGGING

Bereikbaarheid

Afstand tot bank Op 500 m tot 1000 m
Afstand tot ontspanning Op minder dan 500 m
Afstand tot restaurant Op minder dan 500 m
Afstand tot winkel Op minder dan 500 m
Snelweg afrit Op 1000 m tot 1500 m
Treinstation Op 1000 m tot 1500 m
Bushalte Op minder dan 500 m

Buitenruimte

Ligging Winkelgebied stadscentrum, In woonwijk
Toelichting In een rustige woonwijk nabij het centrum van Leeuwarden.
Parkeerfaciliteiten In de omgeving.

LEEUWARDEN B 3382

Perceeloppervlakte 145 m²
Omvang Geheel perceel

Koop

WOZ waarde 306000
WOZ peildatum 2023-01-01

Energie

Einddatum 17-12-2034
Energielabel B

Vergelijkbaar in de buurt

...