Menu
Warmoltsstrjitte 56a Harkema - Hoofdafbeelding.jpg
E
Warmoltsstrjitte 56a Harkema - Afbeelding 2.jpg
Warmoltsstrjitte 56a Harkema - Afbeelding 3.jpg

Tonen op kaart

Brochure

Verhuurd: Warmoltsstrjitte 56a, Harkema

Harkema Warmoltsstrjitte 56a

493 m² perceeloppervlakte

Prijs op aanvraag

Verhuurd

Geïnteresseerd in dit object?

Vraag eenvoudig een bezichtiging aan!

Interesse in woning

Omschrijving

Ben jij op zoek naar een uitdaging met veel mogelijkheden in Friesland? Wat wil jij hier realiseren? De mogelijkheden zijn hier groot. Wil je nieuw bouwen, het pand als horeca blijven gebruiken (met bedrijfswoning), of heb je heel andere plannen? Dit pand biedt diverse bestemmingsmogelijkheden.

Er is op 11-09-2025 een projectidee ingediend. Daarnaast loopt een aanvraag om de bestemming te wijzigen naar ‘Wonen’ met een appartementsgebouw. Appartementenbouw lijkt ruimtelijk denkbaar, maar uitsluitend onder voorbehoud van nieuwe besluitvorming door de gemeente. De gemeente heeft eerder iets vergelijkbaars op deze locatie toegestaan en aangegeven dat er veel kan, maar formeel principeakkoord voor woningbouw is nog niet afgegeven.

Huidige situatie en bestemming
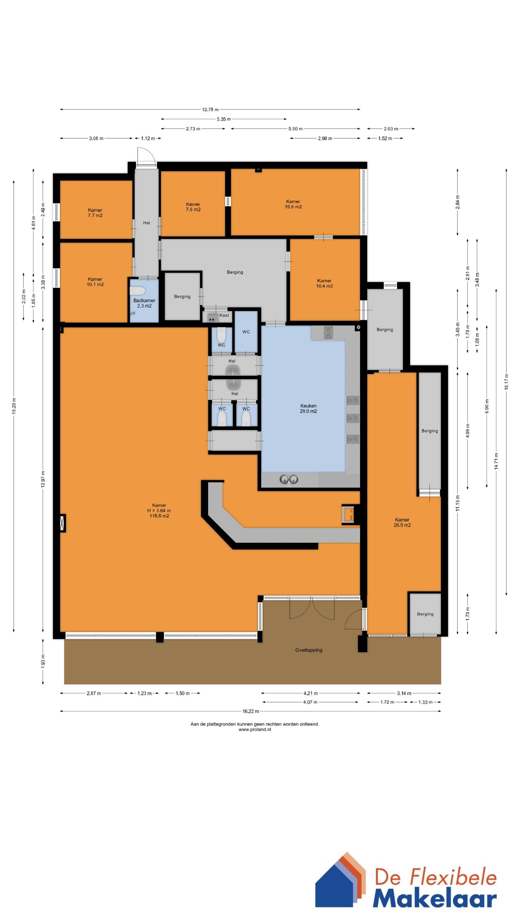
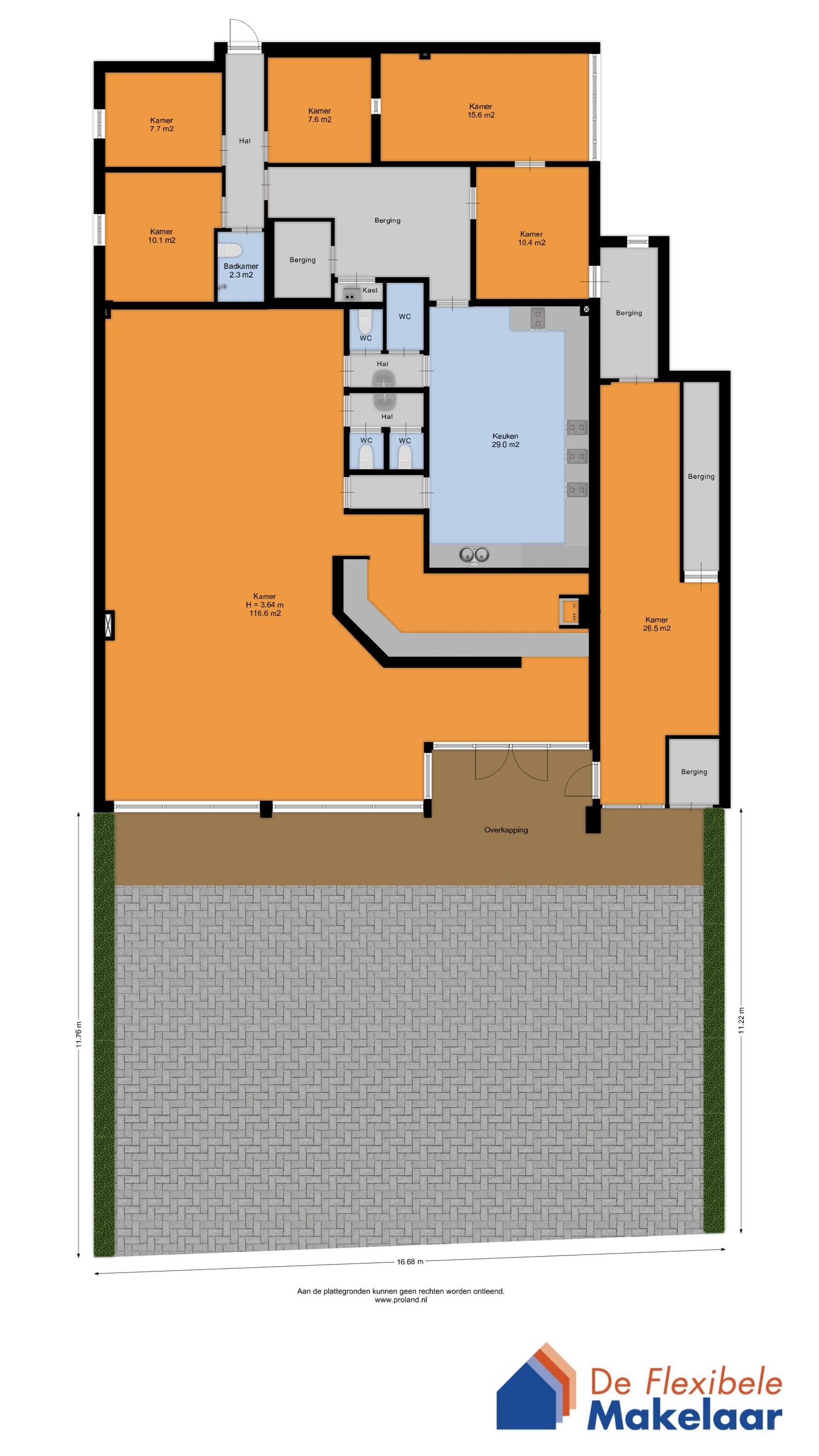
Momenteel is de hoofdfunctie horeca, met een totaal aan bruikbare ruimte van ca. 281m². Volgens het bestemmingsplan zijn de gronden bestemd voor horecadoeleinden. Je kunt hierbij denken aan:
-een café, eetcafé of (café-)zalencentrum
-een snackbar, cafetaria, lunchroom of ijssalon
-een bistro, petit-restaurant, café-restaurant of pannenkoekenhuis
-een discotheek en/of bar-dancing is niet toegestaan.
-een bedrijfswoning is ook mogelijk volgens het plan.

Locatie en perceel
Je vindt dit pand op een toplocatie: midden in het dorp, gelegen in een woonwijk en nabij de winkels van het centrum. Het gehele perceel is ca. 493m² groot. Parkeren is geen probleem; er zijn genoeg niet-overdekte parkeerplaatsen op eigen terrein en ruim voldoende parkeergelegenheid in de straat.

Staat van het pand
Het gebouw dateert uit 1966. Het onderhoud, zowel binnen als buiten, is nodig. Bij voortzetting van een horecabedrijf dient de vervangput vervangen te worden. Daarnaast verkeert het dak in matige tot slechte staat. Er is een voorlopig energielabel E afgegeven. Vandaar dat er ook een aanvraag is gedaan tot het nieuwbouwen van eventuele woning(en).

Zie jij de potentie van dit object? Dit is jouw kans om iets moois te ontwikkelen in Harkema! Onze flexibele makelaars nemen dan ook graag alle mogelijkheden met je door betreffende dit complete geheel aan de Warmoltsstrjitte 56a in Harkema.

Kenmerken

Prijs op aanvraag Prijs op aanvraag
Aangeboden 7 maanden geleden
Status Verhuurd

Bekijk alle kenmerken...

Interesse?

Vraag een bezichtiging aan

Bekijk de omgeving

Ontdek de ligging van deze woning

Alle kenmerken

Bouw

In aanbouw Nee
Bouwjaar 1966
Onderhoud (binnen) SLECHT_TOT_MATIG
Onderhoud (buiten) SLECHT_TOT_MATIG
Bouwvorm Bestaande bouw
Woonruimte Woonruimte mogelijk
Situatie Inpandig
Soort Appartement
Hoofdfunctie HORECA

Buitenruimte

Ligging In woonwijk
Toelichting Gelegen midden in het dorp, nabij de winkels van het centrum.
Parkeerfaciliteiten Ruim voldoende parkeergelegenheid op eigen terrein, maar ook in de straat.
Parkeren 15 niet overdekte parkeerplaatsen

SURHUIZUM C 6746

Perceeloppervlakte 493 m²
Omvang Geheel perceel

Energie

Einddatum 16-04-2035
Energielabel E

Vergelijkbaar in de buurt

...