Menu
Zoom 6a Surhuisterveen - Hoofdafbeelding.jpg
A

Tonen op kaart

Verkocht: Zoom 6a, Surhuisterveen

Surhuisterveen Zoom 6a

308 m² woonoppervlakte

1.518 m² perceeloppervlakte

Verkocht

Geïnteresseerd in dit object?

Vraag eenvoudig een bezichtiging aan!

Interesse in woning

Omschrijving

Hier woon je royaal én werk je representatief op één adres. Aan de Zoom 6 en 6a krijg je precies die combinatie waar ondernemers naar zoeken: een lichte, ruime villa waar het buitenleven via de schuifpui zo het terras op rolt, plus een moderne vrijstaande bedrijfsruimte met showroom, kantoor en loods. Start de dag op je balkon of dakterras, ontvang klanten professioneel op eigen erf en sluit af in de afsluitbare buitenkamer met bar, met in de tuin alle ruimte (en aansluitingen) voor een jacuzzi. Energielabel A, volledige isolatie, airco’s en zonnepanelen maken het wooncomfort zorgeloos; de hoge overheaddeur, extra verdiepingsruimte en ruime parkeergelegenheid laten je bedrijfsvoering soepel draaien. En dat alles uitstekend bereikbaar bij De Scheiding en de A7, in een bruisend Surhuisterveen met een sterk ondernemersklimaat.

Energielabel A en duurzaamheid
De woning heeft energielabel A en is volledig geïsoleerd dak, muur, vloer en HR(++)-glas. Daarnaast zijn er zonnepanelen en airco’s (koelen én verwarmen) aanwezig en is de cv-ketel in 2021 vernieuwd. Belangrijk: het huidige label is gebaseerd op een eerdere opname uit 2017; zo zijn o.a. de plaatsing van de zonnepanelen (2021), de airco’s (2023) en de vervanging van de cv-ketel (2021) zijn daarin niet meegenomen. In de praktijk is de woning dus zuiniger dan het label doet vermoeden.

DE VILLA
Begane grond:
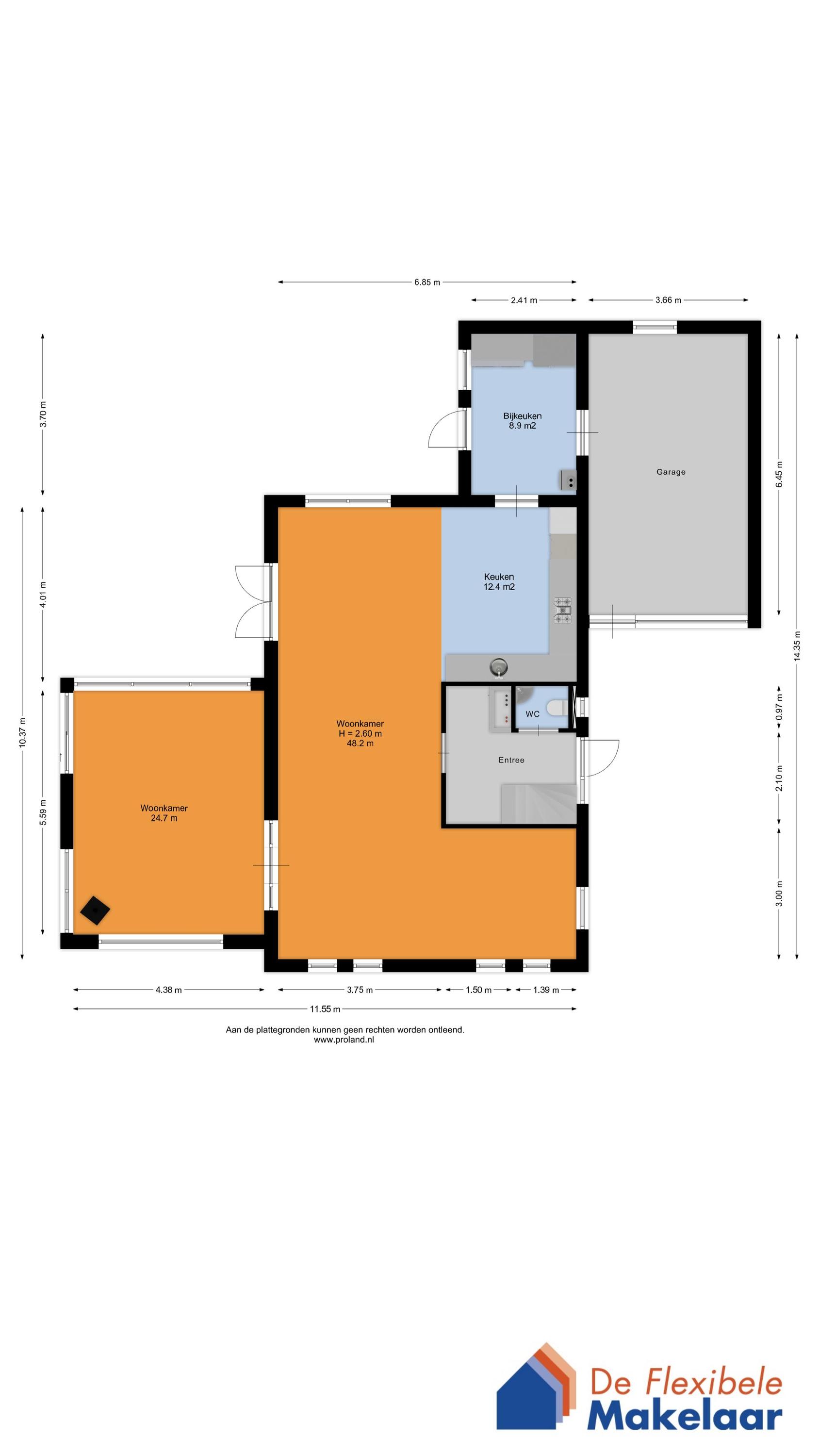
Beneden kom je binnen via de zij-entree met hal en toilet. De L-vormige woonkamer is licht en ruim, terwijl de woonkeuken is ingericht met een luxe hoekopstelling vol inbouwapparatuur en die fijne schuifpui naar het terras. De bijkeuken met tuindeur biedt plek voor de was en geeft toegang tot de aangebouwde extra grote garage (ca. 6,45m x 3,66m) met elektrische deur en aparte loopdeur. De woning is bovendien uitgebouwd voor extra leefruimte op de begane grond: een prachtige kamer met veel licht en zicht op de tuin; ideaal als tuinkamer, speelruimte, werkkamer of extra slaapkamer. De plavuizenvloer met vloerverwarming zorgt voor behaaglijk comfort.

1e etage:
Boven is het ruim en praktisch ingedeeld. Aan de voorzijde liggen twee slaapkamers; aan de achterzijde een slaapkamer. Daarnaast is er een grote slaapkamer met balkon en royale bergkast, en nog een ruime kamer met vaste kasten en toegang tot het dakterras — perfect om de dag te beginnen in de ochtendzon. De badkamer is in 2021 compleet vernieuwd met inloopdouche, extra ruim ligbad, wandcloset en een dubbel wastafelmeubel. Airco’s uit 2023, zonnepanelen en een cv-ketel uit 2021 maken het wooncomfort helemaal van nu; energielabel A onderstreept de zuinigheid.

Buiten:
De villa voelt als binnenkomen in het buitenleven. Vanuit de woonkeuken met schuifpui stap je zo het terras op; op zonnige dagen schuift het leven moeiteloos naar buiten. De achtertuin is een echte wauw: fraai aangelegd, onderhoudsarm afgevoegd en vol fijne zitplekken. Er is alle ruimte voor een jacuzzi en de hobbyruimte/ afsluitbare buitenkamer en eigen bar voelt “buiten”, maar is “binnen” net zo comfortabel. Ook is er nog een prachtige overkapping aanwezig.

BEDRIJFSRUIMTE
Naast de woning staat een representatieve bedrijfsruimte die klaar is voor groei. Aan de voorzijde een eigen entree naar circa 55m² showroom/kantoor met pantry, toilet en systeemplafond; daarachter een loodsruimte met overige ruimtes van circa 90m² met hoge overheaddeur voor prettig laden en lossen. Vanuit de loods gaat een vaste trap naar de verdieping met twee vertrekken (totaal ca. 4 × 7,4 m). Het geheel is volledig geïsoleerd, voorzien van isolatieglas en centrale verwarming in het kantoor en de showroom, zodat je het hele jaar door comfortabel werkt.

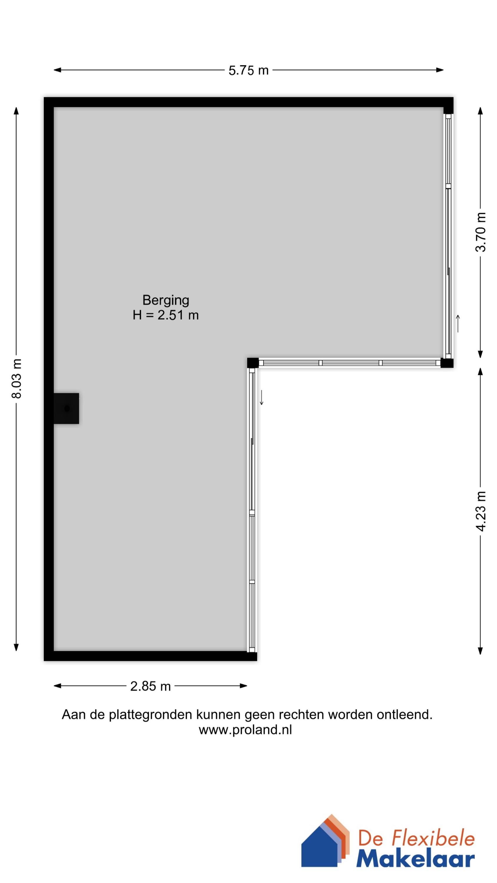
Het buitenterrein maakt het af: ruim, strak en verzorgd, met volop parkeergelegenheid op eigen erf en een 2e berging van ca. 30m². Representatief voor bezoekers en praktisch in het dagelijks gebruik.

Ligging
De ligging op bedrijventerrein Lauwerskwartier aan de oostkant van Surhuisterveen is ideaal. Je zit zó bij De Scheiding (N358) met de snelle verbinding naar de A7; het terrein heeft bovendien een duidelijke zichtverbinding richting die route, wat handig is voor bereikbaarheid en zichtbaarheid.

Surhuisterveen zelf bruist. Het winkelgebied wordt hoog gewaardeerd en trekt publiek uit de hele regio — dat merk je aan de levendigheid, de loop en het draagvlak voor ondernemers. Tegelijkertijd staat het dorp bekend om de uitzonderlijk grote concentratie van gespecialiseerde autobedrijven, een van de grootste autozoeklocaties van Nederland; logisch dus als jouw business aan mobiliteit raakt of je klantenkring hier graag rondkijkt. Dit zeer complete en prachtig onderhouden geheel aan de Zoom 6 en 6a staat te koop bij flexibele makelaars in Surhuisterveen.

Kenmerken

Vraagprijs Prijs op aanvraag
Aangeboden 6 maanden geleden
Status Verkocht

Bekijk alle kenmerken...

Interesse?

Vraag een bezichtiging aan

Bekijk de omgeving

Ontdek de ligging van deze woning

Alle kenmerken

Bouw

In aanbouw Nee
Bouwjaar 2005
Onderhoud (binnen) Goed tot uitstekend
Onderhoud (buiten) Goed tot uitstekend
Bouwvorm Bestaande bouw
Woonruimte Woonruimte aanwezig
Situatie Vrijstaand
Soort Eengezinswoning
Hoofdfunctie Bedrijfsruimte

Indeling

Kantoorruimte oppervlakte 65 m²
Aantal verdiepingen 2
Units vanaf 65 m²
Kantoorvoorzieningen INBOUWARMATUREN, TE_OPENEN_RAMEN, KABELGOTEN, Systeemplafond, Toilet, PANTRY, Verwarming, KAMERINDELING
Luchtbehandeling AIRCO
Bedrijfshaloppervlakte 149 m²
Units vanaf 149 m²
Kantoorruimte aanwezig Ja
Kantoorruimte oppervlakte 65 m²

Bereikbaarheid

Afstand tot ontspanning Op 500 m tot 1000 m
Afstand tot restaurant Op 1000 m tot 1500 m
Afstand tot winkel Op 500 m tot 1000 m
Snelweg afrit Op 500 m tot 1000 m

Buitenruimte

Ligging Bedrijventerrein
Toelichting Gelegen op het bedrijventerrein, met direct uitzicht richting De Scheiding.
Parkeren 40 niet overdekte parkeerplaatsen, 7 overdekte parkeerplaatsen

SURHUIZUM B 8808

Perceeloppervlakte 1.518 m²
Omvang Geheel perceel

Energie

Einddatum 17-11-2027
Energielabel A

Oppervlakken en inhoud

Woonoppervlakte 308 m²

Vergelijkbaar in de buurt

...