Menu
Alde Dyk 7 Kootstertille - Hoofdafbeelding.jpg
B

Tonen op kaart

Verkocht: Alde Dyk 7, Kootstertille

Kootstertille Alde Dyk 7

148 m² woonoppervlakte

535 m² perceeloppervlakte

3 kamers, waarvan 2 slaapkamers

Verkocht

Geïnteresseerd in dit object?

Vraag eenvoudig een bezichtiging aan!

Interesse in woning

Omschrijving

Ontdek dit verborgen pareltje aan de Alde Dyk 7 in Kootstertille. Deze vrijstaande woning biedt een verrassende combinatie van ruimte en charme. Achter de bescheiden gevel ligt een riante, uitgebouwde woning compleet met een adembenemende serre. Samen beslaan ze een comfortabele woonoppervlakte van circa 148 vierkante meter, aangevuld met nog eens ruim 52 vierkante meter aan aanvullende binnenruimte. Het geheel wordt omringd door een weelderige, zonnige en beschutte tuin op een perceel van 535 vierkante meter.

Deze woning is door de jaren heen liefdevol onderhouden en stijlvol gerenoveerd. In 1999 is het huis aan de achterkant uitgebreid. De badkamer is in 2010 gemoderniseerd en in 2016 is de spouwmuur van het originele huis geïsoleerd. Bovendien zijn er gefaseerd bijna overal duurzame kunststof kozijnen geplaatst, grotendeels voorzien van HR++ beglazing. Ook de dakgoten en windveren zijn in kunststof uitgevoerd. Alle platte daken zijn eveneens geïsoleerd. De gloednieuwe keuken uit 2020, samen met de indrukwekkende serre met glazen schuifwand uit 2018, vormen de kers op de taart van dit unieke huis.

Met enkele eenvoudige aanpassingen kan de woning levensloopbestendig gemaakt worden. Tijdens eerdere renovaties is hiermee al rekening gehouden, waardoor het realiseren van een slaapkamer op de begane grond een fluitje van een cent is. Daarnaast biedt de benedenverdieping een compleet ingerichte badkamer. Indien gewenst, kunnen de slaapkamers op de bovenverdieping verder worden gesplitst voor extra (slaap)ruimte.

De bestemming van het object is Gemengde Doeleinden wat naast wonen ook mogelijkheden biedt voor een aan-huis-verbonden beroep of bedrijf.

De indeling van de woning is als volgt:
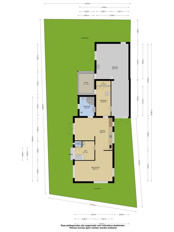
Begane grond:
Entree via de voordeur in de zijgevel van de woning; binnenkomst in de ruime ontvangsthal met trapopgang, meterkast en toiletruimte; L-vormige woonkamer van ca. 28m² met uitzicht over de straat; open keukenruimte met moderne keuken voorzien van allerlei inbouwapparatuur (inclusief Quooker) welke overgaat in de eetkamer met openslaande toegangsdeuren naar de tuin (totaal ca. 30m²); badkamer met douche, ligbad voorzien van jets; hangtoilet en wastafelmeubel met dubbele kraan; bijkeuken met kastenwand en toegang tot de (deels geïsoleerde) garage van ruim 52m² en de zonnige serre met glazen schuifwanden.

Eerste verdieping:
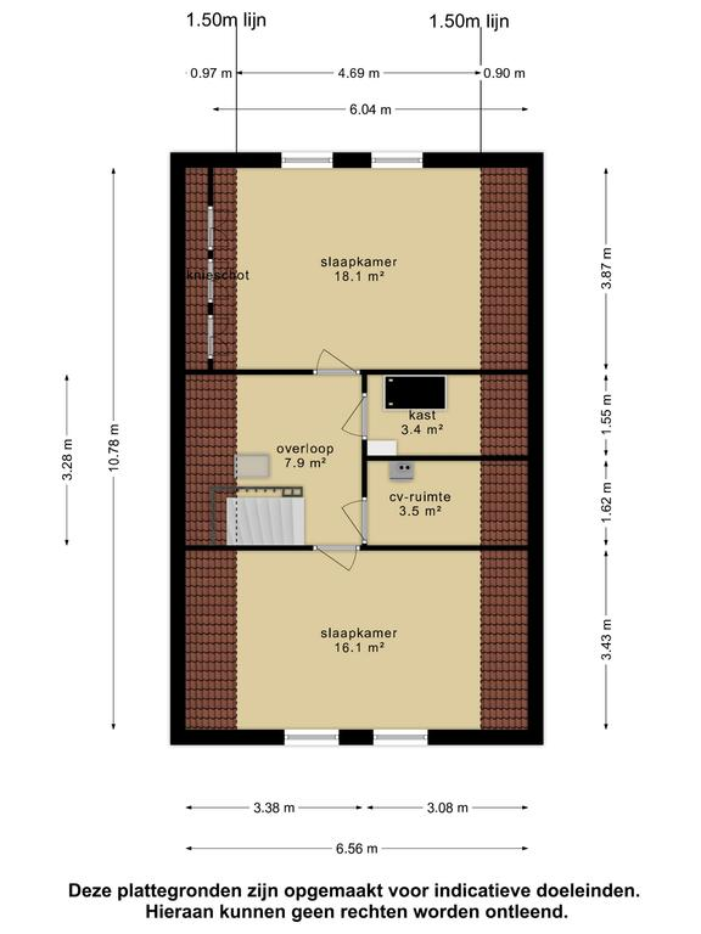
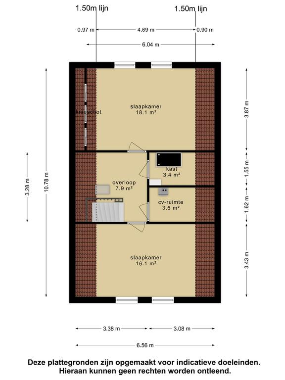
Overloop; 2 royale slaapkamers van ca. 18 m² en 16m² welke indien gewenst op te delen zijn; berging met CV-opstelling; berging met vaste trap naar zolderberging op de 2e verdieping.

Laat u betoveren door de sprookjesachtige, omheinde tuin met een schitterende vijver en een rijke variëteit aan planten en bloemen. Dit groene paradijs biedt volop privacy en rust. Aan zon ook geen gebrek want de tuin is grotendeels aan de zuidwestkant van de woning gelegen. In de serre is het ook vroeg in het jaar heerlijk vertoeven en met warm zomerweer schuift u de glazen deuren in een handomdraai helemaal open. Daarnaast liggen uitgebreide centrumvoorzieningen van het dorp op loopafstand, waardoor alle gemakken binnen handbereik zijn.

Mis deze kans niet en ervaar zelf de magie van dit bijzondere huis aan de Alde Dyk 7 in Kootstertille! Bezichtigen? Neem snel contact op met ons kantoor voor een afspraak met een van onze flexibele makelaars!

Kenmerken

Soort Eengezinswoning, Vrijstaande woning
Vraagprijs Prijs op aanvraag
Aangeboden 2 jaar geleden
Status Verkocht
Aanvaarding In overleg

Bekijk alle kenmerken...

Interesse?

Vraag een bezichtiging aan

Bekijk de omgeving

Ontdek de ligging van deze woning

Alle kenmerken

Bouw

Bouwvorm Bestaande bouw
Bouwjaar 1975
Bouwjaar omschrijving De woning is gebouwd in 1975, uitgebouwd in 1999.
Onderhoud (binnen) Goed
Toelichting De woning is goed onderhouden, zowel van binnen als van buiten.
Onderhoud (buiten) Goed
Toelichting De woning is goed onderhouden, zowel van binnen als van buiten.
Dak Zadeldak
Dak materialen Pannen
Dak toelichting Met pannen gedekt zadeldak.

Energie

Energielabel B
Einddatum 2030-12-30
Isolatie Dakisolatie, Muurisolatie, Vloerisolatie, Dubbel glas, HR-glas
Verwarming CV-ketel
Warm water CV-ketel
C.V.-ketel Atag Gas gestookte combiketel uit 2014 huur

Buitenruimte

Ligging In centrum
Tuin Achtertuin, Voortuin, Zijtuin, Tuin rondom (FRAAI_AANGELEGD)
Tuin oppervlakte 300 m²
Ligging Gelegen op (bereikbaar via achterom)
Parkeren Openbaar parkeren, Op eigen terrein
Parkeren Parkeren is mogelijk op eigen terrein of in de omgeving.

Garage

Garage soort Aangebouwd (steen)
Voorzieningen Elektra, Water
Isolatie Dakisolatie, Muurisolatie, Dubbel glas
Oppervlakte 52 m² (12.42m diep en 5.49m breed)
Capaciteit 3 auto(s)
Aantal 1

Oppervlakken en inhoud

Perceeloppervlakte 535 m²
Woonoppervlakte 148 m²
Overige ruimten 52 m²
Inhoud 743 m³
Oppervlakte externe bergruimte 11 m²

Indeling

Woonlagen 3 woonlagen
Kamers 3 kamers, waarvan 2 slaapkamers
Badkamers 1 badkamer(s) en 1 aparte toilet(ten)
Badkamervoorzieningen Ligbad, Zitbad, Toilet, Douche, Jacuzzi, Dubbele wastafel, Wastafel, Wastafelmeubel, Inloopdouche, Whirlpool
Voorzieningen Dakraam, Glasvezelkabel, Natuurlijke ventilatie

Bestemming

Huidig gebruik Woonruimte
Huidige bestemming Gemengd
Permanente bewoning Ja

Kadaster KOOTEN C 2700

Oppervlakte 535 m²
Omvang Geheel perceel

Vergelijkbaar in de buurt

...