Menu
Alkemastraat 2 Opende - Hoofdafbeelding.jpg
A

Tonen op kaart

Brochure

Verkocht: Alkemastraat 2, Opende

Opende Alkemastraat 2

95 m² woonoppervlakte

237 m² perceeloppervlakte

4 kamers, waarvan 3 slaapkamers

Verkocht
Referentie door verkoper: "Makelaar was gemakkelijk te bereiken. Werd gedurende het gehele proces op de hoogte gehouden. Zeer tevreden."
Geschreven op 25-04-2024

Deskundigheid10

Prijs/kwaliteit10

Marktkennis10

Service10

Meer reviews bekijken op Funda

Geïnteresseerd in dit object?

Vraag eenvoudig een bezichtiging aan!

Interesse in woning

Omschrijving

Stap binnen in deze moderne en comfortabele twee-onder-een-kapwoning met drie slaapkamers aan de Alkemastraat 2 in Opende, een droomhuis dat in 2021 is gerealiseerd en ontworpen met oog voor duurzaamheid, luxe en gebruiksgemak. Aangevuld met een aangebouwde stenen garage en een op het zuiden gelegen achtertuin op 237 m² eigen grond zorgt dit instapklare huis ervoor dat je ruim kunt wonen.

Uitgerust met een geavanceerde warmtepomp, volledig geïsoleerd en maar liefst zeven zonnepanelen heeft deze woning een voortreffelijk energielabel. Dat bevestigt dat deze woning is voorbereid op de toekomst, waardoor je eveneens bespaart op energiekosten. De woning blinkt uit met zijn onderhoudsvriendelijke kunststof kozijnen, die voorzien zijn van HR++-beglazing. Dit garandeert niet alleen een uitstekende isolatie, maar zorgt tevens voor een overvloed aan natuurlijk licht in elk vertrek.

Mocht levensloopbestendig wonen tot jouw idealen behoren, met een kleine verbouwing is de aangebouwde stenen garage een geschikte plek om om te toveren tot een slaapkamer en badkamer beneden.

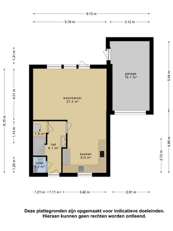
Begane grond:
Entree via de voordeur aan de voorzijde; hal met meterkast, trapopgang en trapkast met witgoedaansluitingen; toiletruimte voorzien van een hangend toilet en fontein; lichte tuingerichte woonkamer/eetkamer voorzien van grote glaspartijen en toegangsdeur naar de achtertuin; open keukenruimte met keuken in hoekopstelling voorzien van allerlei moderne inbouwapparatuur.

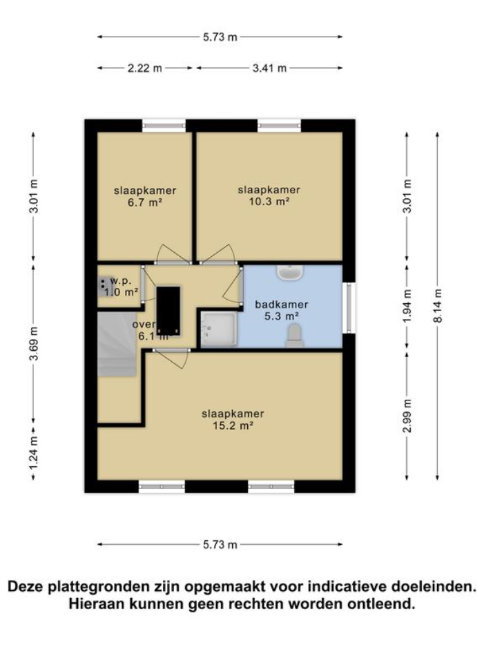
Eerste verdieping:
Overloop; drie slaapkamers waarvan de grootste circa 15m² is.

Tweede verdieping:
Middels een vlizotrap bereikbare bergzolder.

Buitenom:
De luxe zet zich voort met de aangebouwde stenen garage, die voorzien is van een elektrisch bedienbare kanteldeur. Deze garage biedt niet alleen ruime parkeergelegenheid, maar ook volop mogelijkheden voor opslag of als hobbyruimte. Achter de woning wachten meerdere terrassen en een fijn gazon op je om de frisse lentedagen in door te brengen. De achtertuin ligt op het zonnige zuiden dus zonaanbidders én tuinliefhebbers zijn hier zeker op hun plek! De oprit biedt genoeg plek voor het parkeren van de auto en de groene voortuin maakt het fraaie plaatje van deze woning compleet.

Het dorp Opende:
Het centrum van Opende ligt op korte afstand en heeft een divers aanbod van faciliteiten te bieden. Onder andere een supermarkt, scholen, sportfaciliteiten, een bruisend verenigingsleven en het Baron Theater (dé ontmoetingsplek voor jong en oud waar jaarlijks verschillende voorstellingen te zien zijn) zijn dichtbij. En als je even buiten Opende kijkt, dan vind je Surhuisterveen, een levendig dorp met maar liefst vier grote supermarkten, meer dan honderd winkels, gezellige eetgelegenheden en verschillende scholen, waaronder voortgezet onderwijs. Dankzij de supercentrale ligging van de snelwegen, zoals de A7, zijn de nabijgelegen steden en dorpen gemakkelijk te bereiken. Ook de busverbindingen zijn uitstekend, waardoor reizen een fluitje van een cent is. Steden zoals Groningen en Leeuwarden liggen binnen handbereik.

Mis deze topper niet en kom snel met eigen ogen kijken. Het zal je zeker niet teleurstellen! Neem contact met ons op voor een bezichtiging met een van onze flexibele makelaars.

Kenmerken

Soort Eengezinswoning, Twee-onder-een-kapwoning
Vraagprijs Prijs op aanvraag
Aangeboden 2 jaar geleden
Status Verkocht
Aanvaarding In overleg

Bekijk alle kenmerken...

Interesse?

Vraag een bezichtiging aan

Bekijk de omgeving

Ontdek de ligging van deze woning

Alle kenmerken

Bouw

Bouwvorm Bestaande bouw
Bouwjaar 2021
Bouwjaar omschrijving Volgens BAG
Onderhoud (binnen) Uitstekend
Toelichting Deze woning is in nieuwstaat.
Onderhoud (buiten) Uitstekend
Toelichting Deze woning is in nieuwstaat.
Dak Zadeldak
Dak materialen Pannen, Bitumineuze dakbedekking
Dak toelichting Met pannen gedekt zadeldak (dwarskap).

Buitenruimte

Ligging Aan rustige weg, In woonwijk
Tuin Achtertuin, Voortuin, Zijtuin, Tuin rondom (NORMAAL)
Tuin oppervlakte 110 m²
Achtertuin 85 m² (9.08m diep en 9.73m breed)
Ligging Gelegen op ZUID (bereikbaar via achterom)
Parkeren Openbaar parkeren, Op eigen terrein
Parkeren Er is voldoende parkeergelegenheid op eigen terrein of in de omgeving.

Garage

Garage soort Aangebouwd (steen)
Voorzieningen Elektra, Elektrische deur
Isolatie Dubbel glas
Oppervlakte 16 m² (5.44m diep en 3.12m breed)
Capaciteit 4 auto(s)
Aantal 1

Energie

Energielabel A
Einddatum 2030-10-05
Isolatie Dakisolatie, Muurisolatie, Vloerisolatie, Dubbel glas, Volledig geïsoleerd, HR-glas
Verwarming Vloerverwarming (gedeeltelijk), Elektrische verwarming, Warmtepomp
Warm water Elektrische boiler (eigendom)

Indeling

Woonlagen 3 woonlagen
Kamers 4 kamers, waarvan 3 slaapkamers
Badkamers 1 badkamer(s) en 1 aparte toilet(ten)
Badkamervoorzieningen Toilet, Douche, Wastafel
Voorzieningen TV-kabel, Dakraam, Glasvezelkabel, Zonnepanelen, Natuurlijke ventilatie

Oppervlakken en inhoud

Perceeloppervlakte 237 m²
Woonoppervlakte 95 m²
Overige ruimten 39 m²
Inhoud 481 m³

Bestemming

Huidig gebruik Woonruimte
Huidige bestemming Woonruimte
Permanente bewoning Ja

Kadaster GROOTEGAST F 5522

Oppervlakte 237 m²
Omvang Geheel perceel

Vergelijkbaar in de buurt

...