Menu
Badlaan 22 Surhuisterveen - Hoofdafbeelding.jpg
D

Tonen op kaart

Verkocht: Badlaan 22, Surhuisterveen

Surhuisterveen Badlaan 22

122 m² woonoppervlakte

276 m² perceeloppervlakte

6 kamers, waarvan 5 slaapkamers

Verkocht

Geïnteresseerd in dit object?

Vraag eenvoudig een bezichtiging aan!

Interesse in woning

Omschrijving

Deze prachtig gelegen en royale geschakelde 2-onder-1-kapwoning heeft een privacyvolle, zonnige zuidwest gerichte achtertuin en een aangebouwde stenen garage. Bovendien is het geheel gelegen aan de Badlaan; aan een groot groenplantsoen in een rustige en in een ruim opgezette woonomgeving. Het perceel grond is ca. 276m² groot.

De woning is gebouwd rond 1968 en is in de afgelopen jaren keurig bewoond geweest. Doordat de gevels recht opgetrokken zijn is er ook verrassend veel leefruimte op de etages en is de woning voorzien van maar liefst 5 slaapkamers.

Verder is de woning deels voorzien van isolatieglas en centraal verwarmd met behulp van radiatoren, de Intergas HRE kompakt is van ca. 2008.

Indeling begane grond:
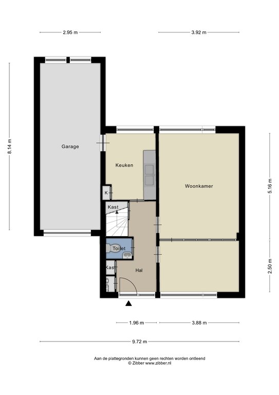
Voorentree met hal, meterkast, vaste kast, kelder/provisieruimte; toilet met fonteintje; ruime en lichte doorzonwoonkamer (ca. 30 m²); dichte keukenruimte met plavuizenvloer, vaste kast en eenvoudige keukenopstelling; aangebouwde garage (ca.2,95 x 8,14 m.) met dubbele garagedeur aan de voorzijde en een doorloop naar de achtertuin.

Eerste etage:
Overloop; vier slaapkamers (ca.: 12,5 m², 9,5 m², 8m² en 6,5 m²), waarvan één met vaste wastafel en één met deur naar plat dak; badkamer met grote wastafel, douche en toilet.

Tweede etage:
Vaste trap naar 2e etage met overloop; 5e slaapkamer met dakraam en c.v.-opstelling.

Buiten:
Behalve in de garage is er ook voldoende parkeergelegenheid op de eigen oprit en in de straat. De achtertuin is gunstig gelegen op het zonnige zuidwesten en voorzien van gazon en zonneterras.

Surhuisterveen is een comfortabel dorp om in te wonen. Alle voorzieningen zijn op korte afstand van de woning, te denken aan winkels, horeca, sportaccommodaties en scholen. Daarnaast ligt Surhuisterveen aan de A7 (o.a. Groningen-Drachten-Heerenveen) en kent Surhuisterveen een goed ondernemersklimaat.

Is uw interesse voor de Badlaan 22 te Surhuisterveen gewekt? Wacht dan niet langer en maak een afspraak voor een bezichtiging!

Op verzoek van onze opdrachtgever gaat de verkoop plaatsvinden bij inschrijving en gaat de aktepassering via Sekuer Notarissen te Surhuisterveen.

Kenmerken

Soort Eengezinswoning, GESCHAKELDE_TWEE_ONDER_EEN_KAPWONING
Vraagprijs Prijs op aanvraag
Aangeboden 4 jaar geleden
Status Verkocht
Aanvaarding In overleg

Bekijk alle kenmerken...

Interesse?

Vraag een bezichtiging aan

Bekijk de omgeving

Ontdek de ligging van deze woning

Alle kenmerken

Bouw

Bouwvorm Bestaande bouw
Bouwjaar 1968
Onderhoud (binnen) Goed
Toelichting Goed onderhouden
Onderhoud (buiten) Goed
Toelichting Goed onderhouden
Dak Samengesteld dak
Dak materialen Pannen, Bitumineuze dakbedekking
Dak toelichting Kap met pannen gedekt en deels plat dak met bitumineuze dakbedekking.

Buitenruimte

Ligging Aan rustige weg, In woonwijk, Open ligging
Tuin Achtertuin, Voortuin (NORMAAL)
Tuin oppervlakte 150 m²
Achtertuin 99 m² (11m diep en 9m breed)
Ligging Gelegen op ZUIDWEST
Parkeren Openbaar parkeren, Op eigen terrein
Parkeren Voldoende parkeergelegenheid op eigen terrein en in de straat.

Energie

Energielabel D
Einddatum 2031-04-22
Isolatie Gedeeltelijk dubbel glas
Verwarming CV-ketel
Warm water CV-ketel
C.V.-ketel Intergas HRE Kompakt Gas gestookte combiketel uit 2008 eigendom

Garage

Garage soort Aangebouwd (steen)
Voorzieningen Elektra, Water
Isolatie Geen spouw, Geen isolatie
Oppervlakte 24 m² (8.14m diep en 2.95m breed)
Capaciteit 1 auto(s)
Aantal 1

Oppervlakken en inhoud

Perceeloppervlakte 276 m²
Woonoppervlakte 122 m²
Overige ruimten 24 m²
Inhoud 511 m³
Gebouwgebonden buitenruimte 24 m²

Indeling

Woonlagen 4 woonlagen
Kamers 6 kamers, waarvan 5 slaapkamers
Badkamers 1 badkamer(s) en 1 aparte toilet(ten)
Badkamervoorzieningen Toilet, Douche, Wastafel
Voorzieningen TV-kabel, Dakraam, Glasvezelkabel

Bestemming

Huidig gebruik Woonruimte
Huidige bestemming Woonruimte
Permanente bewoning Ja

Kadaster SURHUIZUM B 6299

Oppervlakte 276 m²
Omvang Geheel perceel

Vergelijkbaar in de buurt

...