Menu
Bareld Bijmastrjitte 1 Westergeast - Hoofdafbeelding.jpg
C

Tonen op kaart

Verkocht: Bareld Bijmastrjitte 1, Westergeast

Westergeast Bareld Bijmastrjitte 1

166 m² woonoppervlakte

660 m² perceeloppervlakte

6 kamers, waarvan 5 slaapkamers

Verkocht

Geïnteresseerd in dit object?

Vraag eenvoudig een bezichtiging aan!

Interesse in woning

Omschrijving

BIJ DEZE WONING IS PRIJSOVEREENSTEMMING BEREIKT, HET OPEN HUIS GAAT DUS NIET MEER DOOR!

Stap binnen in Bareld Bijmastrjitte 1 en ontdek een fijne combinatie van comfort en overvloedige ruimte, zowel binnen als buiten, gelegen in het hart van Westergeast. Deze royale en robuuste woning biedt een indrukwekkend gebruiksoppervlak van ongeveer 166 m² en is aanzienlijk verder ontwikkeld dan zijn officiële energielabel suggereert dankzij de vele updates die door de jaren heen zijn uitgevoerd.

Deze woning is een toonbeeld van duurzaamheid: volledig gasloos gemaakt door de installatie van zonnecollectoren, een 400-liter buffervat, een warmtepomp, en een pelletkachel (allemaal uit 2022). De 4 geïnstalleerde airco's (2020) voor zowel koeling als verwarming, zorgen voor het ultieme comfort in elk seizoen.

Ook de buitenzijde van deze woning biedt meer dan op het eerste gezicht lijkt. De deels geplaatste kunststof kozijnen (2021) zorgen voor een moderne look en verhoogde duurzaamheid. Daarnaast zijn de dakgoten en de groepenkast volledig vernieuwd in 2019.

De vele aanpassingen en vernieuwingen op een rij:
- badkamer vernieuwd 2019
- waterontharder 2019
- dakgoten vernieuwd 2019
- groepenkast vervangen 2019
- inductiekookplaat 2019
- 4 airco's tbv koelen en verwarmen aangelegd 2020
- voortuin en schutting aangepakt 2020
- deels kunststof kozijnen waaronder de openslaande deuren geplaatst 2021
- bodemisolatie dmv schelpen 2022
- woning gasloos gemaakt: zonnecollectoren / 400 liter buffervat / warmtepomp / pelletkachel geplaatst 2022

De indeling is als volgt:
Begane grond:
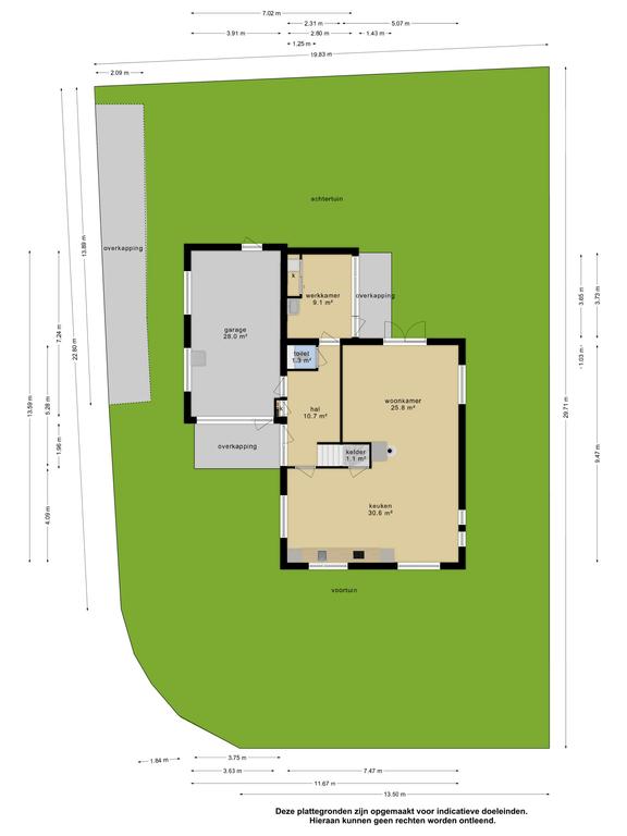
Overdekte entree in de zijgevel van de woning; royale ontvangsthal met meterkast (voorzien van 3-fasen aansluiting), garderobehoek, trapopgang en toegang tot de garage; gemoderniseerde toiletruimte met hangtoilet; werkkamer (ook te gebruiken als bijkeuken) met loopdeur naar terras; open keuken voorzien van diverse inbouwapparatuur; lichte woonkamer met balkenplafond, pelletkachel en openslaande deuren naar terras; opgeteld hebben de keuken en woonkamer maar liefst ca. 55m2 aan woongenot; kelder; garage van ca. 28m2 welke voorzien is van een elektrisch bedienbare sectionaldeur.

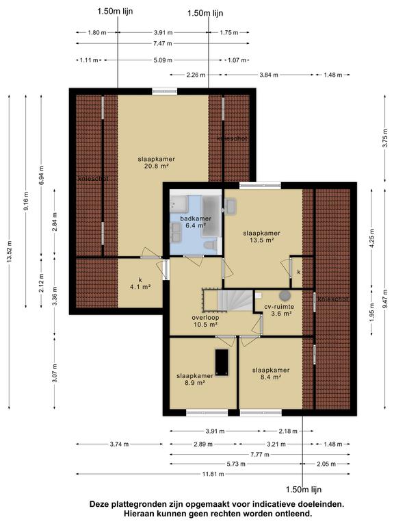
1e verdieping:
Overloop; 2 slaapkamers aan de voorzijde, 3e slaapkamer aan de achterzijde van de woning; 4e slaapkamer (ca. 21 m2) met vaste kast boven de garage; luxe badkamer met dubbele wastafel, inloopdouche, hangtoilet en ligbad; berging/technische ruimte.

2e verdieping:
Ruime zolderberging over de gehele lengte van de woning welke deels voorzien is van een vloer.

Buitenom:
Dit geheel biedt u niet alleen een luxueus interieur, maar ook een prachtige buitenruimte. De zuidelijk gelegen en zonovergoten achtertuin is een perfecte plek om de dag te beginnen met een kopje koffie, omringd door gazon, sierbestrating en het levendige groen. Laat u betoveren door de diversiteit van bloemen, planten en bomen, waaronder een appel- en perenboom en een prachtige blauwe regen. Deze achtertuin is een ware oase van rust en natuur, ideaal om te ontspannen, te genieten van familiebarbecues of gewoon te genieten van de zon. Aan de voorzijde van de woning vindt u een even aantrekkelijke tuin met gazon en leilindes, aangelegd in 2020. Maar deze voortuin biedt meer dan alleen een mooi uitzicht. De ruime oprit (met carport/overkapping) biedt voldoende parkeergelegenheid voor meerdere auto's. Of u nu een groot gezin heeft, graag gasten ontvangt of gewoon voldoende ruimte wilt hebben voor uw voertuigen, deze woning voldoet aan al uw behoeften.

Het dorp Westergeast (Westergeest):
De woning ligt aan een rustige straat met uitzicht over de speeltuin. Leuk weetje: Wist u dat de straat vernoemd is naar de eerste en enige politieagent die het dorp rijk was? Het dorp Westergeast ligt in de gemeente Noardeast-Fryslân en telt ca. 600 inwoners, het is gelegen aan het water welke voor de pleziervaart een druk bezette route is. Het dorp Kollum bevindt zich op circa 5 km en heeft een uitgebreid winkelaanbod. Vanuit het dorp Westergeast is er een openbaarvervoersverbinding naar oa. Leeuwarden en het treinstation van Buitenpost.

De Bareld Bijmastrjitte 1 te Westergeast (Westergeest) is meer dan gewoon een huis. Ontdek snel het wooncomfort dat deze ruime woning te bieden heeft! Neem contact op voor het maken van een bezichtigingsafspraak. Onze flexibele makelaars leiden u graag rond!

Verkoper aan het woord:
'Deze gasloze woning is volledig instapklaar en biedt een fijne kindvriendelijke leefomgeving. In het gezellige Westergeast kunt u genieten van de buurtvereniging welke jaarlijkse buurtbarbecues en burendagen organiseert. De aanwezigheid van een basisschool in het dorp en een speeltuin voor de deur maken het perfect voor gezinnen. Bovendien is er een kantoor met eigen ingang aanwezig, welke ideaal is voor thuiswerken of eventueel een kapper- of pedicurepraktijk aan huis.'

Kenmerken

Soort Eengezinswoning, Vrijstaande woning
Vraagprijs Prijs op aanvraag
Aangeboden 2 jaar geleden
Status Verkocht
Aanvaarding In overleg

Bekijk alle kenmerken...

Interesse?

Vraag een bezichtiging aan

Bekijk de omgeving

Ontdek de ligging van deze woning

Alle kenmerken

Bouw

Bouwvorm Bestaande bouw
Bouwjaar 1981
Bouwjaar omschrijving De woning is gebouwd in 1981.
Onderhoud (binnen) Goed
Toelichting De woning is goed onderhouden.
Onderhoud (buiten) Goed
Toelichting De woning is goed onderhouden.
Dak Zadeldak
Dak materialen Pannen
Dak toelichting Met pannen gedekt zadeldak.

Buitenruimte

Ligging Aan rustige weg, In woonwijk
Tuin Achtertuin, Voortuin, Zijtuin, Tuin rondom (NORMAAL)
Tuin oppervlakte 300 m²
Ligging Gelegen op (bereikbaar via achterom)
Parkeren Openbaar parkeren, Op eigen terrein
Parkeren Er is voldoende parkeergelegenheid op eigen erf of in de omgeving.

Garage

Garage soort Aangebouwd (steen), Inpandig, Garage met carport
Voorzieningen Elektra, Elektrische deur
Isolatie Dakisolatie, Geen isolatie
Oppervlakte 28 m² (7.24m diep en 3.91m breed)
Capaciteit 1 auto(s)
Aantal 1

Energie

Energielabel C
Einddatum 2029-04-07
Isolatie Dakisolatie, Muurisolatie, Vloerisolatie, Dubbel glas
Verwarming Warmtepomp, Pelletkachel
Warm water Zonnecollectoren

Oppervlakken en inhoud

Perceeloppervlakte 660 m²
Woonoppervlakte 166 m²
Overige ruimten 48 m²
Inhoud 736 m³
Gebouwgebonden buitenruimte 13 m²

Indeling

Woonlagen 3 woonlagen
Kamers 6 kamers, waarvan 5 slaapkamers
Badkamers 1 badkamer(s) en 1 aparte toilet(ten)
Badkamervoorzieningen Ligbad, Toilet, Douche, Dubbele wastafel, Wastafel, Wastafelmeubel, Inloopdouche
Voorzieningen Mechanische ventilatie, Zonnecollectoren, Rookkanaal, Glasvezelkabel

Bestemming

Huidig gebruik Woonruimte
Huidige bestemming Woonruimte
Permanente bewoning Ja

Kadaster WESTERGEEST B 2398

Oppervlakte 600 m²
Omvang Geheel perceel

Vergelijkbaar in de buurt

...