Menu
Bennemaheerd 3 Oldekerk - Hoofdafbeelding.jpg
B

Tonen op kaart

Verkocht: Bennemaheerd 3, Oldekerk

Oldekerk Bennemaheerd 3

93 m² woonoppervlakte

333 m² perceeloppervlakte

4 kamers, waarvan 3 slaapkamers

Verkocht

Geïnteresseerd in dit object?

Vraag eenvoudig een bezichtiging aan!

Interesse in woning

Omschrijving

Welkom bij Bennemaheerd 3 te Oldekerk! Ontdek uw toekomstige thuis, een prachtige en energiezuinige twee-onder-een kapwoning, gebouwd in 1996 en voorzien van 3 slaapkamers met mogelijkheid voor het creëren van een 4e slaapkamer. Met een energielabel B, zorgt deze woning ervoor dat u altijd warm en behaaglijk bent. De woning wordt verwarmd middels een goed onderhouden HR combiketel met radiatorverwarming.

Deze fijne twee-onder-één-kapwoning staat in een rustige en kindvriendelijke omgeving. Binnenshuis geniet u van een lichte leefruimte van ca. 42 m2, bestaande uit een ruime L-vormige woonkamer welke naadloos is aangesloten op de open keuken.

De indeling is als volgt:
Begane grond:
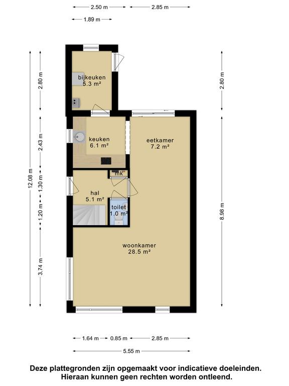
Entree via de voordeur; hal met trapopgang, toilet en meterkast; woon-/eetkamer met open keuken; praktische bijkeuken voorzien van witgoedaansluitingen, cv-opstelling en een handige achter entree.

Eerste verdieping:
Ruime overloop; 3 comfortabele slaapkamers; badkamer uitgerust met een douche, wastafel en tweede toilet.

Tweede verdieping:
Heeft u behoefte aan meer ruimte? Geen probleem! De zolderverdieping is met een vaste trap te bereiken en kan gemakkelijk worden omgetoverd tot een 4e slaapkamer.

Buitenom:
Het kavel, met een royale omvang van 333 m2, beschikt over een vrijstaande houten garage en een beschutte achtertuin. Hoewel deze tuin wat aandacht vereist, biedt het enorme mogelijkheden om deze privacyvolle plek naar eigen smaak en wensen in te richten. Met een ruime bestrate oprit hoeft u zich geen zorgen te maken over parkeerplaatsen want er is voldoende ruimte op eigen terrein.

Over het dorp Oldekerk:
Deze woning ligt in het charmante Oldekerk, in het Westerkwartier, en is perfect gelegen tussen Groningen en Drachten. Geniet van het voordeel van lokale voorzieningen zoals basisscholen, een middelbare school, sportvelden, een overdekt zwembad, winkels en een café(taria) op een steenworp afstand. Het rijke verenigingsleven draagt bij aan de gezellige sociale gemeenschap.

Bent toe aan een volgende stap in de woningmarkt? Neem vandaag nog contact met ons op voor een bezichtiging! Onze flexibele makelaars kijken er naar uit om u Bennemaheerd 3 te Oldekerk te laten zien!

Kenmerken

Soort Eengezinswoning, Twee-onder-een-kapwoning
Vraagprijs Prijs op aanvraag
Aangeboden 2 jaar geleden
Status Verkocht
Aanvaarding In overleg

Bekijk alle kenmerken...

Interesse?

Vraag een bezichtiging aan

Bekijk de omgeving

Ontdek de ligging van deze woning

Alle kenmerken

Bouw

Bouwvorm Bestaande bouw
Bouwjaar 1996
Bouwjaar omschrijving De woning is gebouwd in 1996.
Onderhoud (binnen) Redelijk tot goed
Toelichting Het woonhuis is redelijk tot goed onderhouden
Onderhoud (buiten) Redelijk tot goed
Toelichting Het woonhuis is redelijk tot goed onderhouden
Dak Zadeldak
Dak materialen Pannen, Bitumineuze dakbedekking
Dak toelichting De platte daken zijn gedekt met bitumineuze dakbedekking.

Buitenruimte

Ligging Aan rustige weg, In woonwijk
Tuin Achtertuin, Voortuin (NORMAAL)
Tuin oppervlakte 200 m²
Achtertuin 192 m² (12m diep en 16m breed)
Ligging Gelegen op NOORD (bereikbaar via achterom)
Parkeren Openbaar parkeren, Op eigen terrein
Parkeren Er is voldoende parkeergelegenheid in de omgeving en op eigen erf.

Energie

Energielabel B
Einddatum 2033-03-28
Isolatie Dakisolatie, Muurisolatie, Vloerisolatie, Dubbel glas, Volledig geïsoleerd
Verwarming CV-ketel
Warm water CV-ketel
C.V.-ketel HR combiketel Gas gestookte combiketel uit 2008 eigendom

Garage

Garage soort Vrijstaand (hout)
Voorzieningen Elektra
Isolatie Geen isolatie
Oppervlakte 29 m² (5.98m diep en 4.92m breed)
Capaciteit 1 auto(s)
Aantal 1

Oppervlakken en inhoud

Perceeloppervlakte 333 m²
Woonoppervlakte 93 m²
Overige ruimten 13 m²
Inhoud 374 m³
Oppervlakte externe bergruimte 29 m²

Indeling

Woonlagen 3 woonlagen
Kamers 4 kamers, waarvan 3 slaapkamers
Badkamers 1 badkamer(s) en 1 aparte toilet(ten)
Badkamervoorzieningen Toilet, Douche, Wastafel
Voorzieningen Mechanische ventilatie, TV-kabel

Bestemming

Huidig gebruik Woonruimte
Huidige bestemming Woonruimte
Permanente bewoning Ja

Kadaster OLDEKERK D 1903

Oppervlakte 333 m²
Omvang Geheel perceel

Vergelijkbaar in de buurt

...