Menu
Beukenlaan 31 Marum - Hoofdafbeelding.jpg
B

Tonen op kaart

Verkocht: Beukenlaan 31, Marum

Marum Beukenlaan 31

119 m² woonoppervlakte

430 m² perceeloppervlakte

5 kamers, waarvan 5 slaapkamers

Verkocht

Geïnteresseerd in dit object?

Vraag eenvoudig een bezichtiging aan!

Interesse in woning

Omschrijving

Op naar Marum! Daar staat in een plezierige rustige woonomgeving op loopafstand van het uitgebreide centrum op een groot perceel van maar liefst 430 m² deze goed onderhouden hoekwoning met vier slaapkamers.

Het woonhuis is gebouwd in 1974 en is in de afgelopen jaren verbeterd en gemoderniseerd. Het is voorzien van vloerisolatie, gevelisolatie, dakisolatie, HR++ beglazing, dubbele beglazing en 16 (lease) zonnepanelen. Het geheel wordt verwarmd door een jonge HR combiketel van Vaillant uit 2018. Dit alles maakt dat de woning is voorzien van een mooi energielabel B.

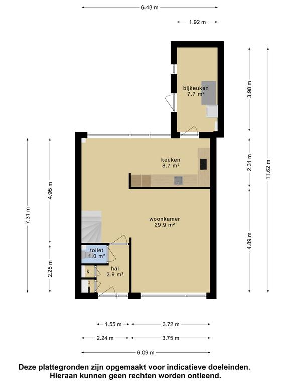
De indeling van deze woning is als volgt:
Entree, hal met meterkast, inbouwkast en toilet, de lichte L-vormige woonkamer van ca. 30 m² met aansluitend de open keuken van ca. 9 m² die is voorzien van een nette keukenopstelling met inbouwapparatuur,
de bijkeuken met witgoedaansluitingen en achterentree.

Eerste verdieping:
Overloop met aansluitend drie slaapkamers en de badkamer met douchecabine, wasmeubel en hangcloset.

Tweede verdieping:
Een ruime zolderverdieping met overloop, bergruimte, cv-opstelling en de vierde slaapkamer.

De woning heeft een heerlijke grote tuin die uitermate geschikt is voor tal van buitenactiviteiten. De gehele tuin is onderhoudsvriendelijk ingericht met een bestrating, borders met fraaie beplating, een haag en veel gazon. De achtertuin is omsloten waardoor het u ook nog eens privacy biedt. Aan de achterzijde staat ook de houten schuur van ca. 24 m² met openslaande deuren.

De bestrate oprit en de parkeerhavens in de straat bieden voldoende parkeergelegenheid op eigen terrein en bij het huis.

De woning heeft een ideale ligging, het is namelijk gelegen op loopafstand van het centrum met diverse winkels, open baar vervoer, twee basisscholen en het openlucht zwembad. Daarnaast beschikt het dorp over vele sportvoorzieningen.
De ligging aan de A7 is voor mensen een reden om zich in Marum te settelen. De plaatsen Groningen, Heerenveen en Leeuwarden zijn binnen een korte tijd bereikbaar.

Is uw interesse voor deze mooie woonlocatie gewekt? Maak dan een afspraak voor een bezichtiging om uw indruk compleet te maken. Tot ziens aan de Beukenlaan 31 te Marum!

Kenmerken

Soort Eengezinswoning, Hoekwoning
Vraagprijs Prijs op aanvraag
Aangeboden 3 jaar geleden
Status Verkocht
Aanvaarding In overleg

Bekijk alle kenmerken...

Interesse?

Vraag een bezichtiging aan

Bekijk de omgeving

Ontdek de ligging van deze woning

Alle kenmerken

Bouw

Bouwvorm Bestaande bouw
Bouwjaar 1974
Onderhoud (binnen) Goed
Toelichting Het woonhuis is goed onderhouden.
Onderhoud (buiten) Goed
Toelichting Het woonhuis is goed onderhouden.
Dak Zadeldak
Dak materialen Pannen, Bitumineuze dakbedekking
Dak toelichting Het platte dak is gedekt met bitumineuze dakbedekking.

Energie

Energielabel B
Einddatum 2032-11-01
Isolatie Dakisolatie, Muurisolatie, Vloerisolatie, Dubbel glas, HR-glas
Verwarming CV-ketel
Warm water CV-ketel
C.V.-ketel HR combiketel van Vaillant Gas gestookte combiketel uit 2018 eigendom

Buitenruimte

Ligging Aan rustige weg, In woonwijk
Tuin Achtertuin, Voortuin, Zijtuin (NORMAAL)
Tuin oppervlakte 360 m²
Zijtuin 300 m² (20m diep en 15m breed)
Ligging Gelegen op WEST
Parkeren Openbaar parkeren, Op eigen terrein

Indeling

Woonlagen 3 woonlagen
Kamers 5 kamers, waarvan 5 slaapkamers
Badkamers 1 badkamer(s) en 1 aparte toilet(ten)
Badkamervoorzieningen Toilet, Douche, Wastafel
Voorzieningen Glasvezelkabel, Zonnepanelen, Natuurlijke ventilatie

Oppervlakken en inhoud

Perceeloppervlakte 430 m²
Woonoppervlakte 119 m²
Inhoud 411 m³
Oppervlakte externe bergruimte 28 m²

Schuur / berging

Schuur / berging soort Vrijstaand (hout)
Voorzieningen Voorzien van elektra
Isolatie Geen isolatie
Aantal 1

Bestemming

Huidig gebruik Woonruimte
Huidige bestemming Woonruimte
Permanente bewoning Ja

Kadaster MARUM F 5686

Oppervlakte 430 m²
Omvang Geheel perceel

Garage

Garage soort Geen garage

Vergelijkbaar in de buurt

...