Menu
Bindert Japiksstrjitte 16 Drogeham - Hoofdafbeelding.jpg
C

Tonen op kaart

Verkocht: Bindert Japiksstrjitte 16, Drogeham

Drogeham Bindert Japiksstrjitte 16

113 m² woonoppervlakte

426 m² perceeloppervlakte

5 kamers, waarvan 4 slaapkamers

Verkocht

Geïnteresseerd in dit object?

Vraag eenvoudig een bezichtiging aan!

Interesse in woning

Omschrijving

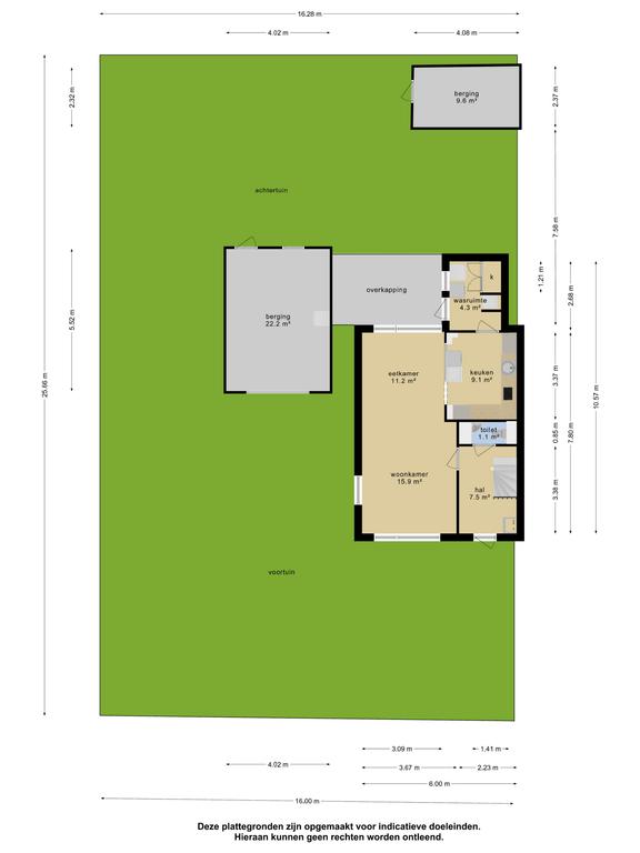
Een ruime hoekwoning met een nog ruimer perceel van maar liefst 426 m2, zo tref je ze maar zelden! Deze hoekwoning aan de Bindert Japiksstrjitte 16 in Drogeham beschikt over 4 slaapkamers, een aangebouwde bijkeuken, houten garage, stenen berging én zeer royale tuin op het zuidwesten!

De woning, welke oorspronkelijk in 1971 gebouwd is, is grotendeels voorzien van vloerverwarming op de begane grond en wordt verwarmd middels een Intergas combiketel. Door de hoog opgetrokken gevels wordt het oppervlakte van de eerste verdieping ook volledig benut. Daarnaast zijn de ramen grotendeels voorzien van dubbel glas. Eerlijk is eerlijk, de woning heeft enig onderhoud nodig maar biedt echt enorm veel potentie!

Indeling:
De woning is op de begane grond als volgt ingericht:
Entree via de voordeur, hal met meterkast en trapopgang; toiletruimte met hangtoilet en fontein; woonkamer van ruim 27 m2; half open keuken met keuken in L-opstelling en opstelplaats voor het witgoed, eveneens afgewerkt met een werkblad; aangebouwde bijkeuken met eveneens een witgoedaansluiting.

Eerste verdieping:
Toegang tot de 3 ruime slaapkamers via de overloop; kastruimte; de badkamer is voorzien van een wastafel en een ligbad met douchemogelijkheid.

Tweede verdieping:
Eveneens middels vaste trap te bereiken; zolderkamer van 12,8 m2 met dakraam en kast met CV-opstelling.

De tuin, welke zowel aan de voorkant, zijkant en achterkant van de woning ligt, is zoals eerder genoemd zeer royaal en biedt vele mogelijkheden. De ligging van de achtertuin is top want die is op het zuidwesten en biedt veel privacy! Op het erf is verder een vrijstaande houten garage van ruim 22 m2 met kanteldeur aanwezig en een vrijstaande stenen berging van ca. 10 m2, dus ook aan bergruimte geen gebrek. De woning is gelegen in een rustige straat met veel groen.

Drogeham
Het dorp Drogeham heeft diverse winkels en horeca te bieden. De basisschool en speeltuin zijn eveneens dichtbij. Wat Drogeham nog leuker maakt is dat er de jaarlijkse bloemencorso (gondelvaart op wielen) wordt georganiseerd. Geweldig om mee te maken! Op een paar autominuten liggen de plaatsen Surhuisterveen, Buitenpost en Drachten. Tevens zijn de A7 en de Waldwei binnen een mum van tijd te bereiken, vanwaar u met de auto snel in alle windstreken kunt vertrekken.

Benieuwd naar alle mogelijkheden van dit leuke hoekhuis? Maak dan snel een afspraak voor een bezichtiging! Onze makelaars heten u van harte welkom aan de Bindert Japiksstrjitte 16 te Drogeham.

Kenmerken

Soort Eengezinswoning, Hoekwoning
Vraagprijs Prijs op aanvraag
Aangeboden 3 jaar geleden
Status Verkocht
Aanvaarding In overleg

Bekijk alle kenmerken...

Interesse?

Vraag een bezichtiging aan

Bekijk de omgeving

Ontdek de ligging van deze woning

Alle kenmerken

Bouw

Bouwvorm Bestaande bouw
Bouwjaar 1971
Bouwjaar omschrijving De woning is gebouwd in 1971.
Onderhoud (binnen) Redelijk tot goed
Toelichting De woning is van binnen redelijk goed onderhouden.
Onderhoud (buiten) MATIG
Toelichting De woning is van buiten matig onderhouden.
Dak Zadeldak
Dak materialen Pannen
Dak toelichting De woning heeft een met pannen bedekt zadeldak.

Buitenruimte

Ligging Aan rustige weg, In woonwijk, Beschutte ligging
Tuin Achtertuin, Voortuin, Zijtuin (NORMAAL)
Tuin oppervlakte 300 m²
Achtertuin 122 m² (7.5m diep en 16.28m breed)
Ligging Gelegen op ZUIDWEST
Parkeren Openbaar parkeren, Op eigen terrein
Parkeren Er is voldoende parkeergelegenheid op eigen terrein of in de omgeving.

Energie

Energielabel C
Einddatum 2032-02-14
Isolatie Dakisolatie, Muurisolatie, Vloerisolatie, Gedeeltelijk dubbel glas
Verwarming CV-ketel, Vloerverwarming (gedeeltelijk)
Warm water CV-ketel
C.V.-ketel Intergas Kombi Kompakt HR22 Gas gestookte combiketel uit 2006 eigendom

Garage

Garage soort Vrijstaand (hout)
Voorzieningen Elektra
Isolatie Geen isolatie
Oppervlakte 22 m² (5.52m diep en 4.02m breed)
Capaciteit 1 auto(s)
Aantal 1

Oppervlakken en inhoud

Perceeloppervlakte 426 m²
Woonoppervlakte 113 m²
Inhoud 403 m³
Oppervlakte externe bergruimte 32 m²
Gebouwgebonden buitenruimte 12 m²

Indeling

Woonlagen 3 woonlagen
Kamers 5 kamers, waarvan 4 slaapkamers
Badkamers 1 badkamer(s) en 1 aparte toilet(ten)
Badkamervoorzieningen Ligbad, Douche, Wastafel
Voorzieningen TV-kabel, Buitenzonwering, Dakraam

Schuur / berging

Schuur / berging soort Vrijstaand (steen)
Voorzieningen Voorzien van elektra
Isolatie Geen isolatie
Aantal 1

Bestemming

Huidig gebruik Woonruimte
Huidige bestemming Woonruimte
Permanente bewoning Ja

Kadaster DROGEHAM F 2831

Oppervlakte 426 m²
Omvang Geheel perceel

Vergelijkbaar in de buurt

...