Menu
Boekweitstrjitte 22 Harkema - Hoofdafbeelding.jpg
D

Tonen op kaart

Verkocht: Boekweitstrjitte 22, Harkema

Harkema Boekweitstrjitte 22

113 m² woonoppervlakte

169 m² perceeloppervlakte

5 kamers, waarvan 4 slaapkamers

Verkocht

Geïnteresseerd in dit object?

Vraag eenvoudig een bezichtiging aan!

Interesse in woning

Omschrijving

Deze royale uitgebouwde tussenwoning met 4 slaapkamers, een ruime zolder op de tweede verdieping en een vrijstaande stenen berging staat op een perceel van 169m² in een rustige woonomgeving op korte afstand van de voorzieningen die Harkema biedt.

Het woonhuis is gebouwd in 1971 en is deels voorzien van dubbele beglazing. Het geheel wordt verwarmd door een HR combiketel Van AWB uit 2002.

De indeling van deze woning is als volgt:
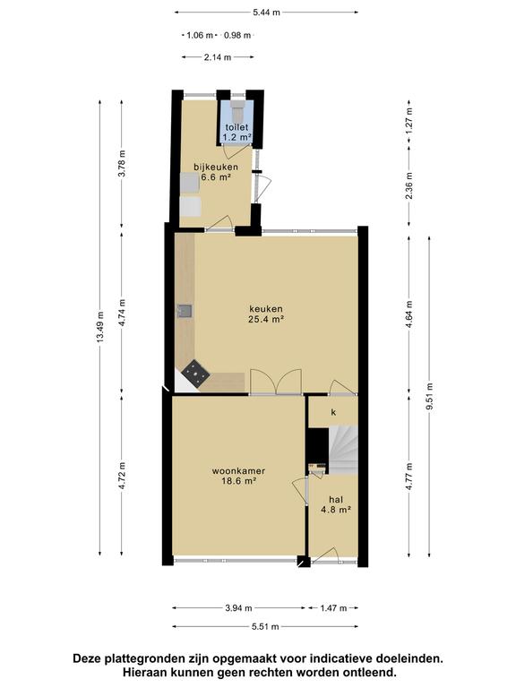
Entree, hal met meterkast en trapopgang, de lichte woonkamer va ca. 19m², de woonkeuken van ca. 25m² met een nette keukenopstelling en diepe trapkast, de bijkeuken met witgoedaansluitingen, toilet en achterentree.

Eerste verdieping:
Overloop met aansluitend vier slaapkamers, de badkamer en een separaat toilet.

Tweede verdieping:
Middels vaste trap te bereiken zolderverdieping met overloop, veel zolderruimte en de cv-opstelling.

De voor-en-achtertuin zijn onderhoudsvriendelijk ingericht. De voortuin is ingericht met bestratingen siergrind. De achtertuin is ingericht met bestrating, de stenen berging en het heeft een achterom.

Het dorp Harkema:
Harkema bezit alle voorzieningen op het gebied van onder andere basisscholen, winkelaanbod en sportaccommodaties. Tevens is de woning gelegen op korte afstand van ontsluitingswegen in de richting van zowel Leeuwarden, Drachten als de A7 (Groningen-Heerenveen).

Surhuisterveen
Harkema ligt op korte afstand van Surhuisterveen. Surhuisterveen is hét dorp in de regio waar alles te vinden is zoals: 4 grote supermarkten, vele bedrijvigheid, een groot openluchtzwembadcomplex, levendige horeca en een multifunctioneel centrum met o.a. een bibliotheek en ontmoetingsplekken. Bovendien ligt Surhuisterveen dichtbij de snelweg (A7) met een uitstekende verbinding naar Groningen, Drachten en Heerenveen. Ook Leeuwarden is zeer gemakkelijk te bereiken via de WâldWei.

Kunt u ook niet wachten om te komen kijken? Bel dan snel voor een bezichtiging voor deze royale woning aan de Boekweitstrjitte 22 te Harkema. Onze flexibele makelaars laten u deze royale woning graag zien!

Kenmerken

Soort Eengezinswoning, Tussenwoning
Vraagprijs Prijs op aanvraag
Aangeboden 3 jaar geleden
Status Verkocht
Aanvaarding In overleg

Bekijk alle kenmerken...

Interesse?

Vraag een bezichtiging aan

Bekijk de omgeving

Ontdek de ligging van deze woning

Alle kenmerken

Bouw

Bouwvorm Bestaande bouw
Bouwjaar 1971
Bouwjaar omschrijving Het woonhuis is gebouwd in 1971
Onderhoud (binnen) Redelijk
Toelichting Het woonhuis is aan de binnenzijde in redelijke staat.
Onderhoud (buiten) Redelijk
Toelichting Het woonhuis is aan de buitenzijde in redelijke staat.
Dak Zadeldak
Dak materialen Pannen, Bitumineuze dakbedekking
Dak toelichting De uitboue is gedekt met bitumineuze dakbedekking.

Buitenruimte

Ligging Aan rustige weg, In woonwijk
Tuin Achtertuin, Voortuin (NORMAAL)
Tuin oppervlakte 100 m²
Achtertuin 72 m² (13m diep en 5.5m breed)
Ligging Gelegen op NOORDWEST (bereikbaar via achterom)
Parkeren Openbaar parkeren
Parkeren Er is voldoende parkeergelegenheid in de straat

Energie

Energielabel D
Einddatum 2033-01-26
Isolatie Dubbel glas, Gedeeltelijk dubbel glas
Verwarming CV-ketel
Warm water CV-ketel
C.V.-ketel HR combi AWB Gas gestookte combiketel uit 2002 eigendom

Oppervlakken en inhoud

Perceeloppervlakte 169 m²
Woonoppervlakte 113 m²
Overige ruimten 26 m²
Inhoud 471 m³
Oppervlakte externe bergruimte 9 m²

Indeling

Woonlagen 3 woonlagen
Kamers 5 kamers, waarvan 4 slaapkamers
Badkamers 1 badkamer(s) en 2 aparte toilet(ten)
Badkamervoorzieningen Douche, Wastafelmeubel
Voorzieningen Mechanische ventilatie, Dakraam

Bestemming

Huidig gebruik Woonruimte
Huidige bestemming Woonruimte
Permanente bewoning Ja

Schuur / berging

Schuur / berging soort Vrijstaand (steen)
Isolatie Geen isolatie
Aantal 1

Kadaster SURHUIZUM C 4994

Oppervlakte 169 m²
Omvang Geheel perceel

Garage

Garage soort Geen garage

Vergelijkbaar in de buurt

...