Menu
Boelenswei 80 Boelenslaan - Hoofdafbeelding.jpg
B

Tonen op kaart

Brochure

Verkocht: Boelenswei 80, Boelenslaan

Boelenslaan Boelenswei 80

168 m² woonoppervlakte

8.500 m² perceeloppervlakte

6 kamers, waarvan 5 slaapkamers

Verkocht

Geïnteresseerd in dit object?

Vraag eenvoudig een bezichtiging aan!

Interesse in woning

Omschrijving

Droom je van een leven waar elke dag aanvoelt als vakantie, omgeven door uitgestrekte natuur? Grijp dan nu je kans met dit prachtige eigendom aan de Boelenswei 80 in Boelenslaan. Gelegen op een royaal en prachtig ingericht perceel van 8.500 m² eigen grond, biedt deze locatie ongeëvenaarde privacy en rust.

Deze charmante en goed onderhouden woonboerderij beschikt over vier slaapkamers, waarvan één op de begane grond. De woning is perfect voor diegenen die ruimte en comfort hoog in het vaandel hebben. Achter in de betoverende tuin, die zo uit een sprookjesboek lijkt te komen, vindt u een sfeervol gastenverblijf met een schitterend uitzicht over de omliggende landerijen. Een ware uitnodiging voor vrienden en familie om te genieten van de rust en de natuur.

Voor de echte buiten- en dierenliefhebbers biedt dit royale perceel vele mogelijkheden voor diverse ruimtevragende hobby's.

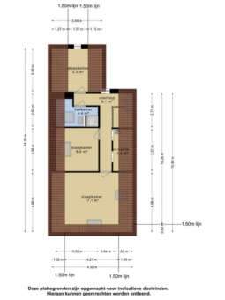
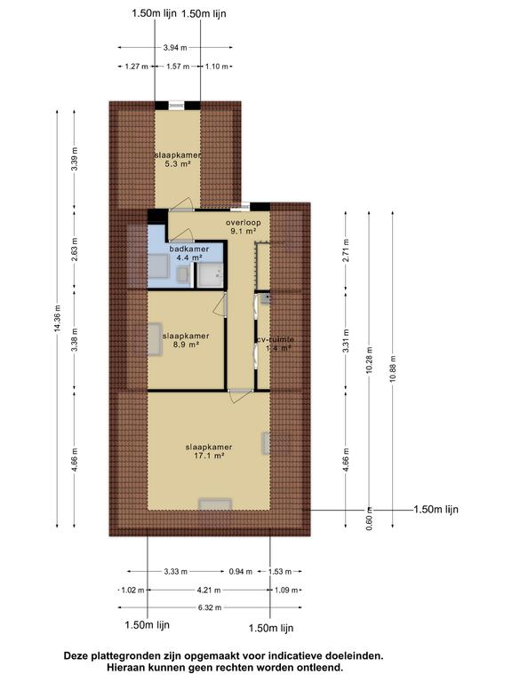
De indeling is als volgt:
WONING
Begane grond:
Entree via de voordeur; ontvangsthal met kast, trapopgang en meterkast; royale leefkeuken met keuken in L-opstelling voorzien van nette keukenopstelling; woonkamer; hal/bijkeuken met achterdeur; toiletruimte met hangtoilet en fontein; slaapkamer.

Eerste verdieping:
Overloop; stookruimte met cv-opstelling (2022); 3 slaapkamers en de badkamer met douche en vaste wastafel

BIJGEBOUW MET GASTENVERBLIJF
Begane grond:
Entree; hal; wasruimte met witgoedopstelplaats en trapopgang; badkamer met douche, wastafel en hangtoilet; bergruimte met toegang tot de stookruimte.

Eerste verdieping:
Royale kamer die nu in gebruik is als gastenverblijf.

TUIN en WEILAND
Het erf is een oase van rust, landelijk gelegen tussen de weilanden. De tuin, die voornamelijk ten zuiden van de woning is gelegen, is een waar paradijs, rijk aan diverse planten, bloemen, bomen en sierlijke struiken. Het waterleven komt tot zijn recht in de serene vijverpartij en voor de tuinliefhebber zijn er meer dan genoeg plekken om te ontspannen of te tuinieren, inclusief een tuinkas en een overdekte zitruimte. Met eveneens de aanwezigheid van meerdere terrassen, een moestuin en uw eigen bos is er voor ieder wat wils, van groene vingers tot zonaanbidders. Het privéweiland maakt het plaatje ook voor de dierenliefhebber compleet.

GARAGE en BERGINGEN
Verder verhoogt een ruime houten garage, een tuinkas met regenwaterput van 3000 m2, een dubbele carport, schapenhok met berging en een houtstek de functionaliteit en charme van dit unieke eigendom.

Het dorp Boelenslaan:
Boelenslaan ligt super centraal, maar is toch echt landelijk. Boelenslaan is dus een heerlijk rustig, groen en centraal dorp, met alle alle voorzieningen op zeer korte afstand. Ook beschikt Boelenslaan over de nodige voorzieningen, waaronder een eigen basisschool, tankstation, cafetaria, een uitgebreid sportcentrum en sportvelden. Ook de bereikbaarheid is uitstekend, zo zijn behalve Drachten en Surhuisterveen ook de autowegen naar Leeuwarden en de verbinding naar de A7 (Groningen-Drachten-Heerenveen) gelegen op zeer korte afstand.

Dit heerlijke huis met een groot thuisgevoel is een zeldzame kans voor liefhebbers van natuur, rust en ruimte. Hier kunt u ontsnappen aan de hectiek van het dagelijks leven en ten alle tijde genieten van de schoonheid die deze plek te bieden heeft. Onze flexibele makelaars delen hun enthousiasme graag met u tijdens een rondleiding aan de Boelenswei 80 in Boelenslaan. Neem snel contact met ons op!

Kenmerken

Soort Woonboerderij, Vrijstaande woning
Vraagprijs Prijs op aanvraag
Aangeboden 2 jaar geleden
Status Verkocht
Aanvaarding In overleg

Bekijk alle kenmerken...

Interesse?

Vraag een bezichtiging aan

Bekijk de omgeving

Ontdek de ligging van deze woning

Alle kenmerken

Bouw

Bouwvorm Bestaande bouw
Bouwjaar 1925
Bouwjaar omschrijving Bouwjaar volgens BAG
Onderhoud (binnen) Goed
Toelichting Het geheel is goed onderhouden.
Onderhoud (buiten) Goed
Toelichting Het geheel is goed onderhouden.
Dak Zadeldak
Dak materialen Riet (dakbedekking), Pannen
Dak toelichting Goed onderhouden dak gedekt met pannen en riet.

Energie

Energielabel B
Einddatum 2034-03-29
Isolatie Dakisolatie, Muurisolatie, Vloerisolatie, Dubbel glas, Grotendeels dubbel glas, HR-glas
Verwarming CV-ketel
Warm water CV-ketel
C.V.-ketel Intergas HR107 Combiketel Gas gestookte combiketel uit 2022 eigendom

Oppervlakken en inhoud

Perceeloppervlakte 8.500 m²
Woonoppervlakte 168 m²
Overige ruimten 22 m²
Inhoud 707 m³
Oppervlakte externe bergruimte 45 m²
Gebouwgebonden buitenruimte 13 m²

Buitenruimte

Ligging Aan rustige weg, Vrij uitzicht, Open ligging, Buiten bebouwde kom, Landelijk gelegen
Tuin Tuin rondom (FRAAI_AANGELEGD)
Tuin oppervlakte 8.190 m²
Ligging Gelegen op (bereikbaar via achterom)
Parkeren Op eigen terrein
Parkeren Ruim voldoende parkeergelegenheid op eigen terrein

Garage

Garage soort Vrijstaand (hout)
Voorzieningen Elektra
Isolatie Geen isolatie
Oppervlakte 34 m² (5.85m diep en 5.83m breed)
Capaciteit 1 auto(s)
Aantal 1

Indeling

Woonlagen 4 woonlagen
Kamers 6 kamers, waarvan 5 slaapkamers
Badkamers 2 badkamer(s) en 1 aparte toilet(ten)
Badkamervoorzieningen Wastafel, Toilet, Douches 2
Voorzieningen TV-kabel, Buitenzonwering, Dakraam, Glasvezelkabel, Natuurlijke ventilatie

Schuur / berging

Schuur / berging soort Vrijstaand (hout)
Voorzieningen Voorzien van elektra
Isolatie Geen isolatie
Aantal 2

Bestemming

Huidig gebruik Woonruimte
Huidige bestemming Woonruimte
Permanente bewoning Ja

Kadaster SURHUIZUM B 3854

Oppervlakte 8.390 m²
Omvang Geheel perceel

Vergelijkbaar in de buurt

...