Menu
Bonhommestrjitte 20 Surhuizum - Hoofdafbeelding.jpg
C

Tonen op kaart

Brochure

Verkocht: Bonhommestrjitte 20, Surhuizum

Surhuizum Bonhommestrjitte 20

101 m² woonoppervlakte

262 m² perceeloppervlakte

4 kamers, waarvan 3 slaapkamers

Verkocht

Geïnteresseerd in dit object?

Vraag eenvoudig een bezichtiging aan!

Interesse in woning

Omschrijving

Op zoek naar een uitgebouwde en keurig onderhouden woning met eigen oprit, garage en zonnige achtertuin in een rustige en groene omgeving? Bonhommestrjitte 20 in Surhuizum biedt dan precies wat je nodig hebt. Deze fraaie twee-onder-een-kapwoning ligt aan een rustige straat en is omgeven door veel groen, met een park direct achter de woning.

Bij binnenkomst valt direct de ruime, uitgebouwde woon-/eetkamer op (2010) waarbij eveneens een open keuken is gecreëerd, voorzien van moderne inbouwapparatuur. Het huis beschikt over drie lichte kamers, ideaal als slaapkamers of als hobbyruimtes. Met een perceel van 262 m² biedt deze woning ook buiten volop ruimte.

Het woonhuis beschikt over een keurig C-energielabel en wordt verwarmd door een HR AWB ketel uit 2013.

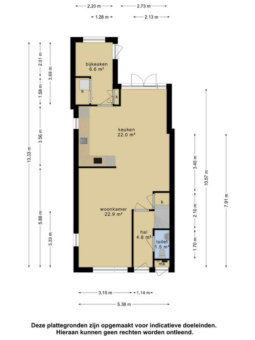
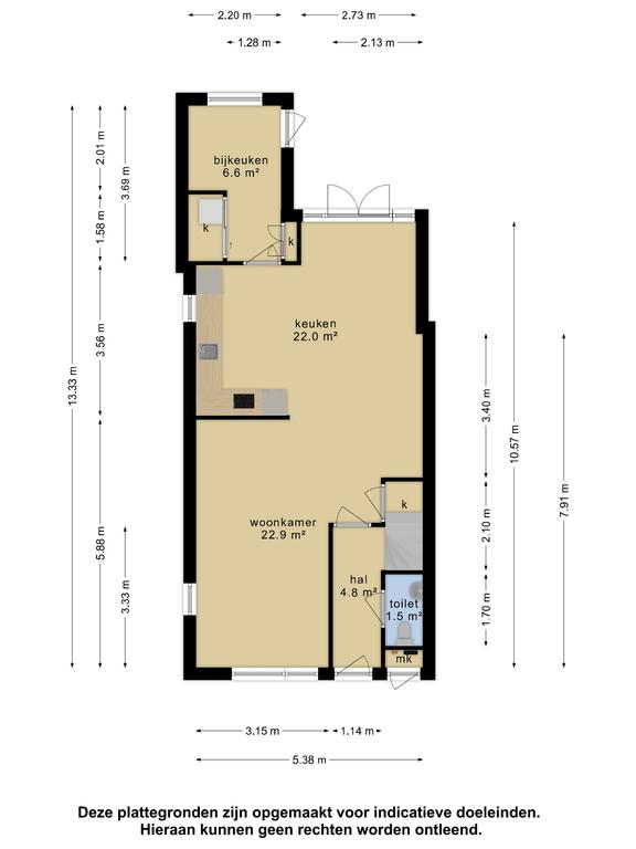
De indeling is als volgt:
Begane grond:
Entree via de voordeur (meterkast deur ernaast); hal met trapopgang; toiletruimte met toilet en fontein; uitgebouwde woon-/eetkamer voorzien van open keuken in L-opstelling; bijkeuken met witgoedaansluitingen;

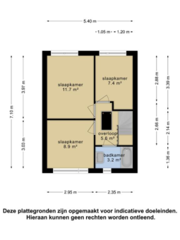
Eerste verdieping:
Overloop met toegang tot de omliggende drie kamers; badkamer voorzien van bad met douchegelegenheid en wasmeubel;

Tweede verdieping:
Middels vlizotrap bereikbare bergzolder.

Buitenom:
De privacyvolle achtertuin op het zuidoosten is een heerlijke plek om te ontspannen. Deze tuin is uitgerust met een vrijstaande houten schuur, (kunst)gras, meerdere terrassen en veel groen. Voor de woning ligt een lange oprit waar je gemakkelijk meerdere auto's kunt parkeren. De woning staat aan een rustige straat met weinig doorgaand verkeer.

Het dorp Surhuizum:
Er wordt veel georganiseerd in het dorp, en ook de jaarlijkse 'spulwike' (spelletjesweek) is een aanrader, aldus de verkopers! Surhuizum biedt het beste van twee werelden: de rust van een dorp met essentiële voorzieningen zoals een school, maar ook een kapper, snackbar, sportvoorzieningen en een pannenkoekhuis, gecombineerd met de nabijheid van Surhuisterveen voor een uitgebreid bedrijfs-, winkel- en horeca aanbod. Surhuizum is daarnaast gelegen nabij diverse uitvalswegen, waaronder de Waldwei en de A7.

Bonhommestrjitte 20 is de perfecte plek voor wie rust, ruimte en groen zoekt in een sfeervolle woonomgeving. Kom langs en ervaar zelf het gemak en de charme van deze nette woning. Maak snel een afspraak voor een bezichtiging met één van onze flexibele makelaars bij deze woning in Surhuizum en ontdek de mogelijkheden die deze woning jou te bieden heeft.

Kenmerken

Soort Eengezinswoning, Twee-onder-een-kapwoning
Vraagprijs Prijs op aanvraag
Aangeboden 1 jaar geleden
Status Verkocht
Aanvaarding In overleg

Bekijk alle kenmerken...

Interesse?

Vraag een bezichtiging aan

Bekijk de omgeving

Ontdek de ligging van deze woning

Alle kenmerken

Bouw

Bouwvorm Bestaande bouw
Bouwjaar 1980
Bouwjaar omschrijving Gebouwd in 1980, volgens BAG.
Onderhoud (binnen) Goed
Toelichting Keurig onderhouden.
Onderhoud (buiten) Goed
Toelichting Keurig onderhouden.
Dak Zadeldak
Dak materialen Pannen
Dak toelichting Zadeldak (dwarskap) met pannen gedekt.

Buitenruimte

Ligging Aan park, Aan rustige weg, In woonwijk
Tuin Achtertuin, Voortuin, Zijtuin, Tuin rondom (FRAAI_AANGELEGD)
Tuin oppervlakte 150 m²
Achtertuin 100 m² (13.87m diep en 8.49m breed)
Ligging Gelegen op ZUIDOOST (bereikbaar via achterom)
Parkeren Openbaar parkeren, Op eigen terrein
Parkeren Voldoende parkeergelegenheid.

Energie

Energielabel C
Einddatum 2034-06-24
Isolatie Dakisolatie, Muurisolatie, Dubbel glas
Verwarming CV-ketel
Warm water CV-ketel
C.V.-ketel AWB HR ketel Gas gestookte combiketel uit 2013 eigendom

Garage

Garage soort Vrijstaand (hout)
Voorzieningen Elektra
Isolatie Geen isolatie
Oppervlakte 16 m² (5.82m diep en 2.83m breed)
Capaciteit 1 auto(s)
Aantal 1

Indeling

Woonlagen 3 woonlagen
Kamers 4 kamers, waarvan 3 slaapkamers
Badkamers 1 badkamer(s) en 1 aparte toilet(ten)
Badkamervoorzieningen Ligbad, Zitbad, Douche, Wastafel, Wastafelmeubel
Voorzieningen TV-kabel, Glasvezelkabel, Natuurlijke ventilatie

Oppervlakken en inhoud

Perceeloppervlakte 262 m²
Woonoppervlakte 101 m²
Inhoud 362 m³
Oppervlakte externe bergruimte 17 m²

Bestemming

Huidig gebruik Woonruimte
Huidige bestemming Woonruimte
Permanente bewoning Ja

Kadaster SURHUIZUM A 3057

Oppervlakte 262 m²
Omvang Geheel perceel

Vergelijkbaar in de buurt

...