Menu
Boskkamp 9 Augustinusga - Hoofdafbeelding.jpg
C

Tonen op kaart

Brochure

Verkocht: Boskkamp 9, Augustinusga

Augustinusga Boskkamp 9

90 m² woonoppervlakte

344 m² perceeloppervlakte

6 kamers, waarvan 4 slaapkamers

Verkocht

Geïnteresseerd in dit object?

Vraag eenvoudig een bezichtiging aan!

Interesse in woning

Omschrijving

Boskkamp 9 in Augustinusga bied je een goed onderhouden twee-onder-een-kapwoning in een rustige, kindvriendelijke en groene wijk. Deze woning beschikt over drie slaapkamers, een uitbouw in de vorm van een bijkeuken en een ruime garage. De woning staat op een royaal perceel van 344m² eigen grond, en er is tevens een vrijstaande garage met aangebouwde berging aanwezig. De bouw is degelijk, met onder andere betonvloeren en een robuuste constructie.

Levensloopbestendig wonen is hier goed mogelijk, dankzij de extra kamer op de begane grond. Met enkele aanpassingen kun je hier zelfs een badkamer realiseren. Hoewel de woning enige ouderdom kent, is alles goed onderhouden en functioneel.

Het perceel voelt bijzonder ruim aan, mede dankzij de grote achtertuin van meer dan 15 meter lang. Door de ligging naar het oosten en zuiden kun je zowel van de zon als de schaduw genieten.

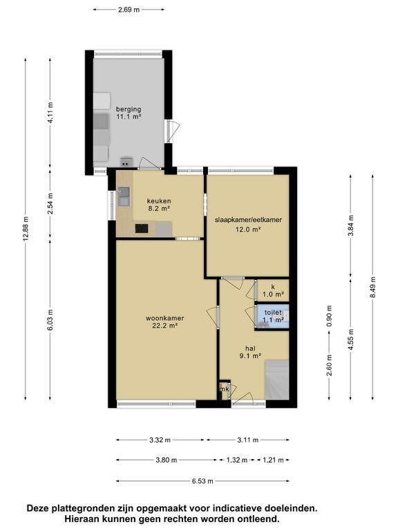
Binnen vind je een hal/entree met meterkast, een toiletruimte met toilet en fontein, en een grote bergkast. De woonkamer van ongeveer 22m² staat in verbinding met de L-vormige keuken en leidt naar de tweepersoonsslaapkamer/eetkamer op de begane grond. De royale bijkeuken biedt ruimte voor witgoed en de cv-opstelling.

Op de eerste etage vind je een overloop, drie slaapkamers met veel bergruimte en een dakkapel die de kleinste slaapkamer vergroot tot een ruime eenpersoonsslaapkamer. De badkamer is voorzien van een inloopdouche, toilet en wastafel met meubel.

Buiten geniet je van royale terrasruimtes met borders en een grote garage met aangebouwde bergruimte. De oprit is ruim en biedt plaats aan meerdere auto's.

Augustinusga beschikt over een basisschool en sportvoorzieningen. Grotere plaatsen zoals Surhuisterveen en Buitenpost liggen op korte afstand, met een breed aanbod aan winkels, middelbare scholen, culturele voorzieningen en horecagelegenheden. Daarnaast is de snelweg A7 (richting Groningen, Drachten, Heerenveen) gemakkelijk bereikbaar.

Zie jij jezelf hier wonen, in een degelijk huis met een grote tuin en een royale garage? Maak dan een afspraak met onze flexibele makelaars om Boskkamp 9 in Augustinusga te bezichtigen.

Kenmerken

Soort Eengezinswoning, Twee-onder-een-kapwoning
Vraagprijs Prijs op aanvraag
Aangeboden 2 jaar geleden
Status Verkocht
Aanvaarding In overleg

Bekijk alle kenmerken...

Interesse?

Vraag een bezichtiging aan

Bekijk de omgeving

Ontdek de ligging van deze woning

Alle kenmerken

Buitenruimte

Ligging Aan rustige weg, In woonwijk, Open ligging
Tuin Achtertuin, Voortuin, Zijtuin (FRAAI_AANGELEGD)
Tuin oppervlakte 240 m²
Achtertuin 150 m² (15.36m diep en 10.84m breed)
Ligging Gelegen op ZUIDOOST (bereikbaar via achterom)
Parkeren Openbaar parkeren, Op eigen terrein
Parkeren Ruim voldoende parkeergelegenheid, zowel op eigen oprit, als in de straat.

Bouw

Bouwvorm Bestaande bouw
Bouwjaar 1979
Onderhoud (binnen) Goed
Onderhoud (buiten) Goed
Dak Dwarskap
Dak materialen Pannen, Bitumineuze dakbedekking

Energie

Energielabel C
Einddatum 2034-05-02
Isolatie Dakisolatie, Muurisolatie, Dubbel glas, HR-glas
Verwarming CV-ketel
Warm water CV-ketel
C.V.-ketel Intergas HRE A-label pomp Gas gestookte combiketel uit 2016 eigendom

Oppervlakken en inhoud

Perceeloppervlakte 344 m²
Woonoppervlakte 90 m²
Overige ruimten 11 m²
Inhoud 364 m³
Oppervlakte externe bergruimte 30 m²

Indeling

Woonlagen 2 woonlagen
Kamers 6 kamers, waarvan 4 slaapkamers
Badkamers 2 badkamer(s) en 1 aparte toilet(ten)
Badkamervoorzieningen Wastafel, Douche, Wastafelmeubel, Inloopdouche, Toiletten 2
Voorzieningen TV-kabel

Garage

Garage soort Vrijstaand (steen), Parkeerplaats
Voorzieningen Elektra
Oppervlakte 18 m² (5.91m diep en 2.99m breed)
Capaciteit 1 auto(s)
Aantal 1

Bestemming

Huidig gebruik Woonruimte
Huidige bestemming Woonruimte
Permanente bewoning Ja

Schuur / berging

Schuur / berging soort Vrijstaand (kunststof)
Voorzieningen Voorzien van elektra
Aantal 2

Kadaster DROGEHAM C 2147

Oppervlakte 344 m²
Omvang Geheel perceel

Vergelijkbaar in de buurt

...