Menu
Bosmastrjitte 32 Drogeham - Hoofdafbeelding.jpg
D

Tonen op kaart

Verkocht: Bosmastrjitte 32, Drogeham

Drogeham Bosmastrjitte 32

111 m² woonoppervlakte

145 m² perceeloppervlakte

5 kamers, waarvan 5 slaapkamers

Verkocht

Geïnteresseerd in dit object?

Vraag eenvoudig een bezichtiging aan!

Interesse in woning

Omschrijving

Deze ruime, keurig onderhouden tussenwoning met prachtuitzicht over een speelveld is gelegen in een rustige kindvriendelijke woonomgeving op een perceel van 145 m² aan eigen grond.

Het woonhuis gebouwd in 1976 is voorzien van dubbele beglazing en wordt verwarmd door een HR combiketel van Atag uit ca. 2013. In 2018 is de woning geschilderd.

De indeling van deze woning is als volgt:
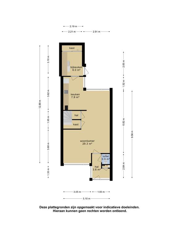
Entree, hal met toilet voorzien van fontein, de lichte L-vormige woonkamer van ca. 29 m² met trapkast en een open keuken ca. 8 m² voorzien van een nette keukenopstelling, bijkeuken met witgoedaansluitingen, een zolderruimte met cv-opstelling en achterentree.

Eerste verdieping:
Overloop met aansluitend drie slaapkamers en de badkamer met douchehoek, tweede toilet en vaste wastafel.

Tweede verdieping:
Middels vaste trap te bereiken zolderverdieping.

De voortuin is ingericht met fraaie beplanting en een heg. De achtertuin is gelegen op het noordoosten, welke is ingericht met terrassen, een gazon en een achterom. Het is geheel omsloten waardoor u optimaal van de tuin en uw privacy kunt genieten.

De parkeerhavens in de straat bieden voldoende parkeergelegenheid om bij de woning te parkeren. Het dorp Drogeham heeft voorzieningen zoals o.a. een school, diverse winkels, sportvoorzieningen en horeca. Op een paar autominuten liggen de plaatsen Surhuisterveen, Buitenpost en Drachten.

Drogeham
De speeltuin om de hoek en speelvelden voor deur; dit zijn slechts enkele kenmerken rond deze woning. De straat is zeer gezellig en de de basisschool, sportgelegenheden en winkels bevinden zich op loopafstand. Het dorp Drogeham heeft diverse winkels en horeca gelegenheden. Ook is er een supermarkt aanwezig in het dorp. In Drogeham wordt veel georganiseerd, zo is er bijvoorbeeld de jaarlijkse bloemencorso (gondelvaart op wielen), maar ook meerdere grote paardevenementen en dorpsfeesten. Op een paar autominuten liggen de plaatsen zeer voorzieningsrijke plaatsen Surhuisterveen, Buitenpost en Drachten. Tevens is de A7 binnen een mum van tijd te bereiken.

Is uw interesse voor deze tussenwoning gewekt? Maak dan een afspraak voor een bezichtiging om uw indruk compleet te maken. Wij heten u alvast van harte welkom aan de Bosmastrjitte 32 te Drogeham.

Kenmerken

Soort Eengezinswoning, Tussenwoning
Vraagprijs Prijs op aanvraag
Aangeboden 3 jaar geleden
Status Verkocht
Aanvaarding In overleg

Bekijk alle kenmerken...

Interesse?

Vraag een bezichtiging aan

Bekijk de omgeving

Ontdek de ligging van deze woning

Alle kenmerken

Bouw

Bouwvorm Bestaande bouw
Bouwjaar 1976
Onderhoud (binnen) Goed tot uitstekend
Toelichting De woning is in goede staat van onderhoud.
Onderhoud (buiten) Goed
Toelichting De woning is in goede staat van onderhoud.
Dak Zadeldak
Dak materialen Pannen
Dak toelichting Een met pannen gedekt zadeldak.

Buitenruimte

Ligging Aan rustige weg, In woonwijk, Open ligging
Tuin Achtertuin, Voortuin (NORMAAL)
Tuin oppervlakte 80 m²
Achtertuin 50 m² (10m diep en 5m breed)
Ligging Gelegen op NOORDOOST (bereikbaar via achterom)
Parkeren Openbaar parkeren
Parkeren Ruim voldoende parkeergelegenheid in de parkeerhavens.

Energie

Energielabel D
Einddatum 2024-12-02
Isolatie Dubbel glas
Verwarming CV-ketel
Warm water CV-ketel
C.V.-ketel HR combiketel Atag Gas gestookte combiketel uit 2013 eigendom

Indeling

Woonlagen 3 woonlagen
Kamers 5 kamers, waarvan 5 slaapkamers
Badkamers 1 badkamer(s) en 1 aparte toilet(ten)
Badkamervoorzieningen Toilet, Douche, Wastafel
Voorzieningen Mechanische ventilatie, TV-kabel, Natuurlijke ventilatie

Oppervlakken en inhoud

Perceeloppervlakte 145 m²
Woonoppervlakte 111 m²
Overige ruimten 16 m²
Inhoud 393 m³

Bestemming

Huidig gebruik Woonruimte
Huidige bestemming Woonruimte
Permanente bewoning Ja

Kadaster DROGEHAM F 3517

Oppervlakte 145 m²
Omvang Geheel perceel

Garage

Garage soort Geen garage

Vergelijkbaar in de buurt

...