Menu
Buorrefinnewei 37 Jistrum - Hoofdafbeelding.jpg
B

Tonen op kaart

Brochure

Verkocht: Buorrefinnewei 37, Jistrum

Jistrum Buorrefinnewei 37

87 m² woonoppervlakte

211 m² perceeloppervlakte

6 kamers, waarvan 4 slaapkamers

Verkocht

Geïnteresseerd in dit object?

Vraag eenvoudig een bezichtiging aan!

Interesse in woning

Omschrijving

Deze nette tussenwoning met aangebouwde berging, overkapping en houten berging is gelegen in een rustige woonomgeving op 211 m2 eigen grond.

Het woonhuis is gebouwd in 1972 en is voorzien van kunststof kozijnen met HR ++ beglazing. Het wordt verwarmd middels een HR combiketel van Remeha uit 2007.

De indeling van deze woning is als volgt:
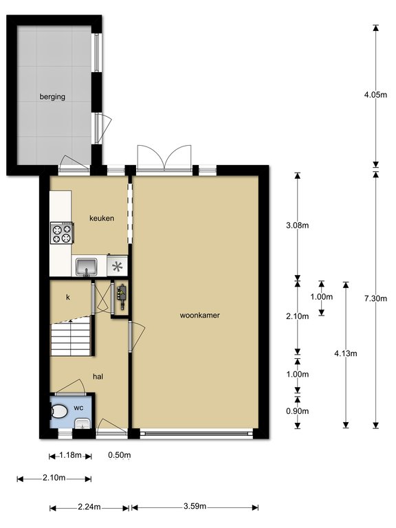
Entree, hal met toilet voorzien van fontein, meterkast en trapopgang, lichte doorzonwoonkamer van ca. 26 m2 met openslaande deuren naar de tuin, keuken met een nette keukenopstelling voorzien van inbouwapparatuur, bijkeuken met achterentree.

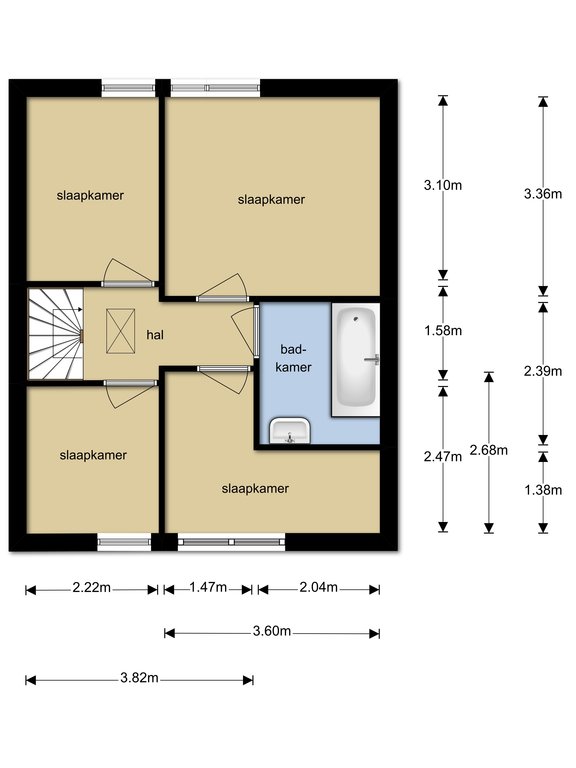
Eerste verdieping: overloop, met aansluitend vier slaapkamers en een badkamer met whirlpool, douche en vaste wastafel.

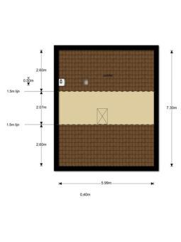
Tweede verdieping: middels vlizotrap te bereiken ruime zolderverdieping met c.v.-opstelling.

De voor- en achtertuin zijn onderhoudsvriendelijk ingericht, de achtertuin heeft een vrijstaande berging met overkapping en is gelegen op het noordoosten.

Het dorp Jistrum is gelegen in het typische Friese woudenlandschap ten noordoosten van het Burgumermeer. De winkelvoorzieningen zijn volop te vinden in de nabijgelegen dorpen Burgum en Kootstertille. Voor basisonderwijs en opvang van de allerkleinsten kan men in het eigen dorp terecht.

Bent u nieuwsgierig geworden naar deze woning? Maak dan een afspraak voor een bezichtiging. Wij zien u graag aan de Buorrefinnewei 37 te Jistrum.

Kenmerken

Soort Eengezinswoning, Tussenwoning
Vraagprijs Prijs op aanvraag
Aangeboden 5 jaar geleden
Status Verkocht
Aanvaarding In overleg

Bekijk alle kenmerken...

Interesse?

Vraag een bezichtiging aan

Bekijk de omgeving

Ontdek de ligging van deze woning

Alle kenmerken

Bouw

Bouwvorm Bestaande bouw
Bouwjaar 1972
Onderhoud (binnen) Goed
Toelichting Het onderhoud van binnen is goed
Onderhoud (buiten) Goed
Toelichting Het onderhoud van buiten is goed
Dak Samengesteld dak
Dak materialen Pannen, Bitumineuze dakbedekking
Dak toelichting zadeldak en plat dak

Energie

Energielabel B
Einddatum 2020-12-30
Isolatie HR-glas
Verwarming CV-ketel
Warm water CV-ketel
C.V.-ketel Remeha HR Gas gestookte combiketel uit 2007 eigendom

Buitenruimte

Ligging Aan rustige weg
Tuin Achtertuin (NORMAAL)
Tuin oppervlakte 160 m²
Achtertuin 105 m² (17.5m diep en 6m breed)
Ligging Gelegen op NOORDOOST (bereikbaar via achterom)
Parkeren Openbaar parkeren

Oppervlakken en inhoud

Perceeloppervlakte 211 m²
Woonoppervlakte 87 m²
Overige ruimten 21 m²
Inhoud 393 m³
Oppervlakte externe bergruimte 6 m²

Indeling

Woonlagen 3 woonlagen
Kamers 6 kamers, waarvan 4 slaapkamers
Badkamers 1 badkamer(s) en 1 aparte toilet(ten)
Badkamervoorzieningen Ligbad, Wastafel
Voorzieningen TV-kabel

Bestemming

Huidig gebruik Woonruimte
Huidige bestemming Woonruimte
Permanente bewoning Ja

Schuur / berging

Schuur / berging soort Vrijstaand (hout)
Isolatie Geen isolatie
Aantal 1

Kadaster OOSTERMEER G 2403

Oppervlakte 211 m²
Omvang Geheel perceel

Garage

Garage soort Geen garage

Vergelijkbaar in de buurt

...