Menu
Buorren 42 Houtigehage - Hoofdafbeelding.jpg
C

Tonen op kaart

Verkocht: Buorren 42, Houtigehage

Houtigehage Buorren 42

225 m² woonoppervlakte

814 m² perceeloppervlakte

5 kamers, waarvan 4 slaapkamers

Verkocht

Geïnteresseerd in dit object?

Vraag eenvoudig een bezichtiging aan!

Interesse in woning

Omschrijving

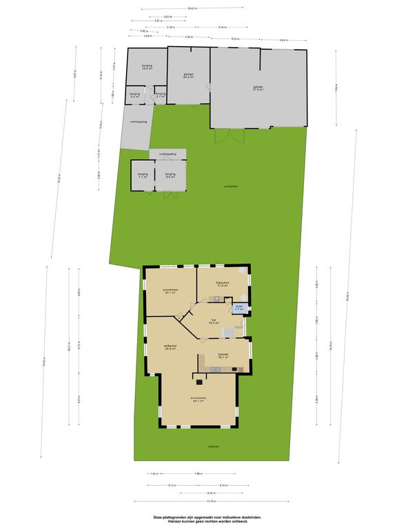
Liefhebbers van een karakteristieke, vrijstaande woning opgelet: dit geheel aan Buorren 42 te Houtigehage staat te koop! Deze keurig onderhouden en royale woonboerderij heeft behalve veel woonruimte ook veel hobby/werkruimte met de royale garages en bergingen. De woning is gelegen binnen de bebouwde kom van het dorp op een royaal perceel van maar liefst 814 m2.

De woning beschikt over een extra woonkamer op de begane grond die uiteraard ook als slaapkamer of werkkamer ingericht kan worden. Verder wordt de woning centraal verwarmd met behulp van deels vloerverwarming en deels radiatoren, de Intergas c.v. combiketel van 2019, er is dakisolatie aanwezig en zijn de ramen deels voorzien van isolatieglas.

De indeling van de woning is als volgt:
Begane grond: zijentree, hal, toiletruimte met zwevend closet, royale en sfeervolle woonkamer van ca. 70 m² met zitkamer en eetkamer gedeelte, open woonkeuken van ca. 18 m² met inbouwkeuken inclusief inbouwapparatuur (dubbel spoelbak, gaskookplaat, afzuigkap, vaatwasser en een koelkast), de vloer van deze woonkamer, woonkeuken, hal en bijkeuken zijn afgewerkt met een lichte siergrindvloer, tweede tuingerichte woonkamer en/of slaapkamer ca. 24 m² met een schuifpui naar het terras, een plavuizenvloer en een vaste kast, ruime bijkeuken met witgoedaansluiting en achterentree.

Eerste etage: overloop met vide, kastruimte met c.v. opstelling, drie ruime slaapkamers waarvan de ouderslaapkamer (ca. 25.2 m²) gesitueerd is aan de voorzijde, de achterste slaapkamer (ca. 14,9 m²) heeft een balkon op de zuidoost zijde, alle drie slaapkamers zijn voorzien van een vaste wastafel, badkamer met wastafel meubel, inloopdouche, ligbad en een 2e toilet.

Tweede etage: zolderberging.

Doordat de woning aan het begin van het perceel geplaatst is, is er een ruime achtertuin overgebleven dat ingericht is met een groot zonneterras, een dierenverblijf en een tuinhuisje. De lange oprit naast de woning biedt veel parkeergelegenheid op het eigen terrein. Aan het einde van de oprit staat een royale garage van ca. 78 m², daarnaast staat nog een garage van ca. 24,5 m² en zijn er nog meerdere bergingen.

Het energielabel is in aanvraag en betreft momenteel een voorlopig C-energielabel. Een voorlopig label heeft geen officiële status. Het is bedoeld als kennismaking met het energielabel. De kans is dus groot dat het energielabel een hoger label betreft dan getoond.

Het Friese dorp Houtigehage is gunstig gelegen ten opzichte van Drachten en Surhuisterveen. Tevens op korte afstand van uitvalswegen in de richtingen van zowel Groningen, Heerenveen en Leeuwarden.

Enthousiast geworden over dit geheel? Eén van onze makelaars laat u het geheel graag zien!

Kenmerken

Soort Eengezinswoning, Vrijstaande woning
Vraagprijs Prijs op aanvraag
Aangeboden 4 jaar geleden
Status Verkocht
Aanvaarding In overleg

Bekijk alle kenmerken...

Interesse?

Vraag een bezichtiging aan

Bekijk de omgeving

Ontdek de ligging van deze woning

Alle kenmerken

Bouw

Bouwvorm Bestaande bouw
Bouwjaar 1977
Onderhoud (binnen) Goed
Toelichting Het geheel is goed onderhouden van binnen.
Onderhoud (buiten) Goed
Toelichting Het geheel is goed onderhouden van buiten.
Dak Samengesteld dak
Dak materialen Pannen, Bitumineuze dakbedekking
Dak toelichting Dit samengestelde dak bestaat uit pannen en een bitumineuze dakbedekking

Buitenruimte

Ligging Aan rustige weg, In woonwijk, Beschutte ligging
Tuin Achtertuin, Voortuin, Zijtuin, Tuin rondom, Zonneterras (VERZORGD)
Tuin oppervlakte 650 m²
Achtertuin 270 m² (15m diep en 18m breed)
Ligging Gelegen op ZUIDOOST (bereikbaar via achterom)
Parkeren Openbaar parkeren, Op eigen terrein
Parkeren Er is voldoende parkeergelegenheid op eigen terrein als aan de straat

Energie

Energielabel C
Einddatum 2031-10-04
Isolatie Dakisolatie, Gedeeltelijk dubbel glas, Grotendeels dubbel glas
Verwarming CV-ketel, Vloerverwarming (gedeeltelijk)
Warm water CV-ketel, Elektrische boiler (huur)
C.V.-ketel Intergas c.v. combiketel Gas gestookte combiketel uit 2019 eigendom

Oppervlakken en inhoud

Perceeloppervlakte 814 m²
Woonoppervlakte 225 m²
Overige ruimten 6 m²
Inhoud 859 m³
Oppervlakte externe bergruimte 142 m²
Gebouwgebonden buitenruimte 5 m²

Indeling

Woonlagen 3 woonlagen
Kamers 5 kamers, waarvan 4 slaapkamers
Badkamers 1 badkamer(s) en 1 aparte toilet(ten)
Badkamervoorzieningen Ligbad, Zitbad, Toilet, Douche, Wastafel, Wastafelmeubel, Inloopdouche
Voorzieningen TV-kabel, Buitenzonwering, Satellietschotel

Garage

Garage soort Vrijstaand (hout)
Voorzieningen Elektra, Water
Oppervlakte 78 m² (8m diep en 9.8m breed)
Capaciteit 2 auto(s)
Aantal 2

Schuur / berging

Schuur / berging soort Vrijstaand (hout)
Voorzieningen Voorzien van elektra
Isolatie Geen isolatie
Aantal 2

Bestemming

Huidig gebruik Woonruimte
Huidige bestemming Woonruimte
Permanente bewoning Ja

Kadaster ROTTEVALLE A 2464

Oppervlakte 814 m²
Omvang Geheel perceel

Vergelijkbaar in de buurt

...