Menu
Buorren 5 Rottevalle - Hoofdafbeelding.jpg
A

Tonen op kaart

Brochure

Verkocht: Buorren 5, Rottevalle

Rottevalle Buorren 5

141 m² woonoppervlakte

208 m² perceeloppervlakte

6 kamers, waarvan 4 slaapkamers

Verkocht
Referentie door verkoper: "Beste makelaar van het noorden die met je meedenkt en de tijd neemt om met je te sparren en alles tot in de puntjes regelt."
Geschreven op 18-04-2026

Deskundigheid10

Prijs/kwaliteit10

Marktkennis10

Service10

Meer reviews bekijken op Funda

Geïnteresseerd in dit object?

Vraag eenvoudig een bezichtiging aan!

Interesse in woning

Omschrijving

Midden in het gezellige dorp Rottevalle staat deze robuuste, recent vernieuwde vrijstaande woning. Met een woonoppervlak van 141 m² biedt deze karakteristieke woning volop mogelijkheden. Dankzij de bestemming ‘Gemengd-2’ kun je hier niet alleen wonen, maar is het ook uitermate geschikt voor een combinatie van wonen en werken.

De woning is traditioneel gebouwd in 1957 en recent vernieuwd met een duurzaam uitrustingsniveau. Het dak is vernieuwd en geïsoleerd, de gevels hebben een dik isolatiepakket en er zijn kunststof kozijnen met HR++-beglazing geplaatst. De woning wordt verwarmd door twee HR combiketels in combinatie met radiatoren en elektrische vloerverwarming op de verdieping. Ook de binnenzijde heeft een moderne uitstraling gekregen, met strak afgewerkte muren, plafonds en nieuwe vloeren.

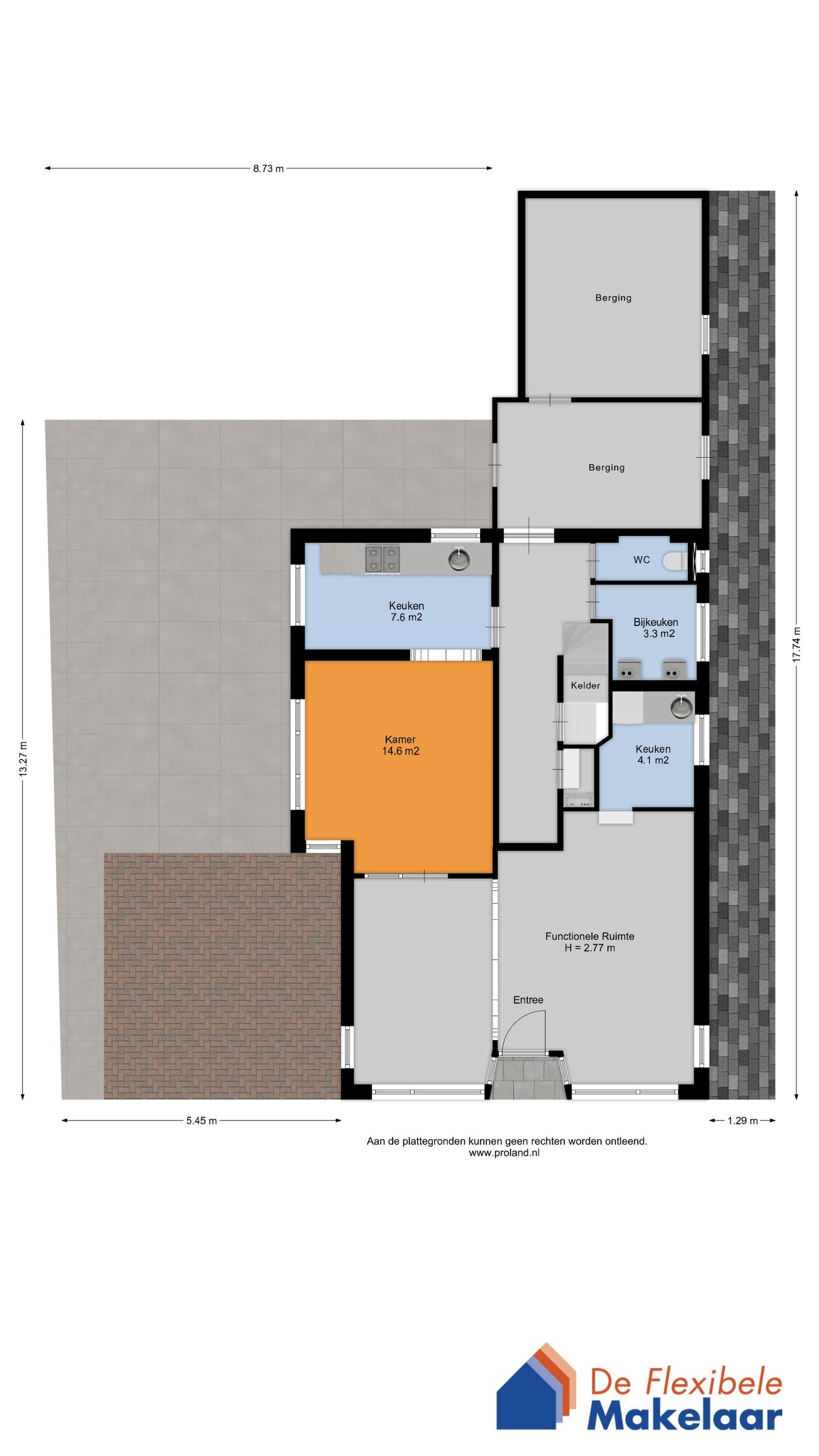
Bij binnenkomst kom je in het tochtportaal, dat toegang geeft tot de lichte woonkamer, momenteel deels ingericht als kapsalon. De eetkamer sluit aan op de keuken, die is voorzien van een nette keukenopstelling met inbouwapparatuur. Verder vind je op de begane grond een pantry, een hal met trapopgang, een kelder, een bijkeuken met cv-opstellingen en witgoedaansluitingen, een toilet met hangcloset en toegang tot twee bergingen.

Op de eerste verdieping bevindt zich een ruime overloop met vier slaapkamers en een badkamer met douche, ligbad, een wasmeubel met twee wasbakken en een wandcloset.

De zij- en achtertuin zijn volledig betegeld en de bestrate oprit biedt voldoende parkeergelegenheid op eigen terrein. Dankzij de bestemming ‘Gemengd-2’ zijn er diverse gebruiksmogelijkheden. Denk aan een winkel, kantoor of andere bedrijvigheid in combinatie met wonen. De woning is jarenlang in gebruik geweest als kapsalon en deze inrichting is nog aanwezig. Het geheel is eenvoudig naar eigen wens aan te passen. Voor meer informatie hierover kun je het bestemmingsplan raadplegen via het Omgevingsloket.

Rottevalle ligt op circa vijf autominuten van Drachten en heeft goede verbindingen richting Leeuwarden en de A7. Het is een prettige en rustige woonplaats met een jachthaven en het prachtige meer De Leijen. De omgeving nodigt uit tot wandelen, fietsen, zwemmen, varen en kanoën.

Onze flexibele makelaars nodigen je van harte uit om deze woning te bezichtigen. Neem contact op en ontdek zelf de mogelijkheden aan de Buorren 5 in Rottevalle.

Kenmerken

Soort Eengezinswoning, Vrijstaande woning
Vraagprijs Prijs op aanvraag
Aangeboden 3 maanden geleden
Status Verkocht
Aanvaarding In overleg

Bekijk alle kenmerken...

Interesse?

Vraag een bezichtiging aan

Bekijk de omgeving

Ontdek de ligging van deze woning

Alle kenmerken

Bouw

Bouwvorm Bestaande bouw
Bouwjaar 1957
Bouwjaar omschrijving Bouwjaar volgens BAG
Onderhoud (binnen) Goed tot uitstekend
Toelichting Het woonhuis is zeer goed onderhouden
Onderhoud (buiten) Goed tot uitstekend
Toelichting Het woonhis is zeer goed onderhouden.
Dak Plat dak
Dak materialen Bitumineuze dakbedekking
Dak toelichting Gedekt met bitumineuze dakbedekking.

Buitenruimte

Ligging Aan rustige weg, In centrum
Tuin Achtertuin, Zijtuin (Normaal)
Tuin oppervlakte 90 m²
Zijtuin 72 m² (13.27m diep en 5.45m breed)
Ligging Gelegen op ZUIDWEST
Parkeren Openbaar parkeren, Op eigen terrein
Parkeren Voldoende parkeergelegenheid op eigen terrein.

Energie

Energielabel A
Einddatum 2035-02-17
Isolatie Dakisolatie, Muurisolatie
Verwarming CV-ketel
Warm water CV-ketel
C.V.-ketel HR combiketel. Gas gestookte combiketel uit 2020 eigendom

Oppervlakken en inhoud

Perceeloppervlakte 208 m²
Woonoppervlakte 141 m²
Overige ruimten 31 m²
Inhoud 651 m³
Gebouwgebonden buitenruimte 1 m²

Indeling

Woonlagen 3 woonlagen
Kamers 6 kamers, waarvan 4 slaapkamers
Badkamers 1 badkamer(s) en 1 aparte toilet(ten)
Badkamervoorzieningen Ligbad, Toilet, Douche, Dubbele wastafel, Wastafelmeubel
Voorzieningen TV-kabel

Schuur / berging

Schuur / berging soort Aangebouwd (steen)
Voorzieningen Voorzien van elektra
Isolatie Geen isolatie
Aantal 2

Bestemming

Huidig gebruik Woonruimte
Huidige bestemming Gemengd - 2
Permanente bewoning Ja

Kadaster ROTTEVALLE D 860

Oppervlakte 208 m²
Omvang Geheel perceel

Garage

Garage soort Geen garage

Vergelijkbaar in de buurt

...