Menu
Burd 4a Grou - Hoofdafbeelding.jpg
D

Tonen op kaart

Verkocht: Burd 4a, Grou

Grou Burd 4a

103 m² woonoppervlakte

2.333 m² perceeloppervlakte

4 kamers, waarvan 3 slaapkamers

Verkocht

Geïnteresseerd in dit object?

Vraag eenvoudig een bezichtiging aan!

Interesse in woning

Omschrijving

Op het pontje naar het eiland krijgt u direct al het vakantiegevoel...

Op deze unieke plek aan het water kunt u buitengewoon recreëren! De recreatiewoning en het riante perceel bieden veel rust, ruimte, comfort en privacy. Er is een prachtig uitzicht op het Prinses Margrietkanaal met voorbijvarende schepen, het Pikmeer en het dorp Grou.

Deze comfortabele en zeer complete woning is het hele jaar te gebruiken voor recreatieve doeleinden. Zo is er een watergerichte woonkamer, een slaapkamer met badkamer op de begane grond, twee grote slaapkamers op de etage, een groot overloop (met studeer/slaapruimte) en een tweede badkamer. Volop ruimte dus voor u, uw gezin en eventuele gasten!

Ook buiten is er genoeg vertier te vinden! De woning is gelegen op een perceel van ruim 2.300 m² en direct aan het water. Er is een eigen aanlegsteiger, een drijvend boothuis en een boothelling aanwezig. De mogelijkheid tot varen, zeilen, suppen, vissen maar ook ongestoord zwemmen behoort allemaal tot de mogelijkheden!

Het comfort dat u wellicht thuis bent gewend, is hier ook te vinden! Deze recreatiewoning is in 2003 gerealiseerd, volledig geïsoleerd, afgewerkt met onderhoudsvriendelijke materialen en geheel voorzien van kunststof kozijnen met HR++ glas. Het geheel is volledige elektrisch, inclusief elektrische vloerverwarming, boilers voor de warmwatervoorziening en er zijn in 2016 15 zonnepanelen geplaatst.

In 2017 is de tuin aangelegd. Bij het ontwerp waren behalve de contouren van de woning ook de volgende uitgangspunten belangrijk: 'het zicht op het omliggende landschap, windbeschutting, privacy en ‘te gast in de natuur’. Vanuit de kleurrijke plantenslingers langs de woning gaat de beplanting geleidelijk over naar natuurlijke beplanting zodat de tuin perfect aansluit op het aanliggende landschap. De mooie rondingen in de tuin, de vele terrassen en de grote gazons maken dat u heerlijk kunt verblijven in deze tuin.

De lange oprit wordt aan de straatzijde afgesloten met een poort. Er is voldoende parkeergelegenheid op het eigen terrein, ook er is een carport met bergruimte. Verder is er een houten berging voor het stallen van uw (tuin)spullen en fietsen, beschikt ook over een droger.

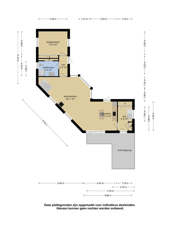
Indeling:
Begane grond: hal met wasmachine, koelkast, vriezer, werkblad en een vaste schuifdeurenkast, keuken met complete inbouwkeuken die voorzien is inbouwapparatuur (kookplaat, afzuigkap, koelkast en combimagnetron) en het spoeleiland met spoelbak en vaatwasser, vanuit de keuken komt u via een deur en een brede schuifpui naar de terrassen, de woonkamer is voorzien van een houtkachel en door de grote raampartijen is er een buitengewoon fraai zicht op het water, hal met terrasdeur, grote slaapkamer met tuindeur en een vaste schuifdeurenkast, badkamer met douche, meubel met vaste wastafel en toilet.
Eerste etage: royaal overloop met studeer- en/of slaapruimte, twee grote slaapkamers, badkamer met douche, vaste wastafel en een tweede toilet.

Rondom de woning liggen vlonderterrassen, zodat u optimaal kunt genieten van de zon en indien gewenst van schaduw, ook is er een overdekt terras. In de tuin kunt u heerlijk wandelen of plaats nemen op de diverse terrassen.

De prachtige omgeving van Midden Frylân nodigt uit voor alle vormen van watersport maar ook voor fiets- en wandeltochten. De woning staat namelijk in het natuur- en watersportgebied 'De Alde Feanen', dit is een nationaal park. Dit gebied biedt alle mogelijkheden voor natuurbeleving en watersport met vele meren en smalle vaarten.

De oversteek met het veerpont over het Prinses Margrietkanaal kan op uitgebreide tijden en in het weekend zelfs tot 02.00 uur ’s nachts.

Het pittoreske watersport dorp Grou is centraal gelegen in Friesland en prima bereikbaar via snelwegen en spoorverbinding. Het dorp beschikt over een levendige dorpskern met gezellige horecabedrijven, uitgebreid winkelaanbod en vele (water)sport voorzieningen.

De woning wordt volledig ingericht en gestoffeerd aangeboden, bovendien behoort een spoedige aanvaarding tot de mogelijkheden. Dan kunt u wellicht deze zomer al genieten van al dit moois.

Wij raken duidelijk niet uitgepraat over dit bijzondere geheel. Maar bekijkt u in alle rust de fotoreportage voor een goede eerste indruk van dit unieke geheel gelegen op De Burd. U kunt uw indruk pas echt compleet maken tijdens een bezichtiging, onze makelaars leiden u dan ook graag rond!

Kenmerken

Soort Eengezinswoning, Vrijstaande woning
Vraagprijs Prijs op aanvraag
Aangeboden 3 jaar geleden
Status Verkocht
Aanvaarding In overleg

Bekijk alle kenmerken...

Interesse?

Vraag een bezichtiging aan

Bekijk de omgeving

Ontdek de ligging van deze woning

Alle kenmerken

Bouw

Bouwvorm Bestaande bouw
Bouwjaar 2003
Bouwjaar omschrijving Bouwjaar is 2003
Onderhoud (binnen) Goed
Toelichting Goed onderhouden
Onderhoud (buiten) Goed
Toelichting Goed onderhouden
Dak Samengesteld dak
Dak materialen Pannen
Dak toelichting Kap met pannen gedekt

Buitenruimte

Ligging Aan water, Aan rustige weg, Vrij uitzicht, Aan vaarwater, Landelijk gelegen
Tuin Achtertuin, Voortuin, Zijtuin, Tuin rondom, Zonneterras (AANGELEGD_ONDER_ARCHITECTUUR)
Tuin oppervlakte 2.000 m²
Ligging Gelegen op (bereikbaar via achterom)
Parkeren Op eigen terrein, Op afgesloten terrein
Parkeren Er is meer dan voldoende parkeergelegenheid op het eigen terrein

Energie

Energielabel D
Einddatum 2032-04-13
Isolatie Dakisolatie, Muurisolatie, Vloerisolatie, Dubbel glas, Volledig geïsoleerd, HR-glas
Verwarming Vloerverwarming (gedeeltelijk), Elektrische verwarming, Houtkachel
Warm water Elektrische boiler (eigendom)

Oppervlakken en inhoud

Perceeloppervlakte 2.333 m²
Woonoppervlakte 103 m²
Inhoud 380 m³
Oppervlakte externe bergruimte 9 m²
Gebouwgebonden buitenruimte 17 m²

Indeling

Woonlagen 2 woonlagen
Kamers 4 kamers, waarvan 3 slaapkamers
Badkamers 2 badkamer(s) en 1 aparte toilet(ten)
Badkamervoorzieningen Wastafel, Wastafelmeubel, Vloerverwarming, Toiletten 2, Douches 2
Voorzieningen Rookkanaal, Schuifpui, Dakraam, Zonnepanelen

Bestemming

Huidig gebruik Recreatie woning
Huidige bestemming Recreatie woning
Recreatiewoning 1

Schuur / berging

Schuur / berging soort Vrijstaand (hout)
Voorzieningen Voorzien van elektra
Aantal 1

Kadaster GROUW C 897

Oppervlakte 210 m²
Omvang Geheel perceel

Garage

Garage soort Carport

Vergelijkbaar in de buurt

...