Menu
Burmaniastraat 39 Surhuisterveen - Hoofdafbeelding.jpg
D

Tonen op kaart

Brochure

Verkocht onder voorbehoud: Burmaniastraat 39, Surhuisterveen

Surhuisterveen Burmaniastraat 39

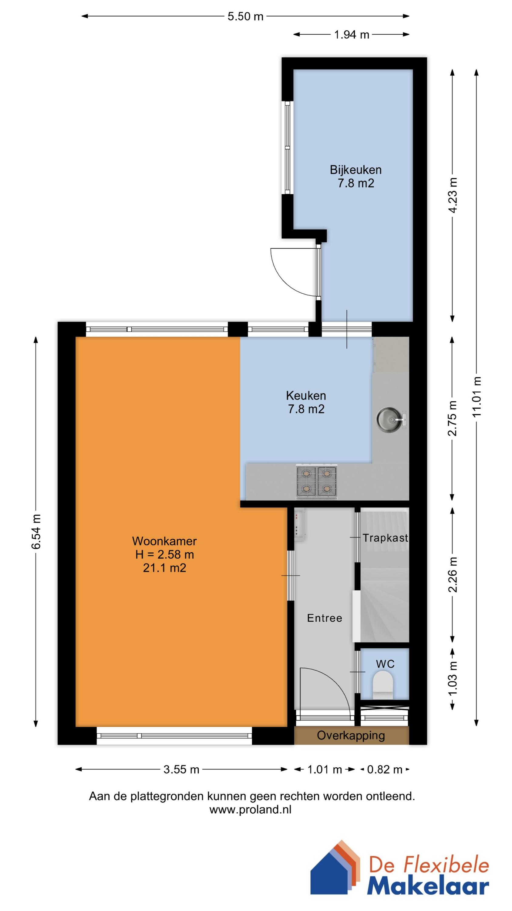
81 m² woonoppervlakte

173 m² perceeloppervlakte

4 kamers, waarvan 3 slaapkamers

Verkocht onder voorbehoud: Momenteel is er een koper in onderhandeling over dit object. Houd deze pagina in de gaten voor updates.
Verkocht onder voorbehoud

Geïnteresseerd in dit object?

Vraag eenvoudig een bezichtiging aan!

Interesse in woning

Omschrijving

Deze goed onderhouden tussenwoning met vrijstaande berging en overkapping ligt op een perceel van 173 m² eigen grond, in een rustige, ruim opgezette woonomgeving en toch op korte afstand van het bruisende centrum van Surhuisterveen.

Het huis is gebouwd in 1963 en doordat de gevels recht zijn opgetrokken, beschik je ook op de verdieping over veel leefruimte. In 2017 en 2019 is de woning gemoderniseerd met onder andere een nieuwe badkamer, een nieuw toilet, een moderne keukenopstelling en een vernieuwde meterkast met bekabeling. Verder is de woning grotendeels voorzien van HR++-beglazing en wordt deze centraal verwarmd door een energiezuinige HR-combiketel uit 2016, met radiatoren.

Je komt binnen in de entree met hal, trapkast met kelder, een modern toilet met wandcloset, de lichte doorzonwoonkamer en de halfopen keuken met een nette keukenopstelling voorzien van diverse inbouwapparatuur. Aansluitend vind je de bijkeuken met vloerverwarming, de cv-opstelling, witgoedaansluitingen en de achterentree.

Op de eerste verdieping geeft de overloop toegang tot drie slaapkamers en de badkamer met inloopdouche en een wastafelmeubel. De tweede verdieping is via een vlizotrap bereikbaar en biedt extra bergruimte.

De voor- en achtertuin zijn onderhoudsvriendelijk ingericht. De diepe, bestrate achtertuin met achterom is geheel omsloten en biedt je veel privacy. Hier staat ook de houten berging met overkapping, zodat je ook bij minder weer prettig buiten kunt zitten. In de straat is voldoende parkeergelegenheid.

Surhuisterveen is een veelzijdig dorp met uitgebreide faciliteiten, waaronder meer dan honderd winkels, variërend van lokale boetiekjes tot grote ketens. Je vindt er ook een ruim aanbod aan horecagelegenheden, scholen, sportvoorzieningen en zorginstellingen. Dankzij de strategische ligging nabij de A7 rijd je vlot naar steden als Groningen en Leeuwarden.

Ben je nieuwsgierig geworden naar deze woning? Neem vandaag nog contact met ons op en ontdek samen met een van onze flexibele makelaars of Burmaniastraat 39 jouw nieuwe thuis is.

Kenmerken

Soort Eengezinswoning, Tussenwoning
Vraagprijs Prijs op aanvraag
Aangeboden 2 maanden geleden
Status Verkocht onder voorbehoud
Aanvaarding In overleg

Bekijk alle kenmerken...

Interesse?

Vraag een bezichtiging aan

Bekijk de omgeving

Ontdek de ligging van deze woning

Alle kenmerken

Bouw

Bouwvorm Bestaande bouw
Bouwjaar 1963
Bouwjaar omschrijving Bouwjaar volgens BAG.
Onderhoud (binnen) Goed
Toelichting Het woonhuis is goed onderhouden.
Onderhoud (buiten) Goed
Toelichting Het woonhuis is goed onderhouden.
Dak Zadeldak
Dak materialen Pannen
Dak toelichting Het platte dak is gedekt met bitumineuze dakbedekking.

Buitenruimte

Ligging Aan rustige weg, In woonwijk
Tuin Achtertuin, Voortuin (Normaal)
Tuin oppervlakte 129 m²
Achtertuin 83 m² (15m diep en 5.5m breed)
Ligging Gelegen op NOORDOOST (bereikbaar via achterom)
Parkeren Openbaar parkeren
Parkeren voldoende parkeergelegen in de straat.

Energie

Energielabel D
Einddatum 2029-11-01
Isolatie Dubbel glas
Verwarming CV-ketel
Warm water CV-ketel
C.V.-ketel HR combiketel Gas gestookte combiketel uit 2016 eigendom

Oppervlakken en inhoud

Perceeloppervlakte 173 m²
Woonoppervlakte 81 m²
Overige ruimten 8 m²
Inhoud 315 m³
Oppervlakte externe bergruimte 9 m²
Gebouwgebonden buitenruimte 11 m²

Indeling

Woonlagen 3 woonlagen
Kamers 4 kamers, waarvan 3 slaapkamers
Badkamers 1 badkamer(s) en 1 aparte toilet(ten)
Badkamervoorzieningen Douche, Wastafel, Wastafelmeubel
Voorzieningen TV-kabel, Buitenzonwering, Natuurlijke ventilatie

Schuur / berging

Schuur / berging soort Vrijstaand (hout)
Voorzieningen Voorzien van elektra
Isolatie Geen isolatie
Aantal 1

Bestemming

Huidig gebruik Woonruimte
Huidige bestemming Woonruimte
Permanente bewoning Ja

Kadaster SURHUIZUM B 6394

Oppervlakte 173 m²
Omvang Geheel perceel

Garage

Garage soort Geen garage

Vergelijkbaar in de buurt

...