Menu
Dahlia-strjitte 37 Kootstertille - Hoofdafbeelding.jpg
A++

Tonen op kaart

Brochure

Verkocht: Dahlia-strjitte 37, Kootstertille

Kootstertille Dahlia-strjitte 37

90 m² woonoppervlakte

272 m² perceeloppervlakte

4 kamers, waarvan 3 slaapkamers

Verkocht

Geïnteresseerd in dit object?

Vraag eenvoudig een bezichtiging aan!

Interesse in woning

Omschrijving

In een rustige en kindvriendelijke buurt van Kootstertille staat deze moderne, uitgebouwde en zeer energiezuinige twee-onder-éénkapwoning. Dahlia-strjitte 37 is namelijk in het bezit van een top A++ label. De hoge gootlijn zorgt voor veel ruimte op de bovenverdieping waardoor de woning 3 ruime slaapkamers te bieden heeft. De benedenverdieping is een paar jaar geleden grondig aangepakt, waarbij niet alleen een nieuwe keuken is geplaatst, maar ook schuimbeton met vloerverwarming is aangebracht. Ook de (uitgebouwde) bijkeuken en de badkamer zijn aangepakt wat deze woning tot een keurig geheel maakt!

Dankzij de spouwmuurisolatie (HR++ Isowool, 2021) en dakisolatie (9 cm PIR) is de woning uitstekend geïsoleerd. Daarnaast is het huis voorzien van een hybride warmtepomp (2025), een Remeha Avanta cv-ketel (2015 indicatief bouwjaar) en maar liefst 10 zonnepanelen (2023), waardoor energiekosten laag blijven. Het comfort wordt verder vergroot door de aanwezigheid van een waterontharder, airconditioning en zonwering.

De indeling is als volgt:
Begane grond:
Entree; hal met meterkast en trapopgang; toiletruimte met hangtoilet; open keukenruimte met moderne keukenopstelling (2022) voorzien van diverse inbouwapparatuur waaronder een inductiekookplaat, afzuigkap, vaatwasser, combimagnetron en koelkast; opening naar de lichte doorzonwoonkamer; bijkeuken met witgoed-opstelplaats en vaste kastenwand; luxe badkamer met ligbad, inloopdouche en wasmeubel met dubbele wastafel en wandkast.

Eerste verdieping:
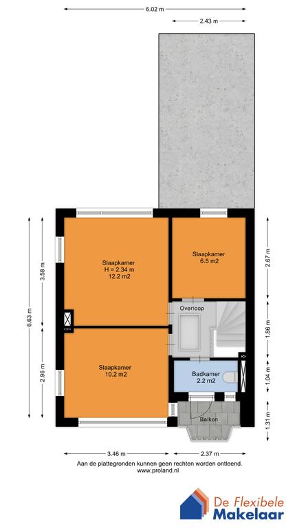
Overloop; 3 ruime slaapkamers; toiletruimte; balkon.

Tweede verdieping:
Middels vlizotrap bereikbare bergzolder.

Buiten:
Buiten is het net zo aangenaam als binnen. De fraai aangelegde tuin biedt meerdere gezellige zithoekjes waar je heerlijk kunt ontspannen en van het zonnetje kunt genieten. De woning beschikt bovendien over een eigen oprit en een verlengde stenen garage met aangebouwde berging, die in zijn geheel stijlvol is afgewerkt met een betonvloer, zwart hout en dakpannen.

Het dorp Kootstertille:
Kootstertille is een dorp met een goed voorzieningenniveau; de winkels, een supermarkt, sportaccommodaties, basisschool en het openbaarvervoer (bus) liggen allen op loopafstand. Verder is Kootstertille een centraal gelegenwoonplaats zowel ten opzichte van Leeuwarden, Surhuisterveen, Drachten en Groningen.

Ben jij op zoek naar een instapklare, duurzame en comfortabele woning? Maak dan snel een afspraak voor een bezichtiging en ontdek zelf wat deze woning te bieden heeft! Onze flexibele makelaars leiden je graag rond bij Dahlia-strjitte 37 in Kootstertille.

Kenmerken

Soort Eengezinswoning, Twee-onder-een-kapwoning
Vraagprijs Prijs op aanvraag
Aangeboden 1 jaar geleden
Status Verkocht
Aanvaarding In overleg

Bekijk alle kenmerken...

Interesse?

Vraag een bezichtiging aan

Bekijk de omgeving

Ontdek de ligging van deze woning

Alle kenmerken

Bouw

Bouwvorm Bestaande bouw
Bouwjaar 1964
Bouwjaar omschrijving Gebouwd in 1964.
Onderhoud (binnen) Goed
Toelichting Keurig onderhouden.
Onderhoud (buiten) Goed
Toelichting Keurig onderhouden.
Dak Zadeldak
Dak materialen Pannen
Dak toelichting Met pannen gedekt zadeldak (dwarskap).

Buitenruimte

Ligging Aan rustige weg
Tuin Achtertuin, Voortuin, Tuin rondom (NORMAAL)
Tuin oppervlakte 140 m²
Achtertuin 97 m² (10.64m diep en 9.12m breed)
Ligging Gelegen op NOORDWEST (bereikbaar via achterom)
Parkeren Openbaar parkeren, Op eigen terrein
Parkeren Er is voldoende parkeergelegenheid aanwezig.

Energie

Energielabel A++
Einddatum 2035-01-23
Isolatie Dakisolatie, Muurisolatie, Vloerisolatie, Dubbel glas, Gedeeltelijk dubbel glas, Grotendeels dubbel glas
Verwarming CV-ketel, Warmtepomp
Warm water CV-ketel
C.V.-ketel Remeha Avanta (bouwjaar indicatief) Gas gestookte combiketel uit 2015 eigendom

Oppervlakken en inhoud

Perceeloppervlakte 272 m²
Woonoppervlakte 90 m²
Overige ruimten 9 m²
Inhoud 375 m³
Oppervlakte externe bergruimte 34 m²
Gebouwgebonden buitenruimte 4 m²

Garage

Garage soort Vrijstaand (steen), Vrijstaand (hout)
Voorzieningen Elektra
Isolatie Geen isolatie
Oppervlakte 33 m² (8.64m diep en 3.83m breed)
Capaciteit 1 auto(s)
Aantal 1

Indeling

Woonlagen 3 woonlagen
Kamers 4 kamers, waarvan 3 slaapkamers
Badkamers 1 badkamer(s) en 1 aparte toilet(ten)
Badkamervoorzieningen Ligbad, Zitbad, Douche, Dubbele wastafel, Wastafel, Wastafelmeubel, Inloopdouche, Vloerverwarming
Voorzieningen TV-kabel, Buitenzonwering, Airconditioning, Glasvezelkabel, Zonnepanelen, Natuurlijke ventilatie

Schuur / berging

Schuur / berging soort Aangebouwd (hout)
Voorzieningen Voorzien van elektra
Isolatie Geen isolatie
Aantal 1

Bestemming

Huidig gebruik Woonruimte
Huidige bestemming Woonruimte
Permanente bewoning Ja

Kadaster KOOTEN C 1804

Oppervlakte 272 m²
Omvang Geheel perceel

Vergelijkbaar in de buurt

...