Menu
De Barrage 62 Buitenpost - Hoofdafbeelding.jpg
B

Tonen op kaart

Verkocht onder voorbehoud: De Barrage 62, Buitenpost

Buitenpost De Barrage 62

147 m² woonoppervlakte

311 m² perceeloppervlakte

8 kamers, waarvan 4 slaapkamers

Verkocht onder voorbehoud: Momenteel is er een koper in onderhandeling over dit object. Houd deze pagina in de gaten voor updates.
Verkocht onder voorbehoud

Geïnteresseerd in dit object?

Vraag eenvoudig een bezichtiging aan!

Interesse in woning

Omschrijving

De Barrage 62 in Buitenpost is zo’n woning waar je meteen kansen ziet: een royaal hoekperceel, verrassend veel leefruimte, waaronder 6 (slaap)kamers, een ruime aangebouwde stenen garage én volop mogelijkheden voor levensloopbestendig wonen. Met een brede oprit is er bovendien meer dan genoeg parkeerruimte op eigen terrein, ideaal voor een gezin, hobby’s of bezoek.

Binnen woon je comfortabel en sfeervol. In de woonkamer zorgt de houtkachel voor extra warmte en gezelligheid, terwijl de basis helemaal bij de tijd is: energielabel B, 6 zonnepanelen (2022) en een Atag cv-ketel uit 2024. De indeling is extra interessant door de aangebouwde bijkeuken en de aangebouwde garage, waar óók een pelletkachel aanwezig is. Voor extra comfort zijn er schelpen en isolatiechips onder de vloer aangebracht (niet opgenomen in energielabel).

De keuken is in mei 2023 vernieuwd en uitgevoerd als hoekkeuken met moderne inbouwapparatuur: vaatwasser, combimagnetron, inductiekookplaat, afzuigkap en koelkast. Een fijne plek om te koken, met een frisse uitstraling en praktisch gemak.

Wat deze woning echt onderscheidt, is de hoeveelheid ruimte. De uitbouw is in 2005 geheel herbouwd en uitgebouwd en dat merk je aan het royale woongevoel. Er zijn twee badkamers, waarvan één op de begane grond. En wil je een slaapkamer beneden? Dan is dat goed denkbaar: de garage biedt mogelijkheden om (een deel) om te bouwen tot slaapruimte, zodat je hier levensloopbestendig kunt wonen.

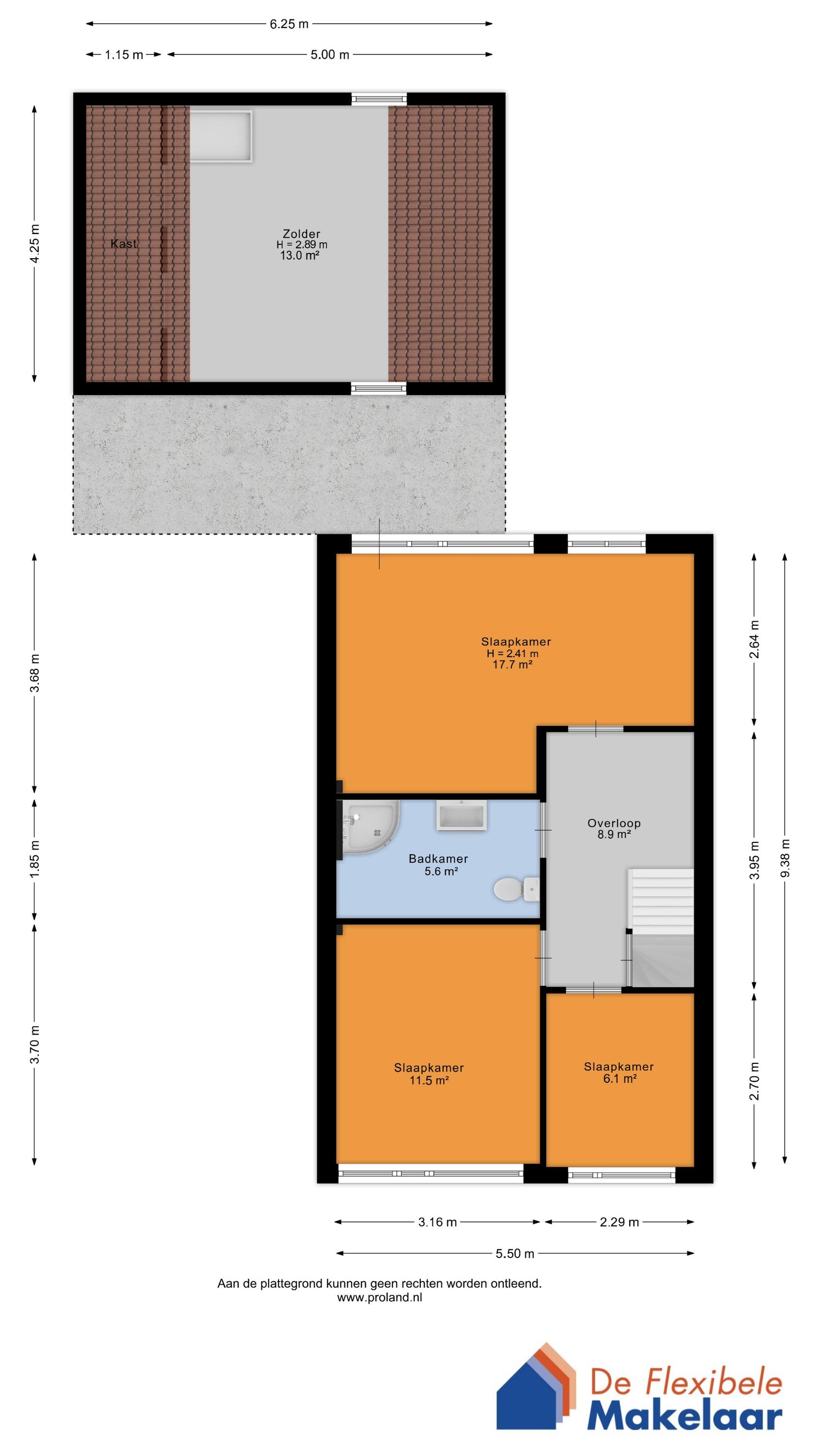
Ook boven is er volop plek. Je beschikt over vier slaapkamers én daarnaast nog twee extra kamers dankzij de royale tweede verdieping met dakkapel boven de woning en de geïsoleerde zolder boven de garage: perfect als werkruimte, speelkamer of rustige plek voor je hobby.

Indeling:
Entree via de voordeur; hal met meterkast en trapopgang; woonkamer met doorgang naar de royale leefkeuken met moderne keuken in L-opstelling (2023), openslaande deuren en trapkast; bijkeuken met witgoedaansluitingen; badkamer met toilet, douche en wasmeubel; garage met geïsoleerde zolderkamer.

Eerste verdieping:
Op de eerste verdieping bevinden zich 3 slaapkamers (voorheen 4) en een royale 2e badkamer met douche, toilet en wasmeubel.

Tweede verdieping:
Op de 2e verdieping is door de royale dakkapel een extra slaapkamer ontstaan. Tevens is er een 2e vertrek met dakraam, dat ideaal is als kantoor-, hobbyruimte of als berging.

Buiten:
De achtertuin is gunstig gelegen op het zuidwesten, waardoor je hier tot in de avond van de zon kunt genieten. Onder de overkapping zit je beschut en comfortabel, ideaal voor lange zomeravonden of juist een droog moment buiten in elk seizoen. Op het eigen erf is parkeergelegenheid aanwezig, zodat je altijd praktisch kunt parkeren. En doordat de woning aan een rustige straat ligt, woon je hier prettig met veel gevoel van rust en privacy.

De Barrage 62 in Buitenpost combineert dus sfeer, duurzaamheid en bijzonder veel ruimte met een indeling die met je meegroeit, nu én later. Wil je ervaren hoeveel mogelijkheden dit huis biedt? Dan laten we je het graag zien tijdens een bezichtiging van de woning! Neem contact op met onze flexibele makelaars om een afspraak te maken.

Kenmerken

Soort Eengezinswoning, Hoekwoning
Vraagprijs Prijs op aanvraag
Aangeboden vorige maand
Status Verkocht onder voorbehoud
Aanvaarding In overleg

Bekijk alle kenmerken...

Interesse?

Vraag een bezichtiging aan

Bekijk de omgeving

Ontdek de ligging van deze woning

Alle kenmerken

Bouw

Bouwvorm Bestaande bouw
Bouwjaar 1973
Bouwjaar omschrijving Gebouwd in 1973.
Onderhoud (binnen) Goed
Onderhoud (buiten) Goed
Dak Zadeldak
Dak materialen Pannen
Dak toelichting Met pannen gedekt zadeldak.

Buitenruimte

Ligging Aan rustige weg, In woonwijk
Tuin Achtertuin, Voortuin, Zijtuin, Tuin rondom (Normaal)
Tuin oppervlakte 150 m²
Achtertuin 144 m² (12.39m diep en 11.66m breed)
Ligging Gelegen op ZUIDWEST (bereikbaar via achterom)
Parkeren Openbaar parkeren, Op eigen terrein
Parkeren Genoeg parkeerruimte op eigen terrein en in de omgeving.

Energie

Energielabel B
Einddatum 2035-01-09
Isolatie Dakisolatie, Muurisolatie, Dubbel glas
Verwarming CV-ketel, Open haard, Houtkachel
Warm water CV-ketel
C.V.-ketel Atag Gas gestookte combiketel uit 2024 eigendom

Garage

Garage soort Aangebouwd (steen)
Voorzieningen Elektra, Water, Vliering
Isolatie Dubbel glas
Oppervlakte 25 m² (6.49m diep en 3.9m breed)
Capaciteit 1 auto(s)
Aantal 1

Indeling

Woonlagen 4 woonlagen
Kamers 8 kamers, waarvan 4 slaapkamers
Badkamers 2 badkamer(s) en 1 aparte toilet(ten)
Badkamervoorzieningen Wastafel, Wastafelmeubel, Toiletten 2, Douches 2
Voorzieningen TV-kabel, Rookkanaal, Dakraam, Natuurlijke ventilatie

Oppervlakken en inhoud

Perceeloppervlakte 311 m²
Woonoppervlakte 147 m²
Overige ruimten 38 m²
Inhoud 644 m³

Bestemming

Huidig gebruik Woonruimte
Huidige bestemming Woonruimte
Permanente bewoning Ja

Schuur / berging

Schuur / berging soort Vrijstaand (hout)
Isolatie Geen isolatie
Aantal 1

Kadaster BUITENPOST A 4533

Oppervlakte 246 m²
Omvang Geheel perceel

Vergelijkbaar in de buurt

...