Menu
De Bjirken 20 Harkema - Hoofdafbeelding.jpg

Tonen op kaart

Brochure

Verkocht: De Bjirken 20, Harkema

Harkema De Bjirken 20

102 m² woonoppervlakte

268 m² perceeloppervlakte

4 kamers, waarvan 3 slaapkamers

Verkocht

Geïnteresseerd in dit object?

Vraag eenvoudig een bezichtiging aan!

Interesse in woning

Omschrijving

Deze goed onderhouden gemoderniseerde 2-onder-1-kapwoning met aangebouwde garage is gelegen op een perceel van 268 m2 aan een rustige straat op loopafstand van de voorzieningen die Harkema u biedt.

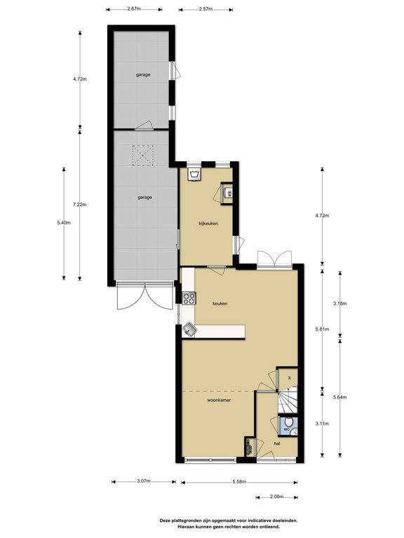
De indeling van deze woning is als volgt:
Begane grond: entree, hal, meterkast, toilet met hangcloset en fontein en trapopgang, lichte woonkamer en open keuken, gezamenlijk ca. 50 m2, voorzien van een fraaie plavuizen vloer met vloerverwarming. De keukenopstelling is voorzien van inbouwapparatuur waarvan de oven en de vaatwasser recentelijk zijn vernieuwd, bijkeuken met witgoedaansluitingen, een HR combiketel van Intergas uit 2016, een achterentree en toegang tot de garage.

Eerste verdieping: overloop met aansluitend drie ruime slaapkamers en een nette badkamer met douchecabine, toilet en wastafelmeubel.

De aangebouwde garage is verdeeld is twee segmenten van 22 m2 en 13 m2. Deze garage is voorzien van een ruime zolderverdieping.

De achtertuin is gelegen op het zonnige zuidoosten en is ingericht met een terras en gazon waarbij het omsloten karakter u veel privacy biedt.

De grote oprit biedt voldoende parkeermogelijkheden op eigen terrein.

Alle voorzieningen die Harkema te bieden heeft op het gebied van onder andere basisscholen, winkelaanbod en sportaccommodaties zijn gelegen op korte afstand. Tevens op korte afstand van ontsluitingswegen in de richting van zowel Leeuwarden, Drachten als de A7 (Groningen-Heerenveen).

Is uw interesse gewekt? Maakt u dan snel een afspraak om een kijkje te nemen in deze goed onderhouden woning!

Kenmerken

Soort Eengezinswoning, Twee-onder-een-kapwoning
Vraagprijs Prijs op aanvraag
Aangeboden 6 jaar geleden
Status Verkocht
Aanvaarding In overleg

Bekijk alle kenmerken...

Interesse?

Vraag een bezichtiging aan

Bekijk de omgeving

Ontdek de ligging van deze woning

Alle kenmerken

Bouw

Bouwvorm Bestaande bouw
Bouwjaar 1977
Onderhoud (binnen) Goed
Onderhoud (buiten) Goed
Dak Zadeldak
Dak materialen Pannen

Buitenruimte

Ligging Aan rustige weg, In woonwijk
Tuin Achtertuin, Voortuin (NORMAAL)
Tuin oppervlakte 90 m²
Achtertuin 75 m² (12.5m diep en 6m breed)
Ligging Gelegen op ZUIDOOST (bereikbaar via achterom)
Parkeren Openbaar parkeren, Op eigen terrein

Garage

Garage soort Aangebouwd (steen)
Voorzieningen Elektra, Water
Isolatie Geen isolatie
Oppervlakte 22 m² (7.22m diep en 3.07m breed)
Capaciteit 1 auto(s)
Aantal 1

Indeling

Woonlagen 2 woonlagen
Kamers 4 kamers, waarvan 3 slaapkamers
Badkamers 1 badkamer(s) en 1 aparte toilet(ten)
Badkamervoorzieningen Toilet, Douche, Wastafelmeubel
Voorzieningen TV-kabel

Energie

Isolatie Vloerisolatie, Dubbel glas
Verwarming CV-ketel
Warm water CV-ketel
C.V.-ketel HR ombiketel Intergas Gas gestookte combiketel uit 2016 eigendom

Oppervlakken en inhoud

Perceeloppervlakte 268 m²
Woonoppervlakte 102 m²
Overige ruimten 46 m²
Inhoud 500 m³

Schuur / berging

Schuur / berging soort Aangebouwd (steen)
Voorzieningen Voorzien van elektra
Isolatie Geen isolatie
Aantal 1

Bestemming

Huidig gebruik Woonruimte
Huidige bestemming Woonruimte
Permanente bewoning Ja

Kadaster SURHUIZUM C 4315

Oppervlakte 268 m²
Omvang Geheel perceel

Vergelijkbaar in de buurt

...