Menu
De Dellen 39a Surhuisterveen - Hoofdafbeelding.jpg
A+

Tonen op kaart

Beschikbaar: De Dellen 39a, Surhuisterveen

Surhuisterveen De Dellen 39a

123 m² woonoppervlakte

220 m² perceeloppervlakte

6 kamers, waarvan 4 slaapkamers

Nieuwbouwwoning in het centrum van Surhuisterveen, naast dierenweide

€ 475.000

k.k.

Beschikbaar

Geïnteresseerd in dit object?

Vraag eenvoudig een bezichtiging aan!

Interesse in woning

Omschrijving

Locatie, locatie, locatie... Bij deze woning is dit makelaarscliché écht van toepassing! De Dellen 39A in Surhuisterveen is een prachtige, ruime twee-onder-een-kapwoning op misschien wel het allermooiste plekje van de nieuwbouwwijk Rozenhof. Hier woon je naast de dierenweide en letterlijk midden in het centrum van Surhuisterveen, in een nieuwbouw thuis waar alles al voor je is gedaan.

Winkels, supermarkten, terrasjes en andere voorzieningen; hier woon je letterlijk in het bruisende hart van Surhuisterveen, terwijl je uitkijkt op het groen en de gemoedelijkheid van het hertenkamp en in je achtertuin geniet van privacy.

Waarom wachten op een nieuwbouwproject als dit geheel voor je klaarstaat?
Alles aan deze woning ademt kwaliteit en luxe. De woning is met zichtbare liefde en oog voor detail afgewerkt. Bij binnenkomst valt direct de strakke gietvloer op de begane grond op, voorzien van comfortabele vloerverwarming. De luxe open woonkeuken aan de voorzijde, voorzien van hoogwaardige ATAG-inbouwapparatuur, is ook een echte eyecatcher, net als de prachtige achtertuin met de luxe gepoedercoate overkapping. Je zou niet zeggen dat het al bewoond is geweest en alleen als modelwoning is gebruikt, zo keurig is de woning. Van de strakke gietvloer op de begane grond tot de luxe overkapping in de achtertuin, van de moderne keuken tot de stijlvolle badkamer, alles verkeert in nieuwstaat.

Duurzaam en energiezuinig wonen?
Ook dat is hier uitstekend voor elkaar. De woning is volledig geïsoleerd (dak, muren, vloer én HR++ glas) en heeft energielabel A+. Dankzij een geavanceerde lucht-water warmtepomp met geïntegreerde boiler (ca. 180 liter) is het huis volledig gasloos. Deze warmtepomp verzorgt de verwarming (vloerverwarming over de gehele begane grond en in de badkamer) én het warme water in de woning.

Voor extra comfort zijn de slaapkamers op de eerste en tweede verdieping voorzien van elektrische radiatoren, zodat je het daar snel aangenaam warm hebt wanneer nodig. Het klimaatsysteem met balansventilatie (WTW aan warmtepomp) zorgt continu voor frisse lucht met vrijwel geen warmteverlies.

Tel daar de aanwezige zonnepanelen bij op en je hebt een toekomstbestendig, energiezuinig thuis met lage energielasten. En als klap op de vuurpijl geeft de hypotheekverstrekker jou meestal ook nog een fikse rentekorting op de gehele hypotheek door de duurzaamheid van het geheel!

Woningborg Certificaat en Politiekeurmerk veilig wonen
Naast comfort en duurzaamheid biedt De Dellen 39A je ook gemoedsrust. De woning wordt geleverd met Woningborg-garantie. Een geruststellende gedachte, want deze kwaliteitswaarborg dekt bepaalde bouwkundige gebreken, zelfs als de bouwer ze zelf niet kan verhelpen. Bovendien is de woning uitgerust met het Politiekeurmerk Veilig Wonen (PKVW). Dat betekent dat er bij de bouw al veel aandacht is besteed aan inbraakpreventie en veiligheid, met onder andere gecertificeerd hang- en sluitwerk en goede verlichting rondom het huis.

Begane grond
Je komt binnen in een ruime hal met meterkast, een modern toilet (hangcloset met fonteintje) en de trapopgang. Onder de trap is een handige trapkast voor provisie en extra bergruimte. Via de hal bereik je de lichte, tuingerichte woonkamer. Aan de voorzijde bevindt zich de open woonkeuken, die is voorzien van een luxe inbouwkeuken met kwaliteitsapparatuur van ATAG. Hier kook je met uitzicht op de straat. De tuingerichte woonkamer aan de achterzijde is heerlijk licht en heeft openslaande deuren naar de achtertuin, waardoor binnen en buiten mooi in elkaar overlopen.

Eerste verdieping
De overloop op de eerste verdieping geeft toegang tot drie ruime slaapkamers en de badkamer. Door de hoge gootlijn hebben de slaapkamers geen schuine wanden, wat ze extra ruim en praktisch maakt. De luxe badkamer is uitgerust met een inloopdouche, een dubbel wastafelmeubel, vloerverwarming en een tweede toilet.

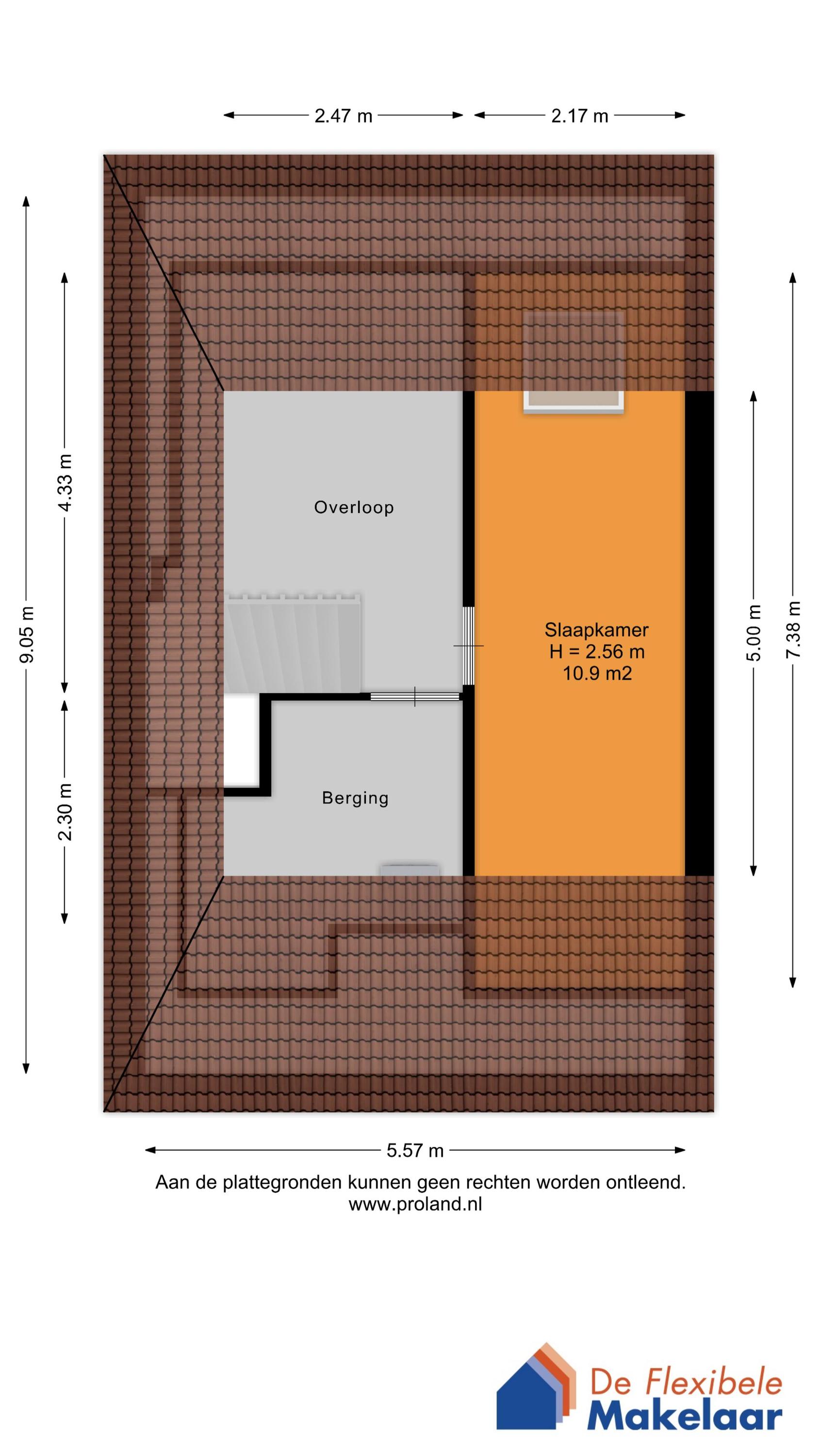
Tweede verdieping
Via een vaste trap kom je op de tweede verdieping. Hier is een overloop die toegang geeft tot twee kamers en de technische ruimte. Eén kamer is ingericht als royale vierde slaapkamer, compleet met groot dakraam voor veel lichtinval. De tweede kamer is momenteel in gebruik als hobby/werkkamer, maar kan uiteraard ook dienen als logeerkamer of extra slaapkamer. In de separate technische ruimte staan de installaties opgesteld: de warmtepomp met boiler, de waterontharder en de aansluitingen voor wasmachine en droger. Ook is er bergruimte aanwezig.

Deze halfvrijstaande woning uit 2022 is tot in de puntjes verzorgd en staat op een perceel van 220m² eigen grond. De woning en biedt maar liefst circa 123m² aan woonoppervlakte. Met een inhoud van ongeveer 459m³ en in totaal 6 kamers (waarvan 4 slaapkamers) heeft het huis alle ruimte voor het hele gezin.

Buiten
Rondom de woning ligt een keurig aangelegde tuin, met als blikvanger de privacyvolle achtertuin op het fijne noord-westen. De tuin is volledig omsloten met een mooi hekwerk; ideaal voor spelende kinderen of huisdieren en biedt veel veiligheid en privacy. De achtertuin is verzorgd en grotendeels onderhoudsvriendelijk, met een terras direct achter het huis en groen om van te genieten. Achterin de tuin staat een houten berging (voorzien van elektra) voor het opbergen van fietsen en tuingereedschap. Direct daarvoor is ruimte om tot wel drie auto’s op eigen terrein te parkeren. Heb je behoefte aan meer (parkeer)ruimte? Er is de mogelijkheid om hier een garage te realiseren. Daarnaast is er altijd voldoende openbare parkeergelegenheid in de directe omgeving voor bezoekers.

De directe omgeving en Surhuisterveen
Dankzij de ligging aan De Dellen woon je letterlijk in het kloppend hart van Surhuisterveen. Stap de deur uit en je staat binnen enkele minuten bij de bakkers, de supermarkten of een van de vele andere winkels (Surhuisterveen telt er meer dan 100!). Gezellig een terrasje pakken of uit eten? De horeca van het centrum ligt om de hoek. Ook scholen, sportfaciliteiten en andere voorzieningen bevinden zich op loop- of fietsafstand. Surhuisterveen heeft niet voor niets een belangrijke regiofunctie en bruist het hele jaar door van de activiteiten. Sterker nog, het dorp is door het landelijke onderzoeksbureau Ipsos verkozen tot het beste winkelcentrum van Friesland.

Ook scholen o.a. CBS De Bernebrege op 200 meter en het voortgezet onderwijs het Singelland in de straat er tegenover. Sportvoorzieningen (o.a. zwembad Wettervlecke, vele fitnesscentra, sporthallen, voetbalvelden, korfbalvelden, volleybal en tennis) en het busstation zijn lopend of fietsend bereikbaar. Bovendien ben je via de A7 in no-time in bijvoorbeeld Drachten, Groningen of Leeuwarden. De slogan van Surhuisterveen is dan ook niet voor niets; Surhuisterveen, zo gezellig is er maar één!

Is dit jouw nieuwbouw thuis in het hart van de Friese Wouden? Wacht niet te lang, want een instapklare woning op deze toplocatie is zeldzaam. Maak snel een afspraak voor een bezichtiging met onze flexibele makelaars bij De Dellen 39A in Surhuisterveen.

Kenmerken

Soort Eengezinswoning, Twee-onder-een-kapwoning
Vraagprijs 475.000 k.k.
Aangeboden 2 weken geleden
Status Beschikbaar
Aanvaarding In overleg

Bekijk alle kenmerken...

Interesse?

Vraag een bezichtiging aan

Bekijk de omgeving

Ontdek de ligging van deze woning

Alle kenmerken

Bouw

Bouwvorm Bestaande bouw
Bouwjaar 2022
Bouwjaar omschrijving Nieuwbouw 2022
Onderhoud (binnen) Uitstekend
Toelichting nieuwbouw 2022 en subliem bewoond
Onderhoud (buiten) Uitstekend
Toelichting nieuwbouw 2022 en subliem bewoond
Dak Schilddak
Dak materialen Pannen

Buitenruimte

Ligging In centrum, In woonwijk
Tuin Achtertuin, Voortuin, Zijtuin (Verzorgd)
Tuin oppervlakte 200 m²
Achtertuin 100 m² (7.95m diep en 12.57m breed)
Ligging Gelegen op NOORDWEST (bereikbaar via achterom)
Parkeren Openbaar parkeren, Op eigen terrein, Op afgesloten terrein
Parkeren Ruim voldoende parkeergelegenheid, ook op eigen terrein.

Energie

Energielabel A+
Einddatum 2032-07-04
Isolatie Dakisolatie, Muurisolatie, Vloerisolatie, Dubbel glas, HR-glas
Verwarming Warmtepomp, Warmteterugwininstallatie
Warm water CV-ketel, Centrale voorziening

Oppervlakken en inhoud

Perceeloppervlakte 220 m²
Woonoppervlakte 123 m²
Inhoud 459 m³
Oppervlakte externe bergruimte 5 m²
Gebouwgebonden buitenruimte 16 m²

Indeling

Woonlagen 3 woonlagen
Kamers 6 kamers, waarvan 4 slaapkamers
Badkamers 1 badkamer(s) en 1 aparte toilet(ten)
Badkamervoorzieningen Toilet, Douche, Dubbele wastafel, Wastafel, Wastafelmeubel, Inloopdouche
Voorzieningen TV-kabel, Buitenzonwering, Glasvezelkabel, Zonnepanelen, Balansventilatie, Natuurlijke ventilatie

Bestemming

Huidig gebruik Woonruimte
Huidige bestemming Woonruimte
Permanente bewoning Ja

Schuur / berging

Schuur / berging soort Vrijstaand (hout)
Voorzieningen Voorzien van elektra
Aantal 1

Kadaster SURHUIZUM C 6816

Oppervlakte 220 m²
Omvang Geheel perceel

Garage

Garage soort Garage mogelijk, Parkeerplaats

Vergelijkbaar in de buurt

...