Menu
De Dracht 61 Drachten - Hoofdafbeelding.jpg
E

Tonen op kaart

Brochure

Verkocht: De Dracht 61, Drachten

Drachten De Dracht 61

83 m² woonoppervlakte

275 m² perceeloppervlakte

4 kamers, waarvan 3 slaapkamers

Verkocht

Geïnteresseerd in dit object?

Vraag eenvoudig een bezichtiging aan!

Interesse in woning

Omschrijving

Wat een luxe in stijl en afwerking! Deze gemoderniseerde, ruime tussenwoning aan De Dracht 61 te Drachten lijkt gegoten uit een modern interieurmagazine. Aan alle moderne trends van tegenwoordig is gedacht met het afwerken van deze woning. Daarnaast heeft deze woning een zonnige tuin op het zuiden!

Ruim; dat is de woning zeer zeker. De eerste etage is namelijk recht omhoog getrokken, wat betekent dat de woning (ook) boven erg ruim is.

Deze woning is keurig gemoderniseerd, onderhouden en vernieuwd. De luxe inbouwkeuken is in 2020 geplaatst en is voorzien van een prachtig kookeiland.

Begane grond:
Hal/entree; toiletruimte met wandcloset; open en luxe woonkeuken voorzien van veel inbouwapparatuur als een vaatwasser, combioven, afzuigkap, 5-pits gaskookplaat. Ook is de keuken voorzien van verborgen lades en softmotionsystemen. De ruime woonkamer is erg licht door de doorzonfunctie; bijkeuken met witgoedaansluitingen en doorloop naar achtertuin.

Kelder:
Via de hal is de provisieruimte te bereiken.

Eerste verdieping:
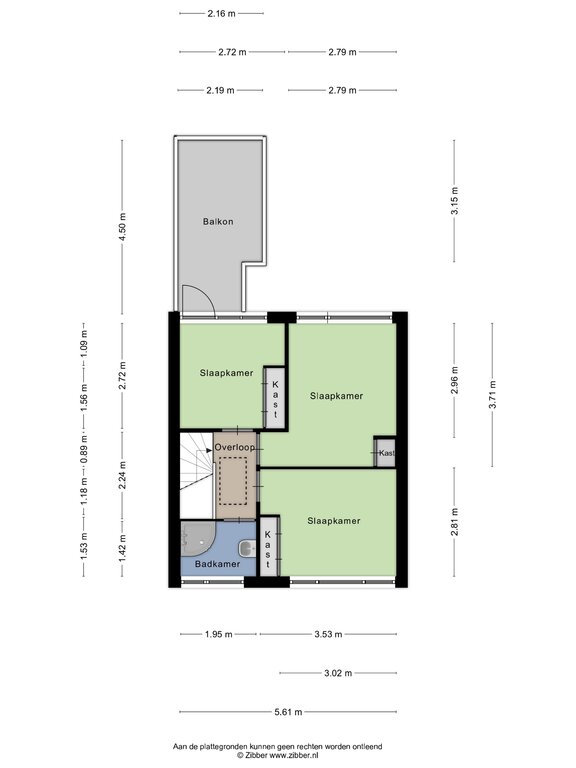
Overloop; 3 ruime slaapkamers waarvan de ouderslaapkamer ca. 13m² groot is; badkamer met douche, wastafel, wastafelmeubel.

De tweede etage is een vliering, te bereiken met een vlizotrap.

Buiten:
Prachtig zuid-gericht zonnig terras met uitschuifbaar zonnescherm en ruime achterom. Tevens is er een bergruimte gerealiseerd waar voldoende opslagruimte aanwezig is.

Drachten is een groot dorp (qua voorzieningenniveau eigenlijk een stad) waar u alle voorzieningen zoals vele soorten scholen, meerdere winkelcentra en vele sportgelegenheden vindt.
Deze woning is qua ligging ideaal ten opzichte van "de driehoek" Groningen, Leeuwarden en Heerenveen. De uitvalswegen A7 liggen op ongeveer een minuut rijden, maar ook ten opzichte van de N356 is op enkele autominuten gelegen.

Bent u nieuwsgierig geworden naar deze keurige tussenwoning? Maak dan snel een afspraak voor een bezichtiging!

Kenmerken

Soort Eengezinswoning, Tussenwoning
Vraagprijs Prijs op aanvraag
Aangeboden 4 jaar geleden
Status Verkocht
Aanvaarding In overleg

Bekijk alle kenmerken...

Interesse?

Vraag een bezichtiging aan

Bekijk de omgeving

Ontdek de ligging van deze woning

Alle kenmerken

Bouw

Bouwvorm Bestaande bouw
Bouwjaar 1964
Onderhoud (binnen) Goed tot uitstekend
Toelichting Het geheel is van binnen goed tot uitstekend onderhouden
Onderhoud (buiten) Goed tot uitstekend
Toelichting Het geheel is van buiten goed tot uitstekend onderhouden
Dak Samengesteld dak
Dak materialen Pannen, Bitumineuze dakbedekking
Dak toelichting Dit samengestelde dak bestaat uit pannen en bitumineuze dakbedekking

Energie

Energielabel E
Einddatum 2026-03-13
Isolatie Dubbel glas, HR-glas
Verwarming CV-ketel
Warm water CV-ketel
C.V.-ketel Intergas Gas gestookte combiketel uit 2008 eigendom

Oppervlakken en inhoud

Perceeloppervlakte 275 m²
Woonoppervlakte 83 m²
Overige ruimten 8 m²
Inhoud 341 m³
Oppervlakte externe bergruimte 10 m²
Gebouwgebonden buitenruimte 9 m²

Buitenruimte

Tuin Achtertuin, Voortuin (VERZORGD)
Tuin oppervlakte 70 m²
Achtertuin 60 m² (12.5m diep en 5.5m breed)
Ligging Gelegen op ZUID (bereikbaar via achterom)
Parkeren Openbaar parkeren
Parkeren Er is voldoende parkeergelegenheid aan de straat

Indeling

Woonlagen 4 woonlagen
Kamers 4 kamers, waarvan 3 slaapkamers
Badkamers 1 badkamer(s) en 1 aparte toilet(ten)
Badkamervoorzieningen Toilet, Douche, Wastafel, Wastafelmeubel
Voorzieningen ROLLUIKEN, TV-kabel

Schuur / berging

Schuur / berging soort Vrijstaand (hout)
Voorzieningen Voorzien van elektra
Isolatie Geen isolatie
Aantal 1

Bestemming

Huidig gebruik Woonruimte
Huidige bestemming Woonruimte
Permanente bewoning Ja

Kadaster DRACHTEN A 12357

Oppervlakte 133 m²
Omvang Geheel perceel

Garage

Garage soort Geen garage

Vergelijkbaar in de buurt

...