Menu
De Flearen 65 Harkema - Hoofdafbeelding.jpg
C

Tonen op kaart

Verkocht: De Flearen 65, Harkema

Harkema De Flearen 65

128 m² woonoppervlakte

249 m² perceeloppervlakte

7 kamers, waarvan 5 slaapkamers

Verkocht

Geïnteresseerd in dit object?

Vraag eenvoudig een bezichtiging aan!

Interesse in woning

Omschrijving

Keurige, ruime, degelijke en traditioneel gebouwde hoekwoning met maar liefst 5 slaapkamers. De woning is goed onderhouden, heeft een onderhoudsarme privacyvolle zuid-west gerichte achtertuin en is gelegen in een kindvriendelijke en ruim opgezette woonwijk. Een speeltuin en een basisschool zijn (letterlijk) om de hoek.

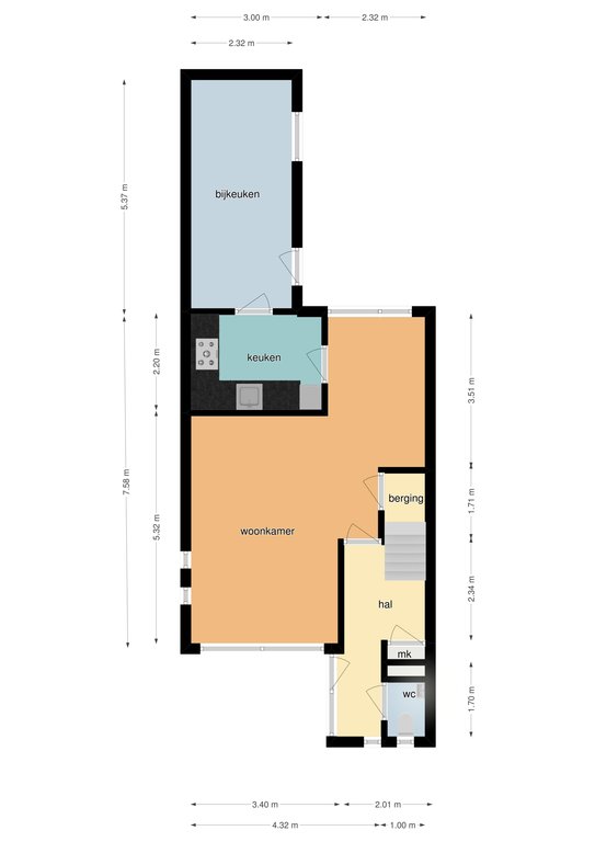
Begane grond:
Entree; hal met meterkast; toiletruimte met fontein; zeer lichte doorzonwoonkamer met zit- en eetgedeelte. Tevens is er een ruime trapkast aanwezig met zeer veel bergmogelijkheden; L-vormige woonkeuken met veel inbouwapparatuur, te weten: een koelkast, een vriezer, een grote combioven, een gaskookplaat, een afzuigkap, een vaatwasser en een spoelbak. De lades van de keuken zijn voorzien van softclosesysteem. De bijkeuken is voorzien van witgoedaansluitingen en heeft een doorloop naar de achtertuin.

1e etage:
Overloop met vaste kast; drie slaapkamers te weten: ouderslaapkamer, tweepersoonsslaapkamer en een eenpersoonsslaapkamer. De badkamer is voorzien van een ligbad en een wastafel met wastafelmeubel.

2e etage:
Vaste trap naar zolder; overloop twee ruime slaapkamers met nieuwe dakramen.

Zowel de voor- als de achtertuin zijn zeer onderhoudsarm en er is een keurige buitenberging met veranda geplaatst. Ook is er een lange oprit aanwezig met uitgebreide parkeermogelijkheden. Tevens is er een keurig sierhekwerk geplaatst als erafscheiding in de voortuin

Veel zaken zijn onlangs compleet aangepakt, vele zaken zelfs nog met garantie.
- Topgevel is vernieuwd en voorzien van kunststof;
- Deels voorzien van HR++ glas;
- Kunststof voordeur + deels kunststof kozijnen;
- De zolder is in 2017 compleet geïsoleerd;
- Screen aan achterzijde geplaatst in 2017;
- Nieuw tuinhuis/berging met overkapping geplaatst in 2018;
- Nieuwe radiatoren op de begane grond;
- Bestrating aangepakt in 2018;
- Nieuwe dakramen;
- Deels voorzien van HR++ glas;
- Veel ruimte op de 1e en 2e etage;
- Vaste trap naar zolder;
- Recent rondom opnieuw gevoegd.

Harkema is een gezellig dorp met goede voorzieningen zoals o.a. een supermarkt, cafetaria, pizzeria, bakkerij, slagerij, bloemenwinkel, pompstation, Chinees restaurant, vele sportclubs, kerken en basisscholen. Ook heeft Harkema veel bedrijvigheid op o.a. haar eigen industrieterrein.

Ook is Harkema goed bereikbaar, zo heeft Harkema een busverbinding en is Harkema zeer goed bereikbaar middels de uitvalswegen richting Drachten, Groningen en Leeuwarden.

Is uw interesse gewekt voor deze nette woning? Maak dan een afspraak voor een bezichtiging om uw indruk compleet te maken.

Kenmerken

Soort Eengezinswoning, Hoekwoning
Vraagprijs Prijs op aanvraag
Aangeboden 6 jaar geleden
Status Verkocht
Aanvaarding In overleg

Bekijk alle kenmerken...

Interesse?

Vraag een bezichtiging aan

Bekijk de omgeving

Ontdek de ligging van deze woning

Alle kenmerken

Bouw

Bouwvorm Bestaande bouw
Bouwjaar 1977
Onderhoud (binnen) Goed
Toelichting Alles verkeerd in keurige staat van onderhoud.
Onderhoud (buiten) Goed tot uitstekend
Toelichting Onderhoudsarm en veel kunststof
Dak Samengesteld dak
Dak materialen Pannen, Bitumineuze dakbedekking
Dak toelichting zadeldak plat dak

Buitenruimte

Ligging Aan rustige weg, In woonwijk
Tuin Achtertuin, Voortuin, Zonneterras (NORMAAL)
Tuin oppervlakte 80 m²
Achtertuin 80 m² (10m diep en 8m breed)
Ligging Gelegen op ZUIDWEST (bereikbaar via achterom)
Parkeren Openbaar parkeren
Parkeren Ruim voldoende

Energie

Energielabel C
Einddatum 2026-08-18
Isolatie Dakisolatie, Muurisolatie, Gedeeltelijk dubbel glas, HR-glas
Verwarming CV-ketel
Warm water CV-ketel
C.V.-ketel AWB HR combi 2009 Gas gestookte combiketel uit 2009 eigendom

Indeling

Woonlagen 3 woonlagen
Kamers 7 kamers, waarvan 5 slaapkamers
Badkamers 1 badkamer(s) en 1 aparte toilet(ten)
Badkamervoorzieningen Ligbad, Wastafel, Wastafelmeubel
Voorzieningen TV-kabel, Buitenzonwering, Dakraam

Oppervlakken en inhoud

Perceeloppervlakte 249 m²
Woonoppervlakte 128 m²
Inhoud 455 m³
Oppervlakte externe bergruimte 7 m²

Schuur / berging

Schuur / berging soort Vrijstaand (hout)
Voorzieningen Voorzien van elektra
Isolatie Geen isolatie
Aantal 1

Bestemming

Huidig gebruik Wonen
Huidige bestemming Wonen
Permanente bewoning Ja

Kadaster SURHUIZUM C 5735

Oppervlakte 249 m²
Omvang Geheel perceel

Garage

Garage soort Garage mogelijk, Parkeerplaats

Vergelijkbaar in de buurt

...