Menu
De Gauw 1 Gerkesklooster - Hoofdafbeelding.jpg
C

Tonen op kaart

Brochure

Verkocht: De Gauw 1, Gerkesklooster

Gerkesklooster De Gauw 1

182 m² woonoppervlakte

326 m² perceeloppervlakte

7 kamers, waarvan 6 slaapkamers

Verkocht

Geïnteresseerd in dit object?

Vraag eenvoudig een bezichtiging aan!

Interesse in woning

Omschrijving

Deze half vrijstaande woning beschikt over verrassend veel leefruimte met 181m² woonoppervlakte, het goed onderhouden geheel heeft maar liefst zes slaapkamers en de verzorgde tuin en aangebouwde garage maken het geheel compleet.

Door de hoge gootlijn is er zowel op de begane grond als op de etages veel woonruimte aanwezig. Bovendien is de woning goed onderhouden, beschikt vrijwel geheel over kunststof kozijnen met HR++ glas, verwarming met behulp van radiatoren en vloerverwarming in de eetkamer, de Intergas c.v. combiketel is van 2019, verder zijn de gevels en de kruipruimte geïsoleerd. Het huis heeft dan ook een keurig C energielabel.

De riante woning is gelegen in een rustige en ruim opgezette woonomgeving op een perceel van ca. 326m² in het dorp Gerkesklooster.

Indeling:
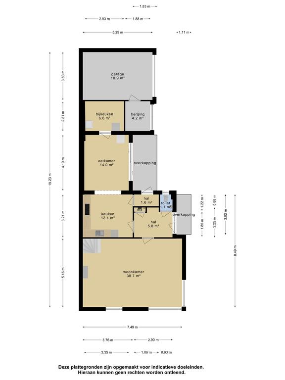
Zijentree, hal met pvc vloer, toilet met fonteintje, royale woonkamer van ca.38,7m² met houtkachel, woonkeuken waarbij het keukengedeelte ingericht is met een hoek opgestelde inbouwkeuken met inbouwapparatuur (breed fornuis met 6pits gaskookplaat en dubbele oven, afzuigkap, vaatwasser en een recent geplaatste koelkast) en een tuingerichte eetkamer met schuifpui naar het terras, de vloer van de keuken en eetkamer is tevens afgewerkt met een fraaie pvc vloer, bijkeuken met witgoed aansluitingen, hal met achteringang.

Eerste etage: overloop, vier slaapkamers van ca. 13m², 13m², 9m² en 7m², waarvan twee slaapkamers met vaste kasten en één met toegang tot het balkon, badkamer met vaste wastafel, douche en 2e toilet.

Tweede etage: overloop, twee slaapkamers van ca. 13m² en 10m² met brede dakkapel, bergruimte en c.v. ruimte.

Rond de woning ligt een verzorgde tuin, de tuin is ingericht met gazon, terras en terrasoverkappingen. De garage met bergruimte is totaal groot ca. 23m² heeft aan de voorzijde een elektrisch bedienbare kanteldeur. De eigen oprit biedt voldoende parkeergelegenheid op het eigen terrein.

Gerkesklooster is een dorp in de Friese gemeente Achtkarspelen. Het is het westelijk deel van het tweelingdorp Gerkesklooster-Stroobos. Het dorp is een ideale plek voor mensen die van rust en ruimte houden. Er zijn een aantal voorzieningen in het dorp zoals o.a. een basisschool, haven en diverse sportverenigingen. Op ca. 6 kilometer bevindt zich het dorp Buitenpost waar een diversiteit aan winkels aanwezig is. Vanuit Buitenpost is er een treinverbinding naar Leeuwarden en Groningen.

Bent u op zoek naar een riante woning met garage in een gezellig dorp? Maak dan snel een afspraak voor een bezichtiging, onze makelaars laten u deze woning graag van binnen zien!

Kenmerken

Soort Eengezinswoning, Twee-onder-een-kapwoning
Vraagprijs Prijs op aanvraag
Aangeboden 3 jaar geleden
Status Verkocht
Aanvaarding In overleg

Bekijk alle kenmerken...

Interesse?

Vraag een bezichtiging aan

Bekijk de omgeving

Ontdek de ligging van deze woning

Alle kenmerken

Bouw

Bouwvorm Bestaande bouw
Bouwjaar 1975
Bouwjaar omschrijving Gerealiseerd in 1975
Onderhoud (binnen) Goed
Toelichting Goed onderhouden staat
Onderhoud (buiten) Goed
Toelichting Goed onderhouden staat
Dak Samengesteld dak
Dak materialen Pannen, Bitumineuze dakbedekking
Dak toelichting Kap met pannendak en plat dak met bitumineuze dakbedekking

Buitenruimte

Ligging Aan rustige weg, In woonwijk
Tuin Voortuin, Zijtuin, Zonneterras (FRAAI_AANGELEGD)
Tuin oppervlakte 175 m²
Zijtuin 67 m² (10m diep en 6.65m breed)
Ligging Gelegen op ZUIDOOST
Parkeren Openbaar parkeren, Op eigen terrein
Parkeren Voldoende parkeergelegenheid op het eigen terrein en aan de openbare weg.

Energie

Energielabel C
Einddatum 2033-01-04
Isolatie Muurisolatie, Vloerisolatie, Dubbel glas, HR-glas
Verwarming CV-ketel, Vloerverwarming (gedeeltelijk), Houtkachel
Warm water CV-ketel
C.V.-ketel Intergas HR 107 combiketel Gas gestookte combiketel uit 2019 eigendom

Garage

Garage soort Aangebouwd (steen)
Voorzieningen Elektra
Isolatie Muurisolatie
Oppervlakte 19 m² (5.25m diep en 3.6m breed)
Capaciteit 1 auto(s)
Aantal 1

Oppervlakken en inhoud

Perceeloppervlakte 326 m²
Woonoppervlakte 182 m²
Overige ruimten 23 m²
Inhoud 688 m³
Gebouwgebonden buitenruimte 15 m²

Indeling

Woonlagen 3 woonlagen
Kamers 7 kamers, waarvan 6 slaapkamers
Badkamers 1 badkamer(s) en 1 aparte toilet(ten)
Badkamervoorzieningen Toilet, Douche, Wastafel
Voorzieningen Mechanische ventilatie, TV-kabel, Buitenzonwering, Rookkanaal, Schuifpui, Dakraam, Glasvezelkabel, Natuurlijke ventilatie

Bestemming

Huidig gebruik Woonruimte
Huidige bestemming Woonruimte
Permanente bewoning Ja

Kadaster DROGEHAM A 1414

Oppervlakte 326 m²
Omvang Geheel perceel

Vergelijkbaar in de buurt

...