Menu
De Geasten 18 Jistrum - Hoofdafbeelding.jpg
B

Tonen op kaart

Brochure

Verkocht: De Geasten 18, Jistrum

Jistrum De Geasten 18

124 m² woonoppervlakte

404 m² perceeloppervlakte

5 kamers, waarvan 4 slaapkamers

Verkocht

Geïnteresseerd in dit object?

Vraag eenvoudig een bezichtiging aan!

Interesse in woning

Omschrijving

Wauw! Gelegen in het fijne dorp Jistrum, presenteert De Geasten 18 zich als een moderne twee-onder-eenkapwoning. Met een royaal perceel van 404 m², een vrijstaande houten garage en vrij uitzicht staat deze woning bekend als een topper in zijn klasse. Het huis, gebouwd in 1999, biedt maar liefst 124 m² woonoppervlakte. Heerlijk ruim dus!

Een paar van de onderscheidende kenmerken van deze keurig onderhouden woning zijn de deels kunststof kozijnen en boeidelen. Bovendien is de woning uitstekend geïsoleerd, wat geresulteerd heeft in een keurig B-energielabel. Dit betekent niet alleen comfort, maar ook efficiëntie in energieverbruik. Verwarming en warm water komen van de gloednieuwe Remeha HR-combiketel uit 2023.

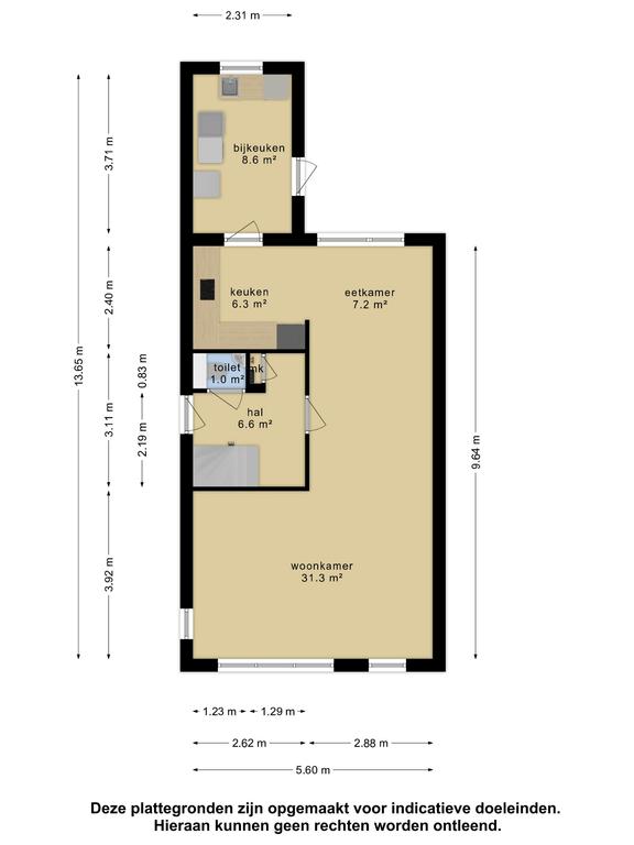
De indeling is als volgt:
Begane grond:
Entree via de voordeur in de zijgevel van de woning; ruime hal met trapopgang, meterkast en toiletruimte met fontein; ruime L-vormige woon-/eetkamer van ca. 38 m² (met fraaie houten vloer) die naadloos overgaat in de moderne open keuken (ca. 6 m²) met keuken in L-opstelling (ca. 2017) voorzien van inbouwapparatuur; bijkeuken met witgoedaansluitingen en keukenblok met spoelbak.

Eerste verdieping:
De eerste verdieping onthult een ruime en functionele indeling. Dankzij twee grote dakkapellen zijn hier drie ruime slaapkamers gecreëerd. Elke kamer biedt voldoende ruimte en comfort, ideaal voor een groeiend gezin of voor het inrichten van een thuiswerkplek.

Tweede verdieping:
De zolderverdieping verrast met een extra slaapkamer, middels een vaste trap bereikbaar. Dit maakt het een ideale keuze voor gezinnen die op zoek zijn naar zowel ruimte als comfort. Ook de CV-opstelling is hier op de overloop te vinden.

Vanuit de achtertuin is er een mooi uitzicht over de zonnige zuidoost gelegen tuin. Deze tuin is ingericht met gazon, bestrating en biedt diverse leuke zithoekjes. De ruime houten garage met kanteldeur biedt plek aan een auto of is geschikt als hobbyruimte/bergruimte. De oprit biedt eveneens de mogelijkheid tot het parkeren van meerdere auto’s op eigen erf.

Het dorp Jistrum:
Het dorp Jistrum is gelegen in het typische Friese woudenlandschap ten noordoosten van het Burgumermeer. De winkelvoorzieningen zijn volop te vinden in de nabijgelegen dorpen Burgum en Kootstertille. Voor basisonderwijs en opvang van de allerkleinsten kan men in het eigen dorp terecht.

Deze instapklare woning is een perfecte keuze voor degenen die waarde hechten aan kwaliteit, ruimte en comfort. Zien we jou binnenkort bij De Geasten 18 in Jistrum? Je bent van harte welkom voor een bezichtiging met een van onze flexibele makelaars!

Kenmerken

Soort Eengezinswoning, Twee-onder-een-kapwoning
Vraagprijs Prijs op aanvraag
Aangeboden 2 jaar geleden
Status Verkocht
Aanvaarding In overleg

Bekijk alle kenmerken...

Interesse?

Vraag een bezichtiging aan

Bekijk de omgeving

Ontdek de ligging van deze woning

Alle kenmerken

Bouw

Bouwvorm Bestaande bouw
Bouwjaar 1999
Bouwjaar omschrijving De woning is gebouwd in 1999.
Onderhoud (binnen) Goed
Toelichting Een zeer nette woning.
Onderhoud (buiten) Goed
Toelichting Een zeer nette woning.
Dak Dwarskap
Dak materialen Pannen
Dak toelichting Met pannen gedekt zadeldak (dwarskap).

Buitenruimte

Ligging Aan rustige weg, In woonwijk, Vrij uitzicht
Tuin Achtertuin, Voortuin, Zijtuin, Tuin rondom (VERZORGD)
Tuin oppervlakte 300 m²
Achtertuin 230 m² (23m diep en 10m breed)
Ligging Gelegen op ZUIDOOST (bereikbaar via achterom)
Parkeren Openbaar parkeren, Op eigen terrein
Parkeren Er is meer dan genoeg parkeergelegenheid op de lange eigen oprit en aan de straat.

Energie

Energielabel B
Einddatum 2026-04-19
Isolatie Dakisolatie, Muurisolatie, Vloerisolatie, Dubbel glas, Volledig geïsoleerd
Verwarming CV-ketel
Warm water CV-ketel
C.V.-ketel Remeha Gas gestookte combiketel uit 2023 eigendom

Indeling

Woonlagen 3 woonlagen
Kamers 5 kamers, waarvan 4 slaapkamers
Badkamers 1 badkamer(s) en 1 aparte toilet(ten)
Badkamervoorzieningen Toilet, Douche, Wastafel, Wastafelmeubel
Voorzieningen TV-kabel, Buitenzonwering, Dakraam

Garage

Garage soort Vrijstaand (hout)
Voorzieningen Elektra
Isolatie Geen isolatie
Capaciteit 1 auto(s)
Aantal 1

Oppervlakken en inhoud

Perceeloppervlakte 404 m²
Woonoppervlakte 124 m²
Inhoud 428 m³
Oppervlakte externe bergruimte 21 m²

Bestemming

Huidig gebruik Woonruimte
Huidige bestemming Woonruimte
Permanente bewoning Ja

Kadaster OOSTERMEER G 2337

Oppervlakte 404 m²
Omvang Geheel perceel

Vergelijkbaar in de buurt

...