Menu
De Hammeringen 33 Bitgummole - Hoofdafbeelding.jpg
C

Tonen op kaart

Verkocht: De Hammeringen 33, Bitgummole

Bitgummole De Hammeringen 33

123 m² woonoppervlakte

390 m² perceeloppervlakte

5 kamers, waarvan 4 slaapkamers

Verkocht
Referentie door verkoper: "Deskundige en betrokken begeleiding bij het verkoopproces. Vooral de vlotte hulp bij randzaken en meedenken over oplossingen bij persoonlijke omstandigheden gaven een prettig vertrouwd gevoel. Flexibel met hoofdletters en betrouwbaar, dus met een veilig gevoel."
Geschreven op 19-01-2024

Deskundigheid10

Prijs/kwaliteit10

Marktkennis9

Service10

Meer reviews bekijken op Funda

Geïnteresseerd in dit object?

Vraag eenvoudig een bezichtiging aan!

Interesse in woning

Omschrijving

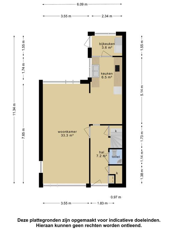
Wat een ruimte, zowel intern als extern! En dat op zo'n prachtige woonstand, in een gezellig dorp, nabij Leeuwarden? Deze 2/1 kapwoning is keurig onderhouden en heeft een diepe achtertuin van ca. 20 meter diep en 9 meter breed. Ook is er een garage aanwezig, is er een dakkapel op zolder geplaatst, met een vaste trap en is er als klap op de vuurpijl ook nog een uitbouw aanwezig waar de keuken en bijkeuken in zijn geplaatst.

Ook qua energielabel doet de woning het goed. Hij prijkt namelijk met het C-label. Er is namelijk dak-, muur en vloerisolatie aanwezig, evenals isolerende beglazing.

Begane grond:
Hal/entree met vaste kast, meterkast en toiletruimte voorzien van wandcloset en fontein; Z-vormige doorzonwoonkamer en keukenruimte met inbouwapparatuur; bijkeuken met witgoedaansluitingen en doorloop naar de diepe achtertuin.

Kelder:
Bereikbaar via de hal.

1e etage:
Overloop; 3 slaapkamers, waarvan de ouderslaapkamer met vaste kast; badkamer met vloerverwarming en designradiator, inloopdouche, wandcloset en wastafel met wastafelmeubel.

2e etage:
Overloop, bergruimte en 4e slaapkamer.

Buiten:
De prachtige voor- en achtertuin is fraai aangelegd en keurig verzorgd. Tevens zijn er meerdere zonneterrassen aangelegd waar je door de diepe tuin altijd schaduw- en zonplekjes kunt vinden. Ook is er voor de garage een royale oprit aanwezig. De woning is extra comfortabel door de zonnescreens en horren.

Bitgummole:
Gelegen bij Leeuwarden staat het karakteristieke dorpje Bitgummole (Beetgumermolen). Het dorp telt ca. 1.000 inwoners, maar toch met behoorlijke voorzieningen. Zo is er bijvoorbeeld een basisschool, gezondheidscentrum, diverse sport- en andere verenigingen. Voor meer voorzieningen is Leeuwarden op korte afstand gelegen, evenals andere voorzieningsrijke dorpen als Stiens en Berlikum. Ook de ontsluiting richting de rest van Nederland is uitstekend. Zo is het dorp gelegen bij de A31 en de autoweg Leeuwarden, S10, en Noordwest-Tangent.

Ook de prachtige natuurgebieden zijn op korte afstand van de woning gelegen. Zo zijn er vele wandel- en fietsgebieden aanwezig. Ook is het prachtige waddengebied op korte afstand gelegen.

Heerlijk sfeervol wonen, ruim, maar toch nabij alle (stadse)voorzieningen? Maak dan snel een afspraak met onze flexibele makelaars bij De Hammeringen 33 te Bitgummole.

Kenmerken

Soort Eengezinswoning, Twee-onder-een-kapwoning
Vraagprijs Prijs op aanvraag
Aangeboden 3 jaar geleden
Status Verkocht
Aanvaarding In overleg

Bekijk alle kenmerken...

Interesse?

Vraag een bezichtiging aan

Bekijk de omgeving

Ontdek de ligging van deze woning

Alle kenmerken

Bouw

Bouwvorm Bestaande bouw
Bouwjaar 1974
Onderhoud (binnen) Goed
Toelichting Keurig onderhouden
Onderhoud (buiten) Goed
Toelichting Keurig onderhouden
Dak Dwarskap
Dak materialen Pannen
Dak toelichting Met pannen gedekt

Buitenruimte

Ligging In woonwijk, Beschutte ligging
Tuin Achtertuin, Voortuin, Zijtuin (VERZORGD)
Tuin oppervlakte 250 m²
Achtertuin 200 m² (24m diep en 9.25m breed)
Ligging Gelegen op ZUIDOOST (bereikbaar via achterom)
Parkeren Openbaar parkeren, Op eigen terrein
Parkeren Ruim voldoende parkeergelegenheid

Energie

Energielabel C
Einddatum 2032-12-23
Isolatie Dakisolatie, Muurisolatie, Vloerisolatie, Dubbel glas, HR-glas
Verwarming CV-ketel
Warm water CV-ketel
C.V.-ketel Nefit Gas gestookte combiketel uit 2003 eigendom

Garage

Garage soort Vrijstaand (steen)
Voorzieningen Elektra
Isolatie Geen isolatie
Oppervlakte 23 m² (7.19m diep en 3.13m breed)
Capaciteit 1 auto(s)
Aantal 1

Indeling

Woonlagen 4 woonlagen
Kamers 5 kamers, waarvan 4 slaapkamers
Badkamers 1 badkamer(s) en 1 aparte toilet(ten)
Badkamervoorzieningen Toilet, Douche, Wastafel, Wastafelmeubel, Vloerverwarming
Voorzieningen TV-kabel, Buitenzonwering

Oppervlakken en inhoud

Perceeloppervlakte 390 m²
Woonoppervlakte 123 m²
Inhoud 426 m³
Oppervlakte externe bergruimte 23 m²

Bestemming

Huidig gebruik Woonruimte
Huidige bestemming Woonruimte
Permanente bewoning Ja

Schuur / berging

Schuur / berging soort Inpandig
Voorzieningen Voorzien van verwarming, Voorzien van elektra, Voorzien van water
Aantal 1

Kadaster BEETGUM B 2052

Oppervlakte 390 m²
Omvang Geheel perceel

Vergelijkbaar in de buurt

...