Menu
De Houtwal 6 Opende - Hoofdafbeelding.jpg
C

Tonen op kaart

Verkocht: De Houtwal 6, Opende

Opende De Houtwal 6

137 m² woonoppervlakte

555 m² perceeloppervlakte

5 kamers, waarvan 3 slaapkamers

Verkocht

Geïnteresseerd in dit object?

Vraag eenvoudig een bezichtiging aan!

Interesse in woning

Omschrijving

Wat een heerlijk, rolstolvriendelijk, levensloopbestendig en gelijkvloers huis op een prachtplekje! Deze vrijstaande woning met aangebouwde garage is geheel aangepast en rolstoelvriendelijk, met een slaap- en badkamer beneden. Ook het uitzicht is uitmuntend over het prachtige weiland. Tevens is het perceel ruim; het geheel staat namelijk op ca. 555m² eigen grond. De woonwijk is rustig en ruim opgezet. Ook aan de voorzijde dus een prachtige ligging.

Dit huis is voor vele doeleinden geschikt; van gezin tot een mindervalide persoon. Alles is mogelijk! Ook zijn er met gemak meer slaapkamers te realiseren in dit royale geheel.

Energiezuinig? Ook dat is goed geregeld; de woning voldoet met de dubbele beglazing, dak-, muur- en vloerisolatie aan het C-energielabel. Met wat kleine aanpassingen zit u hier dus zomaar op het A-energielabel! Wat tevens zeer comfortabel is, is de vloerverwarming. Bij de gehele begane grond is vloerverwarming aanwezig (ook ideaal voor een eventuele warmtepomp).

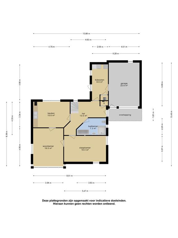
Begane grond:
Entree met hal; ruime tuingerichte woonkamer; dichte woonkeuken met inbouwapparatuur; een royale, mindervalidevriendelijke slaapkamer van maar liefst ca. 18,4 m²; badkamer met inloopdouche, bad, wastafel en toilet (alles wederom aangepast naar mindervalidevriendelijkheid); bijkeuken met wasruimte en achterentree; in spouw gebouwde garage.

1e etage:
Overloop; 2 tweepersoonsslaapkamers en een mogelijkheid tot het gemakkelijk realiseren van extra slaapkamers; royale badkamer met douche, wastafel en toilet.

2e etage:
Vliering naar vlizozolder.

Buiten:
Vele zonneterrassen, een oprit voor meerdere auto's en een royale achtertuin met prachtuitzicht, dit zijn slechts enkele kenmerken voor deze geweldige locatie. Ook is er een tuinberging met overkapping gerealiseerd.

Opende ligt precies op de grens tussen Groningen en Friesland en valt nét onder Groningen. Opende is zeer centraal gelegen en is zeer voorzieningsrijk met o.a. een eigen theater (Baron Theater), een supermarkt, scholen, sportaccommodaties en een zeer actief verenigingsleven. Aan het verlengde van Opende ligt Surhuisterveen. Surhuisterveen is het regiocentrum van alle omliggende dorpen en is daardoor zeer voorzieningsrijk met o.a. maar liefst 4 grote supermarkten, meer dan 100 winkels en meerdere (voortgezet onderwijs)scholen.

Meer weten over alle uitgebreide mogelijkheden van deze woning aan De Houtwal 6 te Opende? Onze flexibele makelaars leiden u graag rond en bespreken alle mogelijkheden met u.

Kenmerken

Soort Eengezinswoning, Vrijstaande woning
Vraagprijs Prijs op aanvraag
Aangeboden 3 jaar geleden
Status Verkocht
Aanvaarding In overleg

Bekijk alle kenmerken...

Interesse?

Vraag een bezichtiging aan

Bekijk de omgeving

Ontdek de ligging van deze woning

Alle kenmerken

Bouw

Bouwvorm Bestaande bouw
Bouwjaar 1995
Onderhoud (binnen) Goed
Onderhoud (buiten) Goed
Dak Samengesteld dak
Dak materialen Pannen, Bitumineuze dakbedekking

Energie

Energielabel C
Einddatum 2032-08-11
Isolatie Dakisolatie, Muurisolatie, Vloerisolatie, Dubbel glas, HR-glas
Verwarming CV-ketel
Warm water CV-ketel
C.V.-ketel Remeha HR107-ketel Gas gestookte combiketel uit 2020 eigendom

Oppervlakken en inhoud

Perceeloppervlakte 555 m²
Woonoppervlakte 137 m²
Overige ruimten 23 m²
Inhoud 576 m³
Oppervlakte externe bergruimte 10 m²
Gebouwgebonden buitenruimte 7 m²

Buitenruimte

Ligging Aan rustige weg, In woonwijk, Vrij uitzicht, Open ligging, Landelijk gelegen
Tuin Tuin rondom (VERZORGD)
Tuin oppervlakte 420 m²
Ligging Gelegen op (bereikbaar via achterom)
Parkeren Openbaar parkeren, Op eigen terrein
Parkeren Ruim voldoende parkeergelegenheid

Indeling

Woonlagen 3 woonlagen
Kamers 5 kamers, waarvan 3 slaapkamers
Badkamers 2 badkamer(s)
Badkamervoorzieningen Ligbad, Wastafel, Toiletten 2, Douches 2
Voorzieningen TV-kabel, Natuurlijke ventilatie

Garage

Garage soort Aangebouwd (steen)
Voorzieningen Verwarming, Elektra, Water, Elektrische deur
Isolatie Dakisolatie, Muurisolatie, Vloerisolatie
Capaciteit 1 auto(s)
Aantal 1

Schuur / berging

Schuur / berging soort Vrijstaand (steen)
Voorzieningen Voorzien van verwarming, Voorzien van elektra, Voorzien van water
Isolatie Dakisolatie, Muurisolatie, Vloerisolatie, Dubbel glas
Aantal 1

Bestemming

Huidig gebruik Wonen
Huidige bestemming Wonen
Permanente bewoning Ja

Kadaster GROOTEGAST F 4727

Oppervlakte 555 m²
Omvang Geheel perceel

Vergelijkbaar in de buurt

...