Menu
de Omloop 14 Oldehove - Hoofdafbeelding.jpg
B

Tonen op kaart

Brochure

Verkocht: de Omloop 14, Oldehove

Oldehove de Omloop 14

158 m² woonoppervlakte

754 m² perceeloppervlakte

6 kamers, waarvan 4 slaapkamers

Verkocht

Geïnteresseerd in dit object?

Vraag eenvoudig een bezichtiging aan!

Interesse in woning

Omschrijving

Deze goed onderhouden royale vrijstaande woning met aangebouwde garage, een diepe zonnige tuin op het zuiden met een weids uitzicht over de aangrenzende landerijen is gelegen aan de rand van het dorp Oldehove op een perceel van maar liefst 754 m² eigen grond.

Het in 1995 traditioneel gebouwde woonhuis is geheel geïsoleerd naar de normen van het bouwjaar met als extra een dik schelpenpakket onder de vloer. Het geheel wordt verwarmd door een nieuwe HR combiketel van Remeha (2020) met deels vloerverwarming en radiatoren. Het buitenschilderwerk is gedaan in 2019.

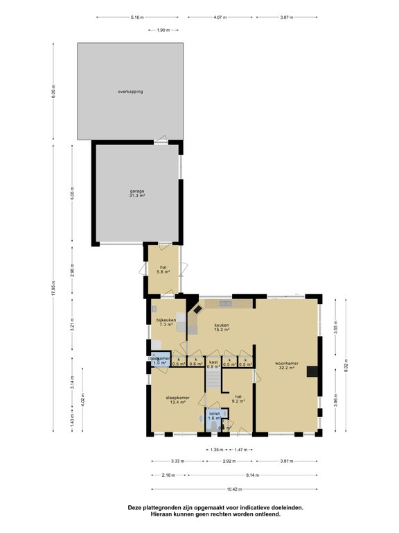
De indeling van deze woning is als volgt:
Entree, hal met de meterkast, het toilet met wandcloset en fontein en trapopgang, de lichte woonkamer van ca. 32 m² met een aansluiting voor een houtkachel, de open woonkeuken voorzien van een nette keukenopstelling voorzien van inbouwapparatuur, een slaapkamer van 13 m² met eigen doucheruimte, de bijkeuken met witgoedaansluitingen, de cv-opstelling en kastruimte, een tussenhal met achterentree en een toegang naar de aangebouwde grote garage van ca. 31 m².

Eerste verdieping:
Overloop met kastruimte, drie ruime slaapkamers, veel bergruimte en de tweede badkamer met douche, ligbad, toilet en vaste wastafel.

Tweede verdieping: middels vaste trap te bereiken zolderverdieping over de gehele lengte van de woning.

De voortuin is ingericht met een gazon en sierbeplanting. De diepe achtertuin is gelegen op het zonnige zuiden. Het is ingericht met een gazon, bestrating, sierbeplanting en een grote overkapping. Deze tuin biedt u naast veel privacy een prachtig uitzicht over de achtergelegen landerijen. Daarnaast grenst het aan water en is hier een fraai terras aangelegd.

De ruime oprit biedt voldoende parkeergelegenheid op eigen terrein.

Het energielabel is in aanvraag en betreft momenteel een voorlopig B-energielabel. Een voorlopig label heeft geen officiële status. Het is bedoeld als kennismaking met het energielabel.

Oldehove is een gezellig landelijk gelegen dorp met ca. 1.600 inwoners. Het beschikt over voorzieningen als basisscholen, supermarkt, bakker, visrestaurant, een dorpshuis en sportaccommodaties. Oldehove is onderdeel van de gemeente Westerkwartier en is gelegen op ca. 20 minuten van de stad Groningen.

Is uw interesse voor deze woning gewekt? Maak een afspraak voor en bezichtiging om uw indruk compleet te maken. Wij leiden u graag rond aan De Omloop 14 te Oldehove.

Kenmerken

Soort Eengezinswoning, Vrijstaande woning
Vraagprijs Prijs op aanvraag
Aangeboden 5 jaar geleden
Status Verkocht
Aanvaarding In overleg

Bekijk alle kenmerken...

Interesse?

Vraag een bezichtiging aan

Bekijk de omgeving

Ontdek de ligging van deze woning

Alle kenmerken

Bouw

Bouwvorm Bestaande bouw
Bouwjaar 1996
Onderhoud (binnen) Goed
Toelichting Het geheel is van binnen goed onderhouden
Onderhoud (buiten) Goed
Toelichting Het geheel is van buiten goed onderhouden
Dak Zadeldak
Dak materialen Pannen
Dak toelichting De platte daken zijn gedekt met bitumineuze dakbedekking

Energie

Energielabel B
Einddatum 2025-02-15
Isolatie Dakisolatie, Muurisolatie, Vloerisolatie, Dubbel glas, Volledig geïsoleerd
Verwarming CV-ketel, Vloerverwarming (gedeeltelijk)
Warm water CV-ketel
C.V.-ketel HR Remeha Gas gestookte combiketel uit 2020 eigendom

Buitenruimte

Ligging Aan water, Aan rustige weg, In woonwijk, Vrij uitzicht, Open ligging, Landelijk gelegen
Tuin Achtertuin, Voortuin, Zijtuin (NORMAAL)
Tuin oppervlakte 515 m²
Achtertuin 313 m² (25m diep en 12.5m breed)
Ligging Gelegen op ZUID (bereikbaar via achterom)
Parkeren Openbaar parkeren, Op eigen terrein

Garage

Garage soort Inpandig
Voorzieningen Elektra
Isolatie Geen isolatie
Oppervlakte 31 m² (6.06m diep en 5.16m breed)
Capaciteit 1 auto(s)
Aantal 1

Oppervlakken en inhoud

Perceeloppervlakte 754 m²
Woonoppervlakte 158 m²
Overige ruimten 45 m²
Inhoud 708 m³
Gebouwgebonden buitenruimte 41 m²

Indeling

Woonlagen 3 woonlagen
Kamers 6 kamers, waarvan 4 slaapkamers
Badkamers 1 badkamer(s) en 1 aparte toilet(ten)
Badkamervoorzieningen Ligbad, Toilet, Douche, Wastafel
Voorzieningen TV-kabel

Bestemming

Huidig gebruik Woonruimte
Huidige bestemming Woonruimte
Permanente bewoning Ja

Schuur / berging

Schuur / berging soort Aangebouwd (hout)
Isolatie Geen isolatie
Aantal 1

Kadaster OLDEHOVE M 1282

Oppervlakte 665 m²
Omvang Geheel perceel

Vergelijkbaar in de buurt

...