Menu
De Parel 17 Kornhorn - Hoofdafbeelding.jpg
C

Tonen op kaart

Verkocht: De Parel 17, Kornhorn

Kornhorn De Parel 17

88 m² woonoppervlakte

262 m² perceeloppervlakte

4 kamers

Verkocht

Geïnteresseerd in dit object?

Vraag eenvoudig een bezichtiging aan!

Interesse in woning

Omschrijving

De naam van de straat zegt het al: een parel voor wie het ziet! Deze traditioneel gebouwde 2 onder 1-kapwoning is verrassend ruim en is voorzien van een ruime vrijstaande stenen garage van ca. 16 m². Er zijn 3 ruime slaapkamers aanwezig op de eerste etage van de woning en een badkamer met alles er op en er aan. Bovendien is de ligging van deze woning fantastisch: een rustige en kindvriendelijke buurt op een hoekperceel van ca. 262 m².

Een leuke verrassing aan dit geheel is de grote houten overkapping in de achtertuin die op vele manieren gebruikt kan worden. Deze woning is hier en daar toe aan wat onderhoud, maar de handige klusser pakt deze mogelijkheid om de woning naar eigen smaak en wensen weer helemaal spic en span te maken en er een heerlijk (gezins)huis van te maken.

Het geheel wordt verwarmd met een (lease) CV-ketel uit 2012 in combinatie met radiatoren. In de woonkamer is een airco aanwezig welke zowel kan verwarmen als koelen.

De indeling van de woning is als volgt:
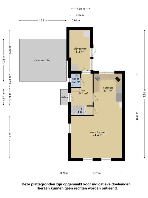
Begane grond: Entree via de voordeur (met afdak) in de zijgevel van de woning; hal met trapopgang, meterkast en toiletruimte met wandcloset en fontein; L-vormige open woonkamer van ca. 24,5 m²; open keuken voorzien van nette keuken met diverse inbouwapparatuur; betegelde bijkeuken met witgoedaansluitingen.

Eerste etage: Overloop met toegang tot de 3 slaapkamers; keurige badkamer met lig-/zitbad en douche (met jets), wandcloset, wastafel, wastafelmeubel.

Tweede etage: vlizozolder welke te bereiken is via een losse trap.

De op west gelegen achtertuin is onderhoudsvrij ingericht en is omheind met een schutting. Heerlijk barbecueën op 's zomerse dagen kan onder de overkapping welke gericht is naar het zonnige zuidwesten. Er is verder een vrijstaande stenen garage met zolder aanwezig, dus aan berg-, hobby of klusruimte ook geen gebrek hier! Wat wilt u nog meer?

Het dorp Kornhorn:
Kornhorn is een plezierig dorp gelegen in het Groninger Westerkwartier. De snelweg A7 met een uitstekende verbinding naar Groningen-Drachten-Heerenveen ligt op korte afstand. Verder beschikt het dorp over een dorpshuis, bassischool en openbaar vervoer. De omgeving met in de nabijheid het prachtige natuurgebied Curringherveld leent zich uitstekend om heerlijk te wandelen en te fietsen.

Ziet u de potentie en bent u toe aan de volgende stap in de woningmarkt? Neem dan nu een kijkje aan De Parel 17 te Kornhorn!

Kenmerken

Soort Eengezinswoning, Twee-onder-een-kapwoning
Prijs op aanvraag
Aangeboden 3 jaar geleden
Status Verkocht
Aanvaarding In overleg

Bekijk alle kenmerken...

Interesse?

Vraag een bezichtiging aan

Bekijk de omgeving

Ontdek de ligging van deze woning

Alle kenmerken

Bouw

Bouwvorm Bestaande bouw
Bouwjaar 1981
Bouwjaar omschrijving De woning is gebouwd in 1981
Onderhoud (binnen) Redelijk tot goed
Toelichting Het geheel is van binnen redelijk goed onderhouden
Onderhoud (buiten) MATIG
Toelichting Het geheel is van buiten matig onderhouden
Dak Samengesteld dak
Dak materialen Pannen, Bitumineuze dakbedekking
Dak toelichting Een samengesteld dak met pannen en bitumineuze dakbedekking

Buitenruimte

Ligging Aan rustige weg, In woonwijk
Tuin Achtertuin, Voortuin, Zijtuin (VERZORGD)
Tuin oppervlakte 237 m²
Achtertuin 174 m² (17m diep en 10.26m breed)
Ligging Gelegen op ZUIDWEST (bereikbaar via achterom)
Parkeren Openbaar parkeren, Op eigen terrein
Parkeren Er is voldoende parkeergelegenheid op eigen terrein als aan de straat.

Energie

Energielabel C
Einddatum 2033-01-24
Isolatie Dakisolatie, Muurisolatie, Dubbel glas, Gedeeltelijk dubbel glas
Verwarming CV-ketel
Warm water CV-ketel
C.V.-ketel Intergas Gas gestookte combiketel uit 2012 lease

Oppervlakken en inhoud

Perceeloppervlakte 262 m²
Woonoppervlakte 88 m²
Overige ruimten 7 m²
Inhoud 336 m³
Oppervlakte externe bergruimte 16 m²
Gebouwgebonden buitenruimte 16 m²

Garage

Garage soort Vrijstaand (steen)
Voorzieningen Elektra
Isolatie Geen isolatie
Oppervlakte 16 m² (3.07m diep en 5.18m breed)
Capaciteit 1 auto(s)
Aantal 1

Indeling

Woonlagen 3 woonlagen
Kamers 4 kamers
Badkamers 1 badkamer(s) en 2 aparte toilet(ten)
Badkamervoorzieningen Ligbad, Zitbad, Toilet, Douche, Wastafel, Wastafelmeubel
Voorzieningen Mechanische ventilatie, TV-kabel, Airconditioning, Dakraam

Bestemming

Huidig gebruik Woonruimte
Huidige bestemming Woonruimte
Permanente bewoning Ja

Kadaster GROOTEGAST E 2573

Oppervlakte 17 m²
Omvang Geheel perceel

Vergelijkbaar in de buurt

...