Menu
De Slinke 11 Sumar - Hoofdafbeelding.jpg
A

Tonen op kaart

Verkocht: De Slinke 11, Sumar

Sumar De Slinke 11

118 m² woonoppervlakte

309 m² perceeloppervlakte

4 kamers, waarvan 3 slaapkamers

Verkocht

Geïnteresseerd in dit object?

Vraag eenvoudig een bezichtiging aan!

Interesse in woning

Omschrijving

Bent u op zoek naar een moderne ruime onderhoudsarme 2-onder-1-kapwoning in Sumar? Dan kan het zomaar zijn dat u deze nu gevonden hebt! Deze nette en instapklare woning is gelegen in een rustige kindvriendelijke ruim opgezette woonomgeving en beschikt over 3 slaapkamers, een aangebouwde (en geïsoleerde) stenen bijkeuken, een ruime aangebouwde stenen garage én een privacyvolle en zonnige tuin op het oosten! Wat wilt u nog meer?

Een prachtige ligging, modern en energiezuinig: dat is slechts een greep uit de kenmerken die deze in 2010 gebouwde twee-onder-een kapwoning met aangebouwde bijkeuken en garage typeren. Het woonhuis is volledig geïsoleerd, voorzien van maar liefst 16 zonnepanelen en wordt verwarmd door middel van een HR combiketel van Intergas uit 2010 met vloerverwarming op de begane grond en de eerste verdieping. Er is ook een waterontharder aanwezig.
De kunststof kozijnen en trespa gevelbekleding maken het geheel ook nog eens onderhoudsarm.

De indeling van deze woning is als volgt:
Zijentree, de hal met de meterkast, het toilet voorzien van wandcloset en fontein, de L-vormige woonkamer met een mooie lichtinval en een keurige siergrindvloer, de open keuken met een moderne complete keukenopstelling voorzien van inbouwapparatuur zoals een vaatwasser, een heet waterkraan, een inductie kookplaat, een koelkast, vriezer en close-in boiler, bijkeuken met witgoedaansluitingen, achterentree en een toegang naar de garage.

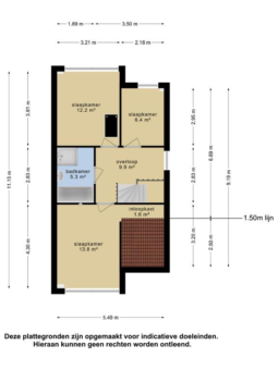
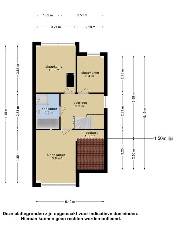
Eerste verdieping: een ruime overloop met aansluitend drie slaapkamers, waarvan de slaapkamer aan de voorzijde is voorzien van een inloopkast.

Tweede verdieping: een door middel van vlizo-trap te bereiken zolderverdieping.

Buitenom:
Het vrije uitzicht op een groenstrook met sloot geeft u geeft een heerlijk gevoel van ruimte.
De voortuin is onderhoudsvriendelijk ingericht met grind en borders. De bestrate oprit biedt u voldoende parkeergelegenheid op eigen terrein. Via de zijkant van de woning kunt u achterom komen met de fiets of lopend. De keurige achtertuin is gelegen op het zonnige oosten. Deze is ingericht met een groot terras en gazon. Het biedt u naast een zonnige ligging ook veel privacy waardoor u optimaal van uw tuin kunt genieten.

Sumar is een gezellig dorp met een actieve dorpsvereniging , een basisschool, dorpshuis, openbaar vervoer, een haven en sportvoorzieningen. Het is centraal gelegen aan het Bergumermeer en goede uitvalswegen naar o.a. Drachten, Leeuwarden, Dokkum en Burgum. Het naastgelegen dorp Burgum heeft een uitgebreid voorzieningsniveau, hier vindt u alles voor het dagelijks gebruik.

Kortom: een heerlijke ruimtelijke plek om te wonen met goede voorzieningen en uitvalsweg binnen handbereik. Is uw interesse voor deze woning gewekt? Maak dan een afspraak voor een bezichtiging, wij heten u alvast van harte welkom aan De Slinke 11 te Sumar!

Kenmerken

Soort Eengezinswoning, Twee-onder-een-kapwoning
Vraagprijs Prijs op aanvraag
Aangeboden 2 jaar geleden
Status Verkocht
Aanvaarding In overleg

Bekijk alle kenmerken...

Interesse?

Vraag een bezichtiging aan

Bekijk de omgeving

Ontdek de ligging van deze woning

Alle kenmerken

Bouw

Bouwvorm Bestaande bouw
Bouwjaar 2010
Onderhoud (binnen) Uitstekend
Toelichting Het woonhuis is uitstekend onderhouden
Onderhoud (buiten) Uitstekend
Toelichting Het woonhuis is uitstekend onderhouden.
Dak Samengesteld dak
Dak materialen Pannen, Bitumineuze dakbedekking
Dak toelichting Het dak is gedekt met pannen. De platte daken met bitumineuze dakbedekking.

Buitenruimte

Ligging Aan rustige weg, In woonwijk, Vrij uitzicht
Tuin Achtertuin, Voortuin (NORMAAL)
Tuin oppervlakte 158 m²
Achtertuin 120 m² (12m diep en 10m breed)
Ligging Gelegen op OOST (bereikbaar via achterom)
Parkeren Openbaar parkeren, Op eigen terrein
Parkeren De oprit biedt voldoende parkeergelegenheid op eigen terrein

Energie

Energielabel A
Einddatum 2030-12-26
Isolatie Volledig geïsoleerd
Verwarming CV-ketel
Warm water CV-ketel
C.V.-ketel HR Combi Intergas Gas gestookte combiketel uit 2010 eigendom

Garage

Garage soort Aangebouwd (steen)
Voorzieningen Elektra
Isolatie Volledig geïsoleerd
Oppervlakte 18 m² (6.11m diep en 2.98m breed)
Capaciteit 1 auto(s)
Aantal 1

Indeling

Woonlagen 3 woonlagen
Kamers 4 kamers, waarvan 3 slaapkamers
Badkamers 1 badkamer(s) en 1 aparte toilet(ten)
Badkamervoorzieningen Ligbad, Douche, Wastafel, Wastafelmeubel, Inloopdouche
Voorzieningen Mechanische ventilatie, TV-kabel, Buitenzonwering, Zonnepanelen

Oppervlakken en inhoud

Perceeloppervlakte 309 m²
Woonoppervlakte 118 m²
Overige ruimten 29 m²
Inhoud 534 m³

Bestemming

Huidig gebruik Woonruimte
Huidige bestemming Woonruimte
Permanente bewoning Ja

Kadaster OOSTERMEER K 1483

Oppervlakte 309 m²
Omvang Geheel perceel

Vergelijkbaar in de buurt

...