Menu
De Trije Roeden 44 Boelenslaan - Hoofdafbeelding.jpg
D

Tonen op kaart

Brochure

Verkocht: De Trije Roeden 44, Boelenslaan

Boelenslaan De Trije Roeden 44

128 m² woonoppervlakte

4.860 m² perceeloppervlakte

5 kamers, waarvan 2 slaapkamers

Verkocht

Geïnteresseerd in dit object?

Vraag eenvoudig een bezichtiging aan!

Interesse in woning

Omschrijving

In het fraaie coulisselandschap van de Friese Wouden staat dit sfeervolle karakteristieke landhuis met vrijstaande schuurruimte, vrijstaande carport, kas, tuin en weiland op enkele minuten van Surhuisterveen. Het geheel is gelegen op een perceel van 4.860 m2, waardoor het uitermate geschikt is voor meerdere doeleinden. Op deze locatie kunt u optimaal genieten van het buitenleven.

Het landhuis is gebouwd in 1927 en is door de jaren heen gemoderniseerd. Het is onder andere voorzien van dakisolatie en gevelisolatie. Het schilderwerk wordt jaarlijks bijgehouden. Verwarming vindt plaats door een HR combiketel van AWB uit 2003.

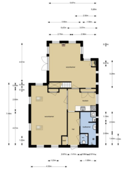
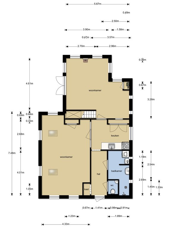
De indeling van deze woning is als volgt:
Entree, hal, toilet met fontein, badkamer met douchehoek en wastafelmeubel, bijkeuken met witgoedaansluitingen en cv-opstelling, half open keuken met een nette keukenopstelling, sfeervolle tuingerichte woonkamer met openslaande deuren naar het terras en een schouw met houtkachel, lichte woonkamer met kelder.

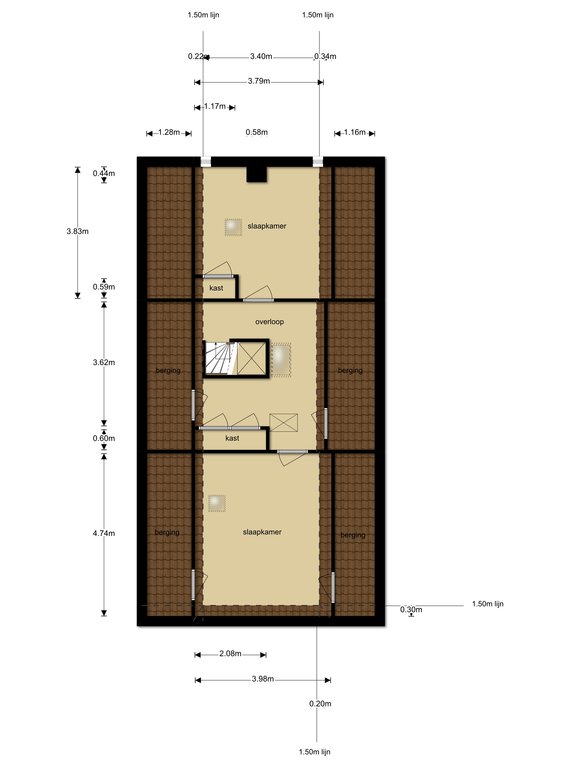
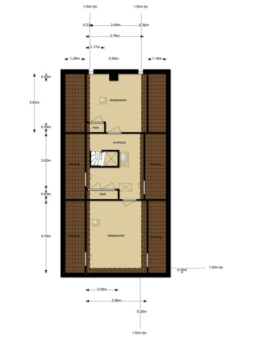
Eerste verdieping: ruime overloop met aansluitend twee slaapkamers met vaste kasten en bergruimte.

Tweede verdieping: zolderberging.

Achter het woonhuis staan de dubbele garage en schuurruimte met beloopbare zolderruimte van gezamenlijk ca. 112 m2. Naast het woonhuis staat de hooikiep, die nu dienst doet als een royale carport voor twee auto’s.
Rondom het huis is de verzorgde tuin gelegen die is ingericht met een terras, fraaie beplanting, borders, een natuurvijver, bomen en gazon. De achtertuin is gelegen op het zonnige zuidoosten. Aan de achterzijde bevindt zich een weiland, hierdoor is het geheel uitermate geschikt voor het houden van kleinvee.
De ruime oprit biedt voldoende parkeergelegenheid voor het parkeren van meerdere auto’s op eigen terrein.

Kortom: een solide en goed onderhouden landhuis in een landelijke setting die, naast veel privacy, ook de mogelijkheid biedt voor het uitoefenen van allerhande ruimtevragende (dieren-) hobby’s. Gelegen in het buitengebied en toch op korte afstand van Drachten, Surhuisterveen en de A7 (Groningen-Drachten-Heerenveen).

Is uw interesse gewekt? Maak dan een afspraak voor een bezichtiging om uw indruk compleet te maken. Wij heten u alvast van harte welkom aan De Trije Roeden 44 te Boelenslaan.

Kenmerken

Soort Eengezinswoning, Vrijstaande woning
Vraagprijs Prijs op aanvraag
Aangeboden 7 jaar geleden
Status Verkocht
Aanvaarding In overleg

Bekijk alle kenmerken...

Interesse?

Vraag een bezichtiging aan

Bekijk de omgeving

Ontdek de ligging van deze woning

Alle kenmerken

Bouw

Bouwvorm Bestaande bouw
Bouwjaar 1927
Onderhoud (binnen) Goed
Onderhoud (buiten) Goed
Dak Zadeldak
Dak materialen Pannen

Energie

Energielabel D
Einddatum 2029-03-27
Isolatie Dakisolatie, Muurisolatie, Grotendeels dubbel glas
Verwarming CV-ketel
Warm water CV-ketel
C.V.-ketel HR AWB Gas gestookte combiketel uit 2003 eigendom

Indeling

Woonlagen 3 woonlagen
Kamers 5 kamers, waarvan 2 slaapkamers
Badkamers 1 badkamer(s)
Badkamervoorzieningen Douche, Wastafelmeubel
Voorzieningen Dakraam

Oppervlakken en inhoud

Perceeloppervlakte 4.860 m²
Woonoppervlakte 128 m²
Inhoud 442 m³
Oppervlakte externe bergruimte 147 m²

Garage

Garage soort Vrijstaand (hout)
Voorzieningen Elektra, Vliering
Oppervlakte 97 m² (17.5m diep en 5.56m breed)
Capaciteit 4 auto(s)

Bestemming

Huidig gebruik Woonruimte
Huidige bestemming Woonruimte
Permanente bewoning Ja

Buitenruimte

Ligging Aan rustige weg, Vrij uitzicht, Open ligging, Buiten bebouwde kom, Landelijk gelegen
Ligging Gelegen op (bereikbaar via achterom)
Parkeren Openbaar parkeren

Kadaster SURHUIZUM B 7598

Oppervlakte 1.995 m²
Omvang Geheel perceel

Schuur / berging

Schuur / berging soort Vrijstaand (hout)

Vergelijkbaar in de buurt

...