Menu
De Twee Gebroeders 198 Drachten - Hoofdafbeelding.jpg
B

Tonen op kaart

Verkocht: De Twee Gebroeders 198, Drachten

Drachten De Twee Gebroeders 198

126 m² woonoppervlakte

128 m² perceeloppervlakte

4 kamers, waarvan 3 slaapkamers

Verkocht

Geïnteresseerd in dit object?

Vraag eenvoudig een bezichtiging aan!

Interesse in woning

Omschrijving

Dus...het bed verhuizen, de spullen uitpakken en er meteen gaan wonen? Dat kan bij deze zeer royale en keurige woning aan De Twee Gebroeders 198 in Drachten. Deze woning verkeert namelijk in een keurige staat van onderhoud, is zeer degelijk gebouwd, is vrij gelegen aan de voorzijde, heeft een zonnige, zuidoost gerichte achtertuin en heeft bovenal heel veel ruimte. De woning is te vinden in de zeer gewilde woonbuurt "De Folgeren".

De woning is prachtig onder handen genomen met onder andere een nieuwe pvc-vloer, een nieuwe en luxe keuken, een compleet aangepakte toiletruimte en een prachtige, 'wellnessfeer'-badkamer.

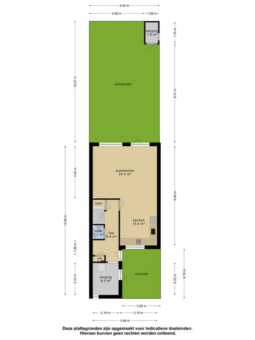
Begane grond:
Hal met uitgebreide, vernieuwde meterkast, garderobenis, vernieuwde toiletruimte met wandcloset en fontein, trapopgang en ruime trapkast/provisieruimte; zeer royale L-woonkamer met open, luxe keuken, voorzien van vele inbouwapparatuur en softmotion lades en kasten, een inductiekookplaat en een composieten aanrechtblad. De woon- en eetkamer is door de ligging overladen met licht en is zeer ruimtelijk. De gehele beganegrondvloer is voorzien van een prachtige pvc-vloer.

1e etage:
Overloop, 3 zeer ruime slaapkamers; prachtige badkamer met dubbele wastafel en softmotionmeubel, wandcloset, designradiator en een extra grote inloopdouche met handdouche, regendouche en douchedrain.

2e etage:
De ruime zolderverdieping is via een vaste trap bereikbaar alwaar volop bergruimte en de mogelijkheid om een 4e (slaap)kamer te realiseren. Op dit moment wordt deze grote ruimte gebruikt voor opslag, een speelhoek, wasruimte en ook is de cv-opstelling hier aanwezig.

Berging:
Aan de voorzijde is een grote berging aanwezig welke zowel te bereiken is aan de voorzijde als via de hal. Ook is er een kleine tuinberging aanwezig.

Achtertuin:
Fraai aangelegde, onderhoudsarme, zonnige en besloten achtertuin op het zuid-oosten met groot terras.

Voortuin:
Heerlijk onderhoudsarm, maar toch voorzien van veel privacy.

De buurt is kindvriendelijk met onder andere basisscholen, kinderopvang, speeltuinen en prachtige groene wandelgebieden. Het bruisende en zeer uitgebreide centrum van Drachten is op korte fietsafstand gelegen.

Drachten is een geliefde woonplaats met een grote verscheidenheid aan voorzieningen op het gebied van sport, basisscholen, voortgezet onderwijs instellingen en een uitgebreid winkelaanbod. Bovendien nabij uitvalswegen in de richting van Groningen (A7), Leeuwarden (Wâldwei N31) en Heerenveen (A7).

Royaal en instapklaar wonen? Onze flexibele makelaars laten u graag deze tussenwoning aan De Twee Gebroeders 198 in Drachten van binnen en van buiten grondig bekijken.

Kenmerken

Soort Eengezinswoning, Geschakelde woning
Vraagprijs Prijs op aanvraag
Aangeboden 3 jaar geleden
Status Verkocht
Aanvaarding In overleg

Bekijk alle kenmerken...

Interesse?

Vraag een bezichtiging aan

Bekijk de omgeving

Ontdek de ligging van deze woning

Alle kenmerken

Bouw

Bouwvorm Bestaande bouw
Bouwjaar 1982
Onderhoud (binnen) Uitstekend
Onderhoud (buiten) Goed tot uitstekend
Dak Dwarskap
Dak materialen Pannen
Dak toelichting Met pannen gedekt

Buitenruimte

Ligging Aan rustige weg, In woonwijk, Vrij uitzicht, Beschutte ligging, Open ligging
Tuin Achtertuin, Voortuin, Zonneterras (FRAAI_AANGELEGD)
Tuin oppervlakte 80 m²
Achtertuin 61 m² (10.27m diep en 5.94m breed)
Ligging Gelegen op ZUIDOOST
Parkeren Openbaar parkeren
Parkeren Ruim voldoende parkeergelegenheid in de straat, maar ook in de parkeervakken.

Energie

Energielabel B
Einddatum 2033-03-28
Isolatie Dakisolatie, Muurisolatie, Vloerisolatie, Dubbel glas, HR-glas
Verwarming CV-ketel
Warm water CV-ketel
C.V.-ketel HR combi Gas gestookte combiketel uit 2020 eigendom

Oppervlakken en inhoud

Perceeloppervlakte 128 m²
Woonoppervlakte 126 m²
Overige ruimten 6 m²
Inhoud 454 m³
Oppervlakte externe bergruimte 2 m²

Indeling

Woonlagen 3 woonlagen
Kamers 4 kamers, waarvan 3 slaapkamers
Badkamers 1 badkamer(s) en 1 aparte toilet(ten)
Badkamervoorzieningen Toilet, Douche, Dubbele wastafel, Wastafel, Wastafelmeubel, Inloopdouche
Voorzieningen TV-kabel, Buitenzonwering, Dakraam, Natuurlijke ventilatie

Schuur / berging

Schuur / berging soort Aangebouwd (steen)
Voorzieningen Voorzien van elektra
Isolatie Dakisolatie, Muurisolatie
Aantal 2

Bestemming

Huidig gebruik Wonen
Huidige bestemming Wonen
Permanente bewoning Ja

Kadaster DRACHTEN A 11794

Oppervlakte 128 m²
Omvang Geheel perceel

Garage

Garage soort Geen garage

Vergelijkbaar in de buurt

...