Menu
Drachtsterweg 23 Opende - Hoofdafbeelding.jpg
A+++
Drachtsterweg 23 Opende - Afbeelding 2.jpg
Drachtsterweg 23 Opende - Afbeelding 3.jpg

Tonen op kaart

Brochure

Verkocht onder voorbehoud: Drachtsterweg 23, Opende

Opende Drachtsterweg 23

113 m² woonoppervlakte

565 m² perceeloppervlakte

5 kamers, waarvan 4 slaapkamers

Verkocht onder voorbehoud: Momenteel is er een koper in onderhandeling over dit object. Houd deze pagina in de gaten voor updates.
Verkocht onder voorbehoud

Geïnteresseerd in dit object?

Vraag eenvoudig een bezichtiging aan!

Interesse in woning

Omschrijving

De bouw kan van start: alle 4 kavels zijn verkocht! Heeft u toch nog interesse? Laat het ons weten, dan plaatsen wij u graag op de wachtlijst.

Dit is een zeldzame kans om eigenaar te worden van een gloednieuwe, toekomstbestendige woning in het hart van een van de groenste en meest levendige regio’s van Noord-Nederland. FIER Westerkwartier ligt nét in Groningen, direct aan de Friese grens. Je woont hier ruim, duurzaam en omgeven door natuur, in een hechte gemeenschap waar je geen nummer bent, maar écht welkom. Niet voor niets wordt deze straat bewoond door mensen uit alle windstreken van Nederland.

Vrij op naam, inclusief btw, bouwverzekering en Bouwgarant-garantie. En met ons U vraagt, wij draaien-principe, zijn alle gangbare aanpassingen bespreekbaar.

Comfortabel en royaal wonen, helemaal nieuw, én dat op een toplocatie aan de Drachtsterweg! In het hart van Opende, de Drachtsterweg, voor velen de meest geliefde straat tussen Groningen en Friesland, is project FIER gestart. Dit is je kans om betaalbaar te wonen in een ruime, energiezuinige halfvrijstaande woning met een eigen uitstraling en volop mogelijkheden om alles aan jouw wensen aan te passen.

Toekomstbestendig, ook financieel
De woningen van FIER zijn écht toekomstbestendig. Ze zijn volledig gasloos, volledig elektrisch en gebouwd volgens de nieuwste BENG-eisen (Bijna Energie Neutrale Gebouwen). Dit resulteert in een energielabel van maar liefst A+++. Dit betekent niet alleen dat je energiekosten minimaal zijn, maar ook dat je profiteert van financiële voordelen zoals extra leencapaciteit en rentekorting op je hypotheek. Kortom, met een woning van FIER investeer je niet alleen in duurzaamheid en comfort, maar ook in financiële voordelen op de lange termijn!

Bouwgarant inbegrepen
Voor extra zekerheid is een Bouwgarant-certificaat aanwezig en bij de prijs inbegrepen. Dit biedt je de garantie dat jouw woning gegarandeerd wordt afgebouwd en geeft je na oplevering verstrekkende garanties op de bouwkwaliteit. Dus zowel de nieuwbouw met afbouw is verzekerd, als eventuele garanties naderhand. En niet te vergeten; door deze bouwverzekering kun je soms ook extra rentekortingen en NHG krijgen!

Verwarmen en koelen
De woningen zijn dus bijna energieneutraal, maar hebben nog veel meer te bieden. Wat ook nog een heerlijkheid is, is dat de moderne warmtepomp de warmtepomp buiten het constant houden van de vloerverwarmingstemperatuur in de winter; hij kan koelen in de zomer. Nog niet genoeg? Ook zijn er meer opties hiervoor aanwezig, zoals bijvoorbeeld het plaatsen van extra airco's en nog zonnepanelen tijdens de bouw.

Onderhoudsarm
Ook zijn de woningen zeer onderhoudsarm: de dakgoten, boeidelen, gevelbekleding en buitenkozijnen zijn van modern kunststof.

Ook heel fijn om te weten
Alle vertrekken op de begane grond én 1e verdieping, uitgezonderd achter de dragende knieschotten, worden voorzien van een (stille) cementdekvloer met een dikte van ca. 7 centimeter.

De fenomenale locatie
Wonen in FIER Westerkwartier betekent directe toegang tot een overvloed aan natuur en recreatie, en dat op topniveau. Dit is geen standaard groen, maar een oprecht unieke verzameling van gebieden. Zo ligt het zeer grote dierenverblijf met hertenkamp in deze straat, waar ook een speelgebied aan vast gekoppeld is.

Op loopafstand ligt Zwempark Strandheem: een officieel erkende zwemplas met zandstrand, grote ligweiden, speeltoestellen en vele pleziercentra met bijvoorbeeld paintball en horeca. Het water is van uitstekende kwaliteit en wordt natuurlijk gefilterd door het schone zand en op drukke dagen houdt de strandwacht een oogje in het zeil. Dit is werkelijk dé recreatieplek uit de omgeving.

Daarachter begint het indrukwekkende landschap van het Westerkwartier. Fiets of wandel door afwisselende weiden, moeras, heide en houtsingels. Ontdek de Doezumermieden, een bijzonder veenlandschap met petgaten en trilveen, of de Jilt Dijksheide, het laatste heideveld in de regio met pingo-ruïnes uit de ijstijd. En vergeet 't Blôde Fuottenpaad niet: een geliefd blotevoetenpad dat start in Opende.

Ondanks al die rust woon je hier heerlijk centraal. Binnen 5 minuten zit je op de A7, met Groningen en Leeuwarden op slechts een halfuur rijden. Voor een middagje shoppen of een terrasje ben je zo in Surhuisterveen – het beste koopcentrum van Friesland – met een ruim aanbod aan winkels en horeca. Zo geniet je van het beste van twee werelden.

Het dorp Opende, op de grens van Friesland en Groningen, biedt alles wat je nodig hebt binnen handbereik. Denk aan scholen, sportverenigingen, winkels en het gezellige Baron Theater en tal van recreatiegebieden en de recreatie zandplas Standheem (letterlijk om de hoek). Het nabijgelegen Surhuisterveen (uitgeroepen tot nummer 1 koopcentrum van Friesland) zorgt daarnaast voor nog meer voorzieningen zoals uitgebreide winkelmogelijkheden en gezellige horeca.

Vanuit Opende zit je bovendien zó op de A7 (5 minuten afstand), waardoor Groningen en Leeuwarden binnen slechts 30 autominuten bereikbaar zijn. Ook het openbaar vervoer brengt je snel naar omliggende steden en dorpen.

Een tour door de woning (zonder extra opties)
Binnen geniet je van veel ruimte en licht. De indeling is praktisch én lekker licht: via de zijentree kom je in de hal met toilet en trapopgang naar boven. Vanuit daar stap je binnen in de royale woonkamer. De grote kunststof kozijnen met isolerende beglazing en de openslaande deuren zorgen voor een prachtig zicht op jouw ruime tuin. Aan de achterzijde vind je plek voor een moderne open keuken en een gezellige eethoek. Vanuit de keuken bereik je eenvoudig de praktische bijkeuken met plek voor wasmachine en droger.

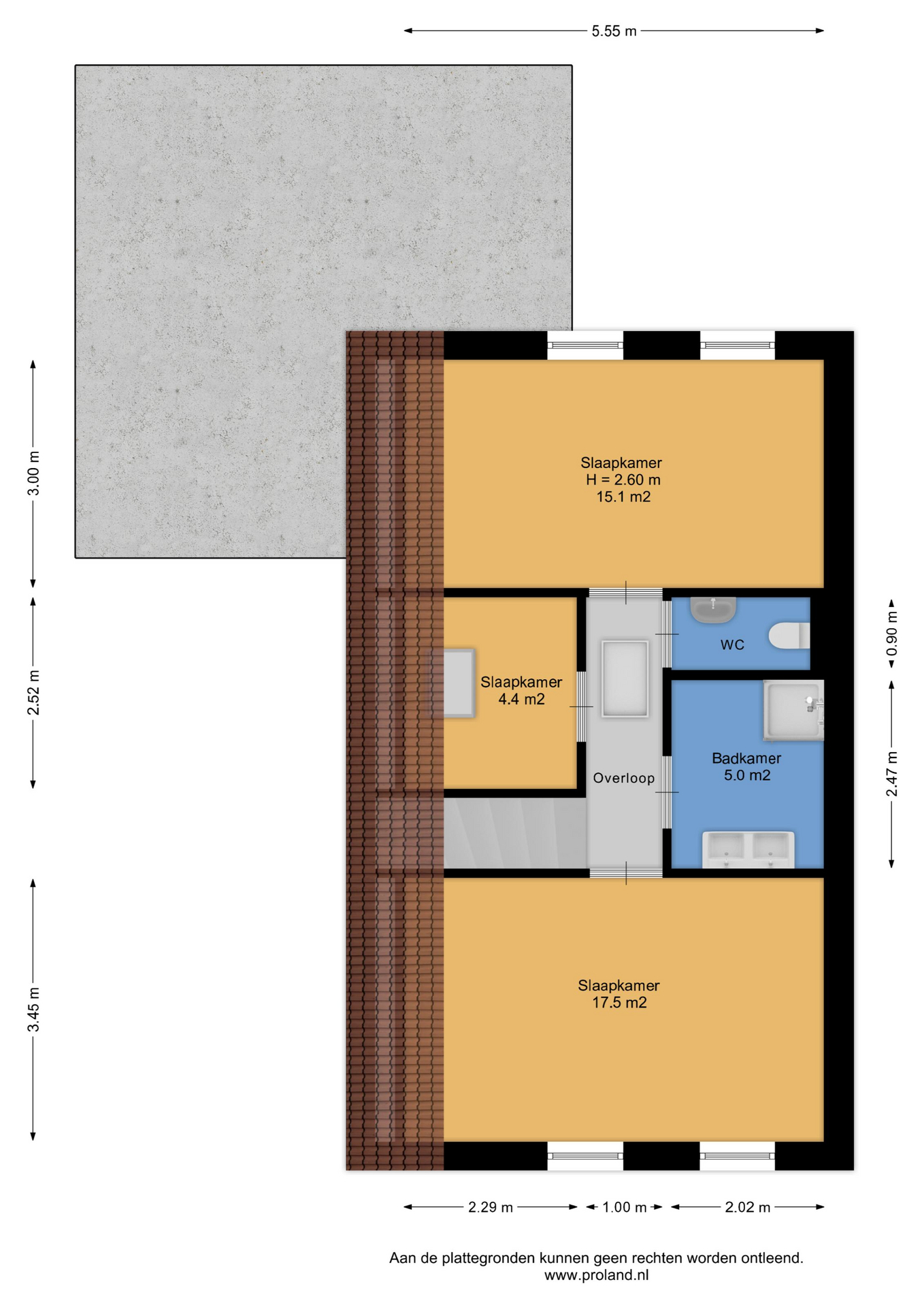
Op de eerste verdieping vind je standaard drie ruime slaapkamers en ruimte voor een comfortabele badkamer. Ook is er een separaat toiletruimte aanwezig, ideaal als de badkamer bezet is en/of iemand net naar het toilet is geweest.

Verdere informatie
Elke woning staat op een royaal perceel tussen de 452m² en 565m². De mogelijkheden zijn eindeloos: een heerlijk terras, een moestuin, of een grasveld voor de kinderen. Dankzij de flexibele aanpak is bijna alles bespreekbaar. Denk aan een aangebouwde garage met sectionaaldeur, een compleet levensloopbestendige of een uitbouw. Alle deuren en ramen zijn standaard voorzien van deugdelijk hang- en sluitwerk conform de eisen van het Politiekeurmerk Veilig Wonen. Er zijn veel standaard opties aanwezig, neem hiervoor gerust contact op met onze flexibele makelaars!

De opgegeven perceelgroottes zijn indicatief en dienen nog kadastraal te worden ingemeten (na de sloop van de bestaande woning):
-Linker halfvrijstaande woning (bouwnummer 1): koopsom vanaf: € 450.000 v.o.n., inclusief btw en Bouwgarant, ca. 534m² perceeloppervlakte VERKOCHT o.v.
-Midden halfvrijstaande woning (bouwnummer 2): koopsom vanaf: € 425.000 v.o.n., inclusief btw en Bouwgarant, ca. 452m² perceeloppervlakte VERKOCHT o.v.
-Midden halfvrijstaande woning (bouwnummer 3): koopsom vanaf: € 425.000 v.o.n., inclusief btw en Bouwgarant, ca. 452m² perceeloppervlakte VERKOCHT o.v.
-Rechter halfvrijstaande woning (bouwnummer 4): koopsom vanaf: € 465.000 v.o.n., inclusief btw en Bouwgarant, ca. 565m² perceeloppervlakte

Alle opgegeven oppervlakten zijn indicatieve afmetingen, gemeten vanaf de binnenzijde van de muren (conform de NEN2580-norm voor gebruiksoppervlakte). Ze zijn louter indicatief, aangezien de woningen nog moeten worden gebouwd en er interpretatieverschillen kunnen optreden tijdens de uitvoering, maar ook door de vele optiemogelijkheden. Dit geldt ook voor de impressies intern en extern, aan deze impressies kunnen geen rechten ontleend worden.

Zie jij jezelf hier al wonen? Maak je woondroom werkelijkheid met project FIER. Neem vandaag nog contact op met onze Flexibele Makelaars en ontdek alle mogelijkheden voor jouw nieuwe thuis in het Westerkwartier aan de groene Drachtsterweg in Opende!

Kenmerken

Soort Eengezinswoning, Halfvrijstaande woning
Koopsom Prijs op aanvraag
Aangeboden 2 maanden geleden
Status Verkocht onder voorbehoud
Aanvaarding In overleg

Bekijk alle kenmerken...

Interesse?

Vraag een bezichtiging aan

Bekijk de omgeving

Ontdek de ligging van deze woning

Alle kenmerken

Bouw

Bouwvorm Nieuwbouw
Bouwjaar 2025
Bouwjaar omschrijving Nieuwbouw
Onderhoud (binnen) Uitstekend
Toelichting Nieuwbouw
Onderhoud (buiten) Uitstekend
Toelichting Nieuwbouw
Dak Samengesteld dak
Dak materialen Pannen, Bitumineuze dakbedekking
Dak toelichting Hoofd dak pannen, uitbouwen bitumen

Buitenruimte

Ligging Aan rustige weg, In centrum, In woonwijk, Vrij uitzicht, Open ligging
Tuin Achtertuin, Voortuin, Zijtuin (AAN_TE_LEGGEN)
Tuin oppervlakte 565 m²
Achtertuin 275 m² (24.28m diep en 11.59m breed)
Ligging Gelegen op ZUIDOOST (bereikbaar via achterom)
Parkeren Openbaar parkeren, Op eigen terrein, Op afgesloten terrein
Parkeren Ruim voldoende parkeergelegenheid

Garage

Garage soort Aangebouwd (steen), Garage mogelijk, Parkeerplaats
Voorzieningen Verwarming, Elektra, Water, Elektrische deur
Isolatie Dakisolatie, Muurisolatie, Vloerisolatie, Volledig geïsoleerd
Oppervlakte 18 m² (6.5m diep en 3.32m breed)
Capaciteit 1 auto(s)
Aantal 1

Energie

Energielabel A+++
Einddatum 2025-06-20
Isolatie Dakisolatie, Muurisolatie, Vloerisolatie, Dubbel glas, Volledig geïsoleerd, HR-glas
Verwarming Vloerverwarming (geheel), Warmtepomp
Warm water Centrale voorziening

Indeling

Woonlagen 3 woonlagen
Kamers 5 kamers, waarvan 4 slaapkamers
Badkamers 2 badkamer(s) en 1 aparte toilet(ten)
Badkamervoorzieningen Wastafel, Ligbad, Zitbad, Douche, Urinoir, Bidet, Stoomcabine, Jacuzzi, Dubbele wastafel, Wastafelmeubel, Inloopdouche, Vloerverwarming, Whirlpool, Sauna, Toiletten 2
Voorzieningen Mechanische ventilatie, TV-kabel, Glasvezelkabel, Zonnepanelen, Natuurlijke ventilatie

Oppervlakken en inhoud

Perceeloppervlakte 565 m²
Woonoppervlakte 113 m²
Overige ruimten 49 m²
Inhoud 534 m³

Schuur / berging

Schuur / berging soort Aangebouwd (steen)
Voorzieningen Voorzien van verwarming, Voorzien van elektra, Voorzien van water
Isolatie Dakisolatie, Muurisolatie, Vloerisolatie, Dubbel glas, Volledig geïsoleerd
Aantal 1

Bestemming

Huidig gebruik Woonruimte
Huidige bestemming Woonruimte
Permanente bewoning Ja

Kadaster WESTERKWARTIER C 5617

Oppervlakte 565 m²
Omvang Deelperceel

Vergelijkbaar in de buurt

...