Menu
Dubelspul 10 Surhuisterveen - Hoofdafbeelding.jpg
A

Tonen op kaart

Brochure

Verkocht: Dubelspul 10, Surhuisterveen

Surhuisterveen Dubelspul 10

86 m² woonoppervlakte

152 m² perceeloppervlakte

4 kamers, waarvan 3 slaapkamers

Verkocht

Geïnteresseerd in dit object?

Vraag eenvoudig een bezichtiging aan!

Interesse in woning

Omschrijving

Deze instapklare tussenwoning staat in een rustige, kindvriendelijke wijk op loopafstand van het levendige centrum van Surhuisterveen. Je woont hier in een fijne, jonge buurt zonder doorgaand verkeer en met alle voorzieningen binnen handbereik. De woning is gebouwd in 2012 en vanaf het begin voorzien van diverse opties, zoals een dakkapel, een bijkeuken en openslaande deuren naar de zonnige achtertuin op het zuiden. Dankzij het hoge afwerkingsniveau is de woning direct te betrekken. Alles voelt verzorgd en compleet aan, waardoor je je hier meteen thuis zult voelen.

Het energielabel A zegt het al: dit huis is bijzonder energiezuinig. Je profiteert van goede isolatie, een warmteterugwinsysteem, comfortabele heteluchtverwarming en 8 zonnepanelen (geplaatst in 2023).

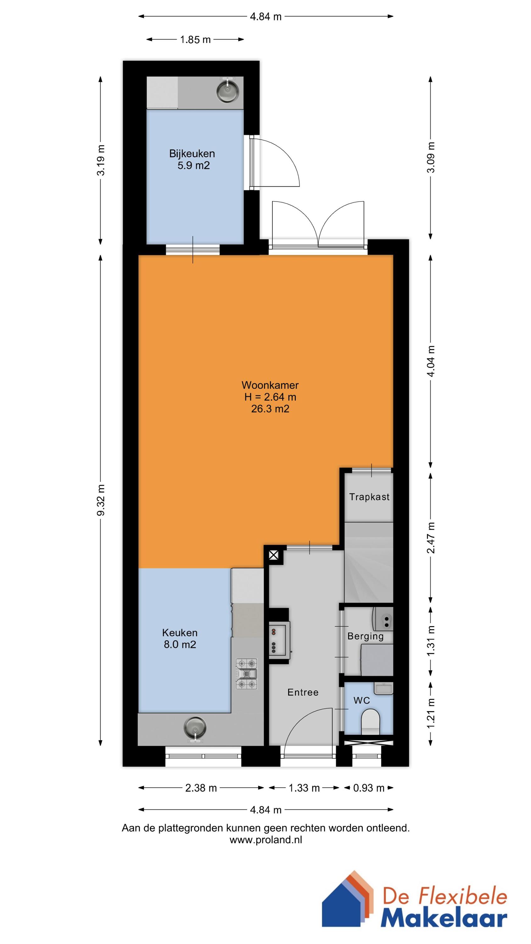
Begane grond:
Binnen stap je via een overkapte entree in de ruime hal met toilet en een praktische wasruimte. De woonkamer van ongeveer 26 m² is licht en heeft dubbele openslaande deuren naar de onderhoudsvriendelijke tuin. Hierdoor lopen binnen en buiten op een natuurlijke manier in elkaar over. De moderne open keuken van ca. 8 m² is uitgerust met diverse inbouwapparatuur. Daarnaast is er een bijkeuken van ca. 6 m² met extra keukenopstelling en een achterentree.

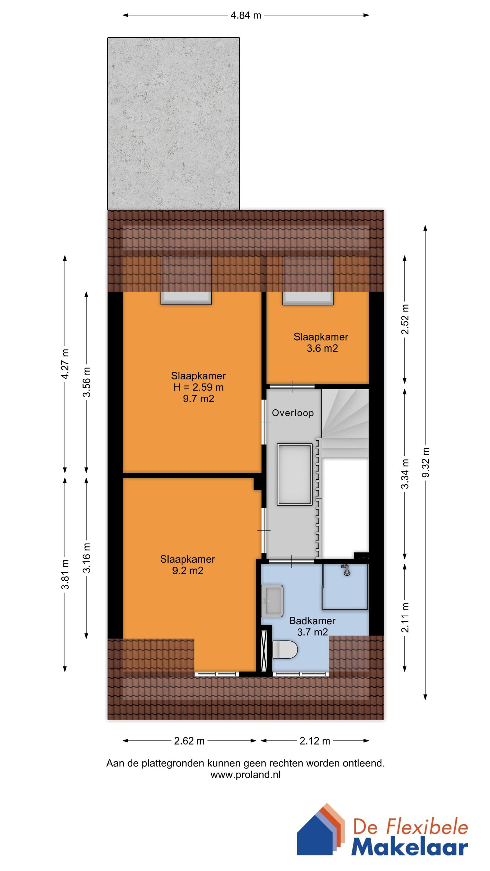
1e etage:
Op de eerste verdieping vind je drie slaapkamers en een nette badkamer met inloopdouche, wastafel en wandcloset.

2e etage:
De tweede verdieping is bereikbaar via een vlizotrap en biedt extra bergruimte en de opstelling van het warmteterugwinsysteem.

Buiten:
Ook buiten is alles keurig verzorgd. Zowel de voor- als achtertuin zijn onderhoudsvriendelijk aangelegd. De achtertuin is gericht op het zuiden en biedt door de beschutte ligging en het vrije uitzicht veel privacy. Achterin de tuin staat een houten berging en is er een praktische achterom.

Ligging:
De woning ligt aan een rustig hofje zonder verkeer voor de deur. Aan de achterzijde is er voldoende openbare parkeergelegenheid, ideaal voor jou en je bezoekers. Surhuisterveen is een levendig dorp met meer dan 100 winkels, gezellige horeca en uitstekende voorzieningen op het gebied van onderwijs, zorg en sport. Dankzij de centrale ligging tussen Groningen, Heerenveen en Leeuwarden ben je snel onderweg naar de stad, terwijl je thuis geniet van de rust.

Ben je op zoek naar een comfortabele woning waar je zo in kunt? Maak dan snel een afspraak voor een bezichtiging met een van onze flexibele makelaars bij Dubelspul 10 in Surhuisterveen.

Kenmerken

Soort Eengezinswoning, Tussenwoning
Vraagprijs Prijs op aanvraag
Aangeboden 8 maanden geleden
Status Verkocht
Aanvaarding In overleg

Bekijk alle kenmerken...

Interesse?

Vraag een bezichtiging aan

Bekijk de omgeving

Ontdek de ligging van deze woning

Alle kenmerken

Bouw

Bouwvorm Bestaande bouw
Bouwjaar 2012
Bouwjaar omschrijving Bouwjaar volgens BAG
Onderhoud (binnen) Goed tot uitstekend
Toelichting In 2012 gebouwd en keurig onderhouden.
Onderhoud (buiten) Goed tot uitstekend
Toelichting In 2012 gebouwd en keurig onderhouden.
Dak Zadeldak
Dak materialen Pannen
Dak toelichting Met pannen gedekt zadeldak.

Buitenruimte

Ligging Aan rustige weg, In woonwijk
Tuin Achtertuin, Voortuin (VERZORGD)
Tuin oppervlakte 81 m²
Achtertuin 67 m² (16m diep en 5.53m breed)
Ligging Gelegen op ZUID (bereikbaar via achterom)
Parkeren Openbaar parkeren
Parkeren voldoende parkeergelegenheid in de parkeerhavens.

Energie

Energielabel A
Einddatum 2027-05-28
Isolatie Dakisolatie, Muurisolatie, Vloerisolatie, Volledig geïsoleerd
Verwarming CV-ketel
Warm water CV-ketel
C.V.-ketel Intergas HR combiketel. Gas gestookte combiketel uit 2012 eigendom

Oppervlakken en inhoud

Perceeloppervlakte 152 m²
Woonoppervlakte 86 m²
Overige ruimten 9 m²
Inhoud 355 m³
Oppervlakte externe bergruimte 12 m²

Indeling

Woonlagen 3 woonlagen
Kamers 4 kamers, waarvan 3 slaapkamers
Badkamers 1 badkamer(s) en 1 aparte toilet(ten)
Badkamervoorzieningen Toilet, Douche, Wastafel
Voorzieningen Mechanische ventilatie, TV-kabel, Dakraam, Glasvezelkabel, Zonnepanelen, Balansventilatie

Schuur / berging

Schuur / berging soort Vrijstaand (hout)
Voorzieningen Voorzien van elektra
Isolatie Geen isolatie
Aantal 1

Bestemming

Huidig gebruik Woonruimte
Huidige bestemming Woonruimte
Permanente bewoning Ja

Kadaster SURHUIZUM C 6420

Oppervlakte 152 m²
Omvang Geheel perceel

Garage

Garage soort Geen garage

Vergelijkbaar in de buurt

...