Menu
Eekebuursterweg 50 Oldekerk - Hoofdafbeelding.jpg
F

Tonen op kaart

Verkocht: Eekebuursterweg 50, Oldekerk

Oldekerk Eekebuursterweg 50

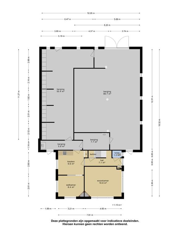
86 m² woonoppervlakte

26.550 m² perceeloppervlakte

5 kamers, waarvan 3 slaapkamers

Verkocht

Geïnteresseerd in dit object?

Vraag eenvoudig een bezichtiging aan!

Interesse in woning

Omschrijving

Deze woonboerderij met vrijstaande schuurruimte en weilanden is gelegen op een perceel van maar liefst 26.550 m2 net buiten de dorpskern van Oldekerk en grenst aan de Kuzemerkooi. Een prachtig ingericht gebied van ca. 10 hectare voor ontspanning, natuur en recreatie.

De fotoserie die u hierbij aantreft is geplaatst om u een indruk te geven van de aanwezige opstallen op het perceel.

UPDATE 18-07-2022: Deze woonboerderij krijgt op korte termijn een volledige woonbestemming!!
Door dit goede nieuws zijn de onderstaande regelingen zijn niet meer van toepassing!

Na aankoop van het perceel dient u bij de Gemeente Westerkwartier een (nieuw)bouwplan in te dienen en een woonbestemming aan te vragen. In het huidige bestemmingsplan heeft het een woonbestemming maar met de beperking dat het een bijgebouw is. U kunt binnen de geldende bestemming het gebouw dus alleen gebruiken als bijgebouw met een mogelijkheid tot wonen (exploitatie).

Deze prachtige locatie is uitermate geschikt voor het hebben van ruimte vragende hobby's en biedt u de mogelijkheid om uw droomwoning te realiseren.

Oldekerk en het aangelegen dorp Niekerk bieden u goede voorzieningen, met onder andere een supermarkt, basisscholen, voortgezet onderwijs, een slagerij, bloemenwinkel, een café met snackbar, sportverenigingen, het sportcomplex Eekeburen met een overdekt zwembad en een sporthal, een rijk verenigingsleven en goed openbaar vervoer. Daarnaast heeft het een gunstige ligging ten opzichte van de snelweg A7.

Kortom; een heerlijke plek om te wonen in een landelijke setting met alle voorzieningen bij de hand. Is uw interesse voor deze locatie gewekt? Maak dan een afspraak om de mogelijkheden te bekijken.

Kenmerken

Soort Woonboerderij, Vrijstaande woning
Vraagprijs Prijs op aanvraag
Aangeboden 3 jaar geleden
Status Verkocht
Aanvaarding In overleg

Bekijk alle kenmerken...

Interesse?

Vraag een bezichtiging aan

Bekijk de omgeving

Ontdek de ligging van deze woning

Alle kenmerken

Bouw

Bouwvorm Bestaande bouw
Bouwjaar 1960
Bouwjaar omschrijving 1960, Volgens BAG
Onderhoud (binnen) Redelijk
Toelichting De binnenzijde verkeert in redelijke staat van onderhoud.
Onderhoud (buiten) MATIG
Toelichting De buitenzijde verkeert in matige staat van onderhoud.
Dak Schilddak
Dak materialen Asbest, Pannen
Dak toelichting Het dak is deels gedekt met pannen en asbesthoudende beplating.

Energie

Energielabel F
Einddatum 2032-06-27
Isolatie Gedeeltelijk dubbel glas
Verwarming CV-ketel
Warm water CV-ketel
C.V.-ketel HR combiketel Gas gestookte combiketel uit 1999 eigendom

Indeling

Woonlagen 4 woonlagen
Kamers 5 kamers, waarvan 3 slaapkamers
Badkamers 1 badkamer(s) en 1 aparte toilet(ten)
Badkamervoorzieningen Toilet, Wastafel
Voorzieningen Natuurlijke ventilatie

Buitenruimte

Ligging Aan drukke weg, Vrij uitzicht, Open ligging, Buiten bebouwde kom, Landelijk gelegen
Tuin Tuin rondom (NORMAAL)
Tuin oppervlakte 1.150 m²
Ligging Gelegen op (bereikbaar via achterom)
Parkeren Openbaar parkeren, Op eigen terrein

Oppervlakken en inhoud

Perceeloppervlakte 26.550 m²
Woonoppervlakte 86 m²
Overige ruimten 162 m²
Inhoud 1.098 m³

Bestemming

Huidig gebruik Woonruimte
Huidige bestemming Woonruimte
Permanente bewoning Ja

Schuur / berging

Schuur / berging soort Vrijstaand (steen)
Isolatie Geen isolatie
Aantal 2

Kadaster OLDEKERK C 1136

Oppervlakte 1.450 m²
Omvang Geheel perceel

Garage

Garage soort Geen garage

Vergelijkbaar in de buurt

...