Menu
Eesterweg 33 Doezum - Hoofdafbeelding.jpg
A

Tonen op kaart

Brochure

Verkocht: Eesterweg 33, Doezum

Doezum Eesterweg 33

147 m² woonoppervlakte

810 m² perceeloppervlakte

5 kamers, waarvan 4 slaapkamers

Verkocht

Geïnteresseerd in dit object?

Vraag eenvoudig een bezichtiging aan!

Interesse in woning

Omschrijving

Landelijk uitzicht en levensloopbestendig wonen in de dorpskom, met een prachtig weids uitzicht over de aangrenzende weilanden vanuit de voortuin. Deze aantrekkelijke combinatie vind je bij deze vrijstaande woning met aangebouwde garage en royale vrijstaande stenen garage met overkapping, gelegen op een royaal perceel van 810m².

Deze energiezuinige woning, traditioneel gebouwd in 1994, is volledig geïsoleerd en voorzien van dubbele beglazing. De woning wordt verwarmd door een HR-combiketel van Nefit uit 2007 in combinatie met radiatoren. Daarnaast zorgen 14 zonnepanelen voor het prachtige energielabel A.

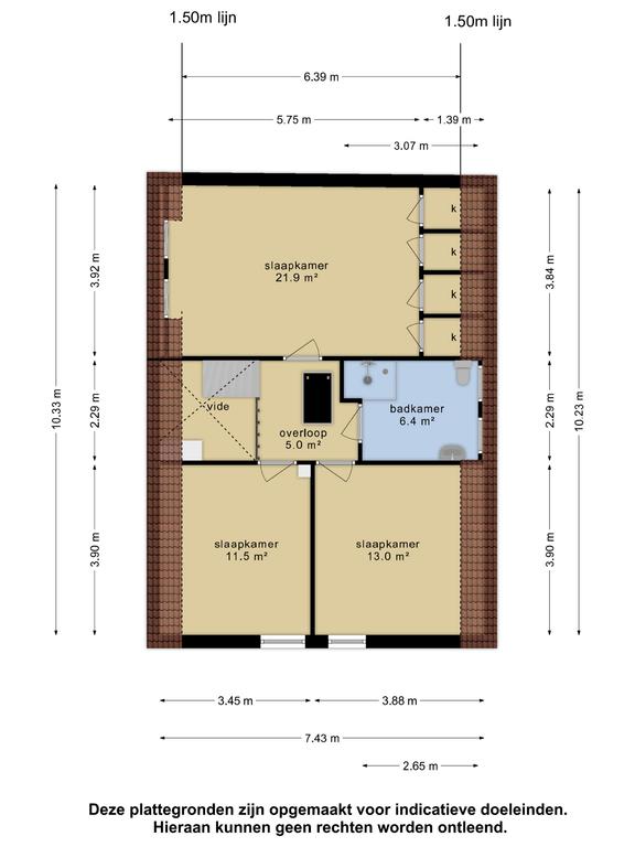
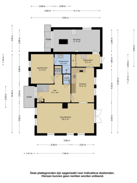
De indeling van de woning is als volgt: Bij binnenkomst stap je in een ruime hal met toilet, kelder, meterkast en trapopgang. De lichte woonkamer van ongeveer 29 m² heeft openslaande deuren naar de tuin. De woonkeuken is voorzien van een moderne keukenopstelling met inbouwapparatuur. Daarnaast is er een bijkeuken met witgoedaansluitingen, een achterentree en een toegang naar de aangebouwde garage. Deze aangebouwde garage van circa 18 m² heeft een cv-opstelling en zolderruimte. Vanuit de hal zijn ook een slaapkamer en een badkamer met wasmeubel en douche bereikbaar.

Op de eerste verdieping vind je een overloop met aansluitend drie ruime slaapkamers en een badkamer met wasmeubel, wandcloset en inloopdouche. De tweede verdieping biedt een grote zolderruimte die toegankelijk is via een vlizotrap.

Buiten geniet je van een ruim perceel van 810 m². De tuin is onderhoudsvriendelijk ingericht met een terras achter de woning, een groot gazon en fraaie beplantingen. Het geheel wordt omsloten door een grote haag, waardoor je optimaal van je privacy en het buitenleven kunt genieten. Achter het woonhuis staat de in spouw gemetselde garage van 26 m² met zolderverdieping en aan de voorzijde een overkapping van circa 21 m². De bestrate oprit biedt ruim voldoende parkeergelegenheid op eigen terrein.

De woning is gelegen aan de rand van het dorp Doezum, een actief dorp in de gemeente Het Westerkwartier. Op korte afstand vind je een basisschool, openbaar vervoer, sportaccommodatie en een openluchtzwembad. Voor een uitgebreid winkelaanbod kun je terecht in het nabijgelegen dorp Grootegast. De snelweg A7 (Groningen-Drachten-Heerenveen) is binnen 10 autominuten bereikbaar.

Is je interesse voor deze prachtige woning gewekt? Maak dan een afspraak voor een bezichtiging. Onze flexibele makelaars laten je de vrijheid en degelijkheid van de Eesterweg 33 in Doezum graag beleven!

Kenmerken

Soort Eengezinswoning, Vrijstaande woning
Vraagprijs Prijs op aanvraag
Aangeboden 1 jaar geleden
Status Verkocht
Aanvaarding In overleg

Bekijk alle kenmerken...

Interesse?

Vraag een bezichtiging aan

Bekijk de omgeving

Ontdek de ligging van deze woning

Alle kenmerken

Bouw

Bouwvorm Bestaande bouw
Bouwjaar 1994
Bouwjaar omschrijving Volgens BAG
Onderhoud (binnen) Goed
Toelichting Het woonhuis is goed onderhouden.
Onderhoud (buiten) Goed
Toelichting Het woonhuis is goed onderhouden.
Dak Samengesteld dak
Dak materialen Pannen
Dak toelichting Het dak is gedekt met pannen.

Energie

Energielabel A
Einddatum 2030-08-17
Isolatie Dakisolatie, Muurisolatie, Vloerisolatie, Dubbel glas, Volledig geïsoleerd
Verwarming CV-ketel
Warm water CV-ketel
C.V.-ketel HR combi Nefit Gas gestookte combiketel uit 2007 eigendom

Oppervlakken en inhoud

Perceeloppervlakte 810 m²
Woonoppervlakte 147 m²
Overige ruimten 28 m²
Inhoud 648 m³
Oppervlakte externe bergruimte 26 m²
Gebouwgebonden buitenruimte 7 m²

Buitenruimte

Ligging Aan rustige weg, In woonwijk, Vrij uitzicht
Tuin Tuin rondom (NORMAAL)
Tuin oppervlakte 545 m²
Ligging Gelegen op (bereikbaar via achterom)
Parkeren Openbaar parkeren, Op eigen terrein
Parkeren Voldoende parkeergelegenheid op eigen terrein

Garage

Garage soort Aangebouwd (steen)
Voorzieningen Elektra, Vliering
Isolatie Dakisolatie, Muurisolatie
Oppervlakte 18 m² (6.11m diep en 2.9m breed)
Capaciteit 1 auto(s)
Aantal 2

Indeling

Woonlagen 4 woonlagen
Kamers 5 kamers, waarvan 4 slaapkamers
Badkamers 2 badkamer(s) en 1 aparte toilet(ten)
Badkamervoorzieningen Toilet, Wastafel, Wastafelmeubel, Douches 2
Voorzieningen Mechanische ventilatie, TV-kabel

Bestemming

Huidig gebruik Woonruimte
Huidige bestemming Woonruimte
Permanente bewoning Ja

Kadaster GROOTEGAST H 2381

Oppervlakte 798 m²
Omvang Geheel perceel

Vergelijkbaar in de buurt

...