Menu
Fabriekslaan 115 Drachten - Hoofdafbeelding.jpg
D

Tonen op kaart

Brochure

Verkocht: Fabriekslaan 115, Drachten

Drachten Fabriekslaan 115

103 m² woonoppervlakte

208 m² perceeloppervlakte

4 kamers, waarvan 3 slaapkamers

Verkocht

Geïnteresseerd in dit object?

Vraag eenvoudig een bezichtiging aan!

Interesse in woning

Omschrijving

Ben je op zoek naar een woning die meer te bieden heeft dan je op het eerste gezicht zou denken? Deze verzorgde 2-onder-1-kap-woning in een rustige wijk van Drachten zal je verrassen! Niet alleen ligt het op loopafstand van het bruisende centrum met alle voorzieningen, maar het biedt ook volop ruimte, zowel binnen als buiten. De royale achtertuin met zonneterras en overdekt terras is een heerlijke plek om het hele jaar door te ontspannen. En de praktische bergingen zorgen voor extra gemak.

Wat kun je verwachten?

Begane grond
Bij binnenkomst stap je vanuit de hal in de sfeervolle woonkamer van ca. 20m² met een mooie pvc vloer en balkenplafond. De aansluitende eetkamer en keuken (samen bijna 21m²) zijn licht en ruim, met een moderne keuken (uit 2015) inclusief alle gemakken, zoals een 5-pits fornuis met oven, afzuigkap, magnetron, koelkast, vaatwasser, Quooker en marmeren werkblad. Je hebt ook een handige provisiekelder, bijkeuken, toilet en een stijlvolle badkamer (2012) met inloopdouche en verwarmde spiegels.

Eerste verdieping
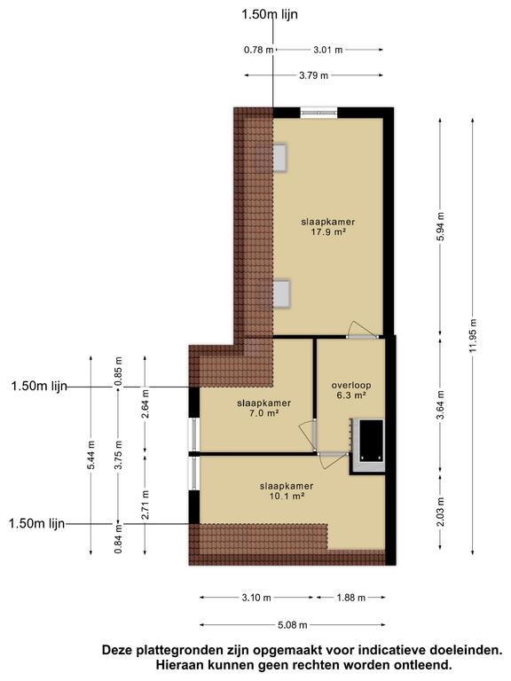
Hier vind je drie slaapkamers (ca. 7m², 10m² en 18m²), waarvan de grootste voorzien is van een vaste kast. De overloop heeft een lichtkoepel die zorgt voor extra daglicht.

Tweede verdieping
Via een vlizotrap bereik je de zolderberging, ideaal voor extra opslagruimte.

Buiten
De voortuin is onderhoudsvriendelijk en de diepe achtertuin biedt volop privacy. Dankzij het zonneterras en het overdekte terras met glaswanden kun je hier in elk seizoen genieten. En hoewel de tuin op het noorden ligt, zorgen de diepte en ligging voor genoeg zonuren. Voor extra opslag zijn er twee houten bergingen aanwezig.

Daarnaast heeft de woning een perceel van 208 m², is voorzien van isolatieglas, muur- en dakisolatie en wordt centraal verwarmd. Het schilderwerk aan de buitenkant is recent (2022/2024) gedaan, dus hier hoef je je geen zorgen over te maken. Parkeren? Geen probleem, er is voldoende ruimte in de rustige straat.

Je woont hier op steenworp afstand van het centrum van Drachten, met alles wat je nodig hebt binnen handbereik: winkels, horeca, supermarkten en openbaar vervoer. Bovendien ben je via de snelwegen snel in steden zoals Groningen, Heerenveen en zelfs Amsterdam.

Is je interesse gewekt? Maak dan snel een afspraak voor een bezichtiging. Onze enthousiaste makelaars staan voor je klaar om je deze instapklare woning aan de Fabriekslaan 115 te Drachten te laten zien!

Kenmerken

Soort Eengezinswoning, Twee-onder-een-kapwoning
Vraagprijs Prijs op aanvraag
Aangeboden 1 jaar geleden
Status Verkocht
Aanvaarding In overleg

Bekijk alle kenmerken...

Interesse?

Vraag een bezichtiging aan

Bekijk de omgeving

Ontdek de ligging van deze woning

Alle kenmerken

Bouw

Bouwvorm Bestaande bouw
Bouwjaar 1932
Bouwjaar omschrijving Gebouwd in 1932, recenter uitgebouwd/gerenoveerd.
Onderhoud (binnen) Goed
Toelichting Goed onderhouden staat
Onderhoud (buiten) Goed
Toelichting Goed onderhouden staat
Dak Zadeldak
Dak materialen Pannen

Buitenruimte

Ligging Aan rustige weg, In woonwijk
Tuin Achtertuin, Voortuin, Zijtuin, Zonneterras (VERZORGD)
Tuin oppervlakte 145 m²
Achtertuin 72 m² (11.26m diep en 6.36m breed)
Ligging Gelegen op NOORD (bereikbaar via achterom)
Parkeren Openbaar parkeren
Parkeren Voldoende parkeergelegenheid aanwezig.

Energie

Energielabel D
Einddatum 2027-10-22
Isolatie Dakisolatie, Muurisolatie, Dubbel glas
Verwarming CV-ketel
Warm water CV-ketel
C.V.-ketel AWB HR ketel Gas gestookte combiketel uit 2003 eigendom

Indeling

Woonlagen 3 woonlagen
Kamers 4 kamers, waarvan 3 slaapkamers
Badkamers 1 badkamer(s) en 1 aparte toilet(ten)
Badkamervoorzieningen Douche, Dubbele wastafel, Wastafelmeubel, Inloopdouche
Voorzieningen Buitenzonwering, Natuurlijke ventilatie

Oppervlakken en inhoud

Perceeloppervlakte 208 m²
Woonoppervlakte 103 m²
Inhoud 369 m³
Oppervlakte externe bergruimte 26 m²

Bestemming

Huidig gebruik Woonruimte
Huidige bestemming Woonruimte
Permanente bewoning Ja

Schuur / berging

Schuur / berging soort Aangebouwd (hout)
Voorzieningen Voorzien van elektra
Aantal 2

Kadaster DRACHTEN C 5869

Oppervlakte 208 m²
Omvang Geheel perceel

Garage

Garage soort Geen garage

Vergelijkbaar in de buurt

...