Menu
Folgerster Loane 72 Drachtstercompagnie - Hoofdafbeelding.jpg
F

Tonen op kaart

Verkocht: Folgerster Loane 72, Drachtstercompagnie

Drachtstercompagnie Folgerster Loane 72

82 m² woonoppervlakte

553 m² perceeloppervlakte

3 kamers, waarvan 2 slaapkamers

Verkocht

Geïnteresseerd in dit object?

Vraag eenvoudig een bezichtiging aan!

Interesse in woning

Omschrijving

Bent u op zoek naar een historische, landelijk gelegen locatie, maar toch op zeer korte afstand van alle voorzieningen van Drachten? Dan past de Folgster Loane 72 te Drachtstercompagnie perfect in uw straatje! Deze sfeervolle, karakteristieke vrijstaande woning heeft zowel aan de voor- als aan de achterzijde een vrij uitzicht over de weilanden én is gelegen op maar liefst 553 m² eigen grond.

U kunt volop genieten van de natuur en de privacy om u heen! Vanuit de woonkamer kunt u genieten van het weidse uitzicht, maar ook vanuit de achtertuin kunt u dagdromen door het al het groen.

Een ruime achtertuin; dat is een understatement. De achtertuin is maar liefst ca. 60 meter diep en grenzend aan de weilanden. In 2018 is er een prachtige, luxe vrijstaande schuur met betonvloer, zolder en een keurige overkapping gerealiseerd.

De woning is gebouwd in 1957 en draagt het karakteristieke uiterlijk met prachtige gevel- en glas-in-lood-elementen nog steeds met zich mee. De woning is samen met de Folgerster Loane 70, 74 en 76 als karakteristieke eenheid opgenomen als gemeentemonument. Renoveren met subsidie behoort dus tot de mogelijkheden!

De woning is in de afgelopen jaren keurig onderhouden en vrijwel geheel gerenoveerd en gemoderniseerd. Ook is er in de woning muurisolatie, dak/plafondisolatie en vloerisolatie aanwezig en is de woning vrijwel geheel voorzien van dubbele beglazing en vernieuwde kozijnen. De woning wordt centraal verwarmd middels een Remeha c.v.-combiketel uit 2014. Tevens is het elektrisch vrijwel geheel vernieuwd.

Begane grond:
Hal/entree met meterkast; halfopen keuken; open, ruime woonkamer met woonkeuken; bijkeuken met witgoedaansluiting; toiletruimte met wandcloset; vernieuwde badkamer met wastafel, wastafelmeubel en inloopdouche.

Eerste verdieping:
Overloop; met ruime bergruimte achter overloopkast; sfeervolle ouderslaapkamer met vaste kastenwand en een 2e slaapkamer.

Tweede etage:
Via vlizotrap te bereiken bergzolder.

Over de historie van de woning:
Gelegen in het buurtschap Luchtenveld aan de Folgerster Loane is deze kerk (Jezus Leeft) met pastorie, begraafplaats en 2 woningen gelegen. Al sinds 1928 een absoluut bijzonder geheel.

Helaas is het eerste kerkje met rieten kap ooit afgebrand in 1932. Het nieuwe kerkje werd echter gebouwd met pannendak. Achter het kerkje ligt een kleine begraafplaats met een oud stenen baarhuisje. Naast de kerk staat de pastorie (Huize Vrede). De woningen ernaast werden bewoond door de familie en hebben meerdere bestemmingen gekend.

Over het dorp en de omgeving:
Drachtstercompagnie; hier is het écht sfeervol wonen met haar actieve verenigingsleven, natuur en de authentieke dorpskern. Dichtbij Drachten; dat ook zeer zeker, maar dan wel nabij alle voorzieningen. Aan het einde van de straat zit u namelijk al in Drachten.

Drachten is de op 2 na grootste plaats qua inwonersaantallen van Friesland. Drachten is de plaats waar u alle voorzieningen zoals vele soorten scholen, meerdere uitgebreide winkelcentra met vele horeca en een uitgebreide keuze van sportclubs vindt. Ook een filmpje pakken bij de bioscoop of een voorstelling bijwonen in een schouwburg is allemaal mogelijk in Drachten.

Bent u toe aan de volgende stap in de woningmarkt? Neem dan nu contact met ons op voor een bezichtiging!

Kenmerken

Soort Eengezinswoning, Vrijstaande woning
Vraagprijs Prijs op aanvraag
Aangeboden 4 jaar geleden
Status Verkocht
Aanvaarding In overleg

Bekijk alle kenmerken...

Interesse?

Vraag een bezichtiging aan

Bekijk de omgeving

Ontdek de ligging van deze woning

Alle kenmerken

Bouw

Bouwvorm Bestaande bouw
Bouwjaar 1957
Onderhoud (binnen) Goed tot uitstekend
Toelichting Het onderhoud binnen is goed onderhouden
Onderhoud (buiten) Goed tot uitstekend
Toelichting Het onderhoud buiten is goed onderhouden
Dak Zadeldak
Dak materialen Pannen, Bitumineuze dakbedekking
Dak toelichting Dit zadeldak bestaat uit pannen en een bitumineuze dakbedekking

Buitenruimte

Ligging Aan bosrand, Aan rustige weg, Vrij uitzicht, Open ligging, Buiten bebouwde kom, In bosrijke omgeving, Landelijk gelegen
Tuin Achtertuin, Voortuin (VERZORGD)
Tuin oppervlakte 400 m²
Achtertuin 300 m² (61.5m diep en 7.75m breed)
Ligging Gelegen op ZUIDOOST (bereikbaar via achterom)
Parkeren Openbaar parkeren, Op eigen terrein
Parkeren Er is op eigen terrein parkeergelegenheid, alsmede een parkeermogelijkheid voor de woning.

Energie

Energielabel F
Einddatum 2031-05-24
Isolatie Dakisolatie, Muurisolatie, Vloerisolatie, Dubbel glas, Grotendeels dubbel glas
Verwarming CV-ketel
Warm water CV-ketel
C.V.-ketel Rehema Gas gestookte combiketel uit 2014 eigendom

Oppervlakken en inhoud

Perceeloppervlakte 553 m²
Woonoppervlakte 82 m²
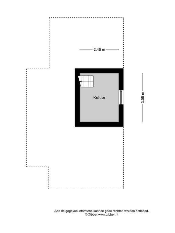
Overige ruimten 8 m²
Inhoud 331 m³
Oppervlakte externe bergruimte 29 m²
Gebouwgebonden buitenruimte 7 m²

Indeling

Woonlagen 4 woonlagen
Kamers 3 kamers, waarvan 2 slaapkamers
Badkamers 1 badkamer(s) en 1 aparte toilet(ten)
Badkamervoorzieningen Douche, Wastafel, Wastafelmeubel, Inloopdouche
Voorzieningen TV-kabel

Schuur / berging

Schuur / berging soort Vrijstaand (hout)
Voorzieningen Met vliering
Isolatie Geen isolatie
Aantal 1

Bestemming

Huidig gebruik Woonruimte
Huidige bestemming Woonruimte
Permanente bewoning Ja

Kadaster DRACHTEN B 7541

Oppervlakte 553 m²
Omvang Geheel perceel

Garage

Garage soort Geen garage

Vergelijkbaar in de buurt

...