Menu
G.P.Beukemalaan 69 Grootegast - Hoofdafbeelding.jpg
F

Tonen op kaart

Verkocht: G.P.Beukemalaan 69, Grootegast

Grootegast G.P.Beukemalaan 69

108 m² woonoppervlakte

410 m² perceeloppervlakte

6 kamers, waarvan 3 slaapkamers

Verkocht

Geïnteresseerd in dit object?

Vraag eenvoudig een bezichtiging aan!

Interesse in woning

Omschrijving

Op zoek naar een fraai gelegen vrijstaand woonhuis met uitbouw en aangebouwde stenen garage op een perceel van 410m²? Dit is uw kans! Op een prachtige zichtlocatie in het Groningse dorp Grootegast staat deze statige en solide woning aan de G.P.Beukemalaan 69, welke eveneens is gelegen op korte afstand van de uitgebreide voorzieningen die Grootegast te bieden heeft.

Het vrijstaande huis, oorspronkelijk gebouwd in 1960 door de huidige eigenaren, beschikt over een gebruiksoppervlakte wonen van 108m², aangevuld met overige inpandige ruimte van 72m², veel potentie dus! Mogelijkheden om gelijkvloers te kunnen wonen zijn er ook: de woning is aan de achterzijde voorzien van een uitbouw met aangebouwde stenen garage welke (deels) omgebouwd zou kunnen worden tot slaap-/ en badkamer, maar ook zeer geschikt is als berg-, klus- of hobbyruimte. De woning wordt verwarmd middels een Nefit combiketel uit 2015.

De indeling van de woning is als volgt:
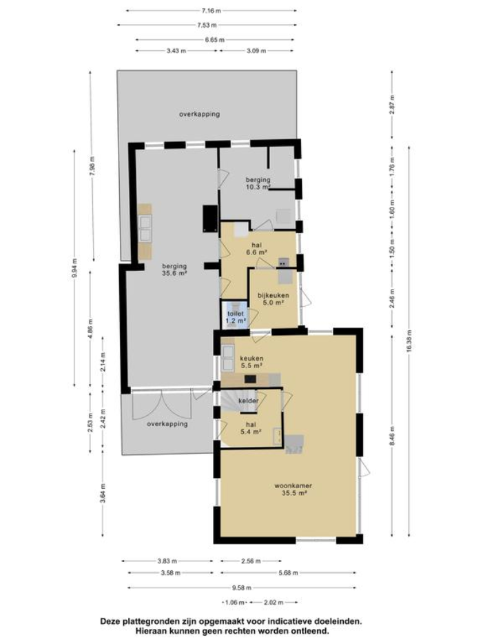
Begane grond:
Zijentree; binnenkomst in de ruime hal met meterkast, trap en kelder; ruime L-vormige woonkamer met houtkachel en uitzicht over de straat; aansluitend de open keuken; bijkeuken met achterentree; toiletruimte met toilet en fontein; hal met CV-opstelling, witgoedaansluitingen en toegang tot de ruime garage/berging met afsluitbare klus-/hobbyruimte.

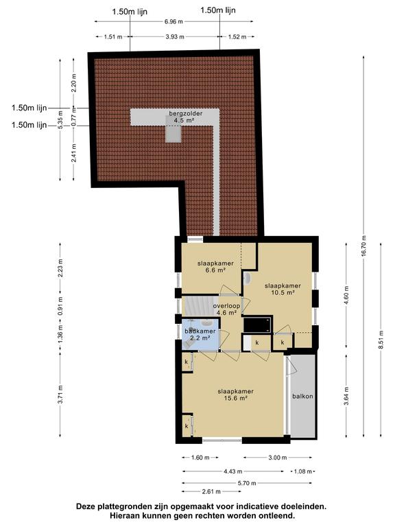
Eerste verdieping:
Via de trap (met traplift, woning wordt zonder traplift opgeleverd) komt men op de eerste verdieping met 3 slaapkamers waarvan 1 van 15,6m² mét zonnig balkon op zuid; ensuite badkamer (eveneens vanaf de overloop bereikbaar) met wastafel(meubel), douche en 2e toilet.

Tweede verdieping:
Op deze verdieping bevinden zich 2 kamers welke via een smalle losse trap bereikbaar zijn. Met enkele aanpassingen zouden deze kamers als slaapkamer/kantoor geschikt kunnen worden.

Buitenom:
De aangebouwde stenen garage is van binnenuit bereikbaar en voorzien van een overkapping (carport) aan de voorzijde waar de auto gedeeltelijk onder geparkeerd kan worden. De garage, welke uitgerust is met elektrisch bedienbare deur en betonnen vloer, gaat halverwege over in een 2e achtergelegen garage. Tevens is er een middels losse trap bereikbare bergzolder.

De ruime beschutte L-vormige achtertuin biedt veel knusse zithoekjes, waaronder één onder een overkapping. De privacyvolle tuin is gelegen op het zuiden en het oosten en biedt dus veel zonuren! De tuin loopt via de zuidkant door naar de voortuin welke is ingericht met siergrind en groen.

Het dorp Grootegast:
Deze woning ligt aan de rand van het dorp. Grootegast is een prachtige woonplaats in het Westerkwartier. Grootegast is van alle gemakken voorzien die bij deze woning vrijwel allemaal op korte afstand gelegen zijn. Zo kent Grootegast een goed openbaar vervoer en voorzieningen zoals winkels, (basis)scholen, horeca, huisartsenpraktijk met apotheek, tandartsen, fysio, het park Notaristuun en sportaccommodaties. Grootegast ligt op de grens van Groningen, Friesland en Drenthe, waardoor de snelweg (A7) op korte afstand gelegen is. Ook binnendoor is bijvoorbeeld Groningen snel te bereiken, ideaal om eventuele files te omzeilen!

Om uw beeld compleet te maken nodigen wij u graag uit voor een bezichtiging! Onze flexibele makelaars laten u de woning graag zien. Neem hiervoor contact met ons op voor een bezichtigingsafspraak.

Kenmerken

Soort Eengezinswoning, Vrijstaande woning
Vraagprijs Prijs op aanvraag
Aangeboden 3 jaar geleden
Status Verkocht
Aanvaarding In overleg

Bekijk alle kenmerken...

Interesse?

Vraag een bezichtiging aan

Bekijk de omgeving

Ontdek de ligging van deze woning

Alle kenmerken

Bouw

Bouwvorm Bestaande bouw
Bouwjaar 1960
Bouwjaar omschrijving De woning is gebouwd in 1960.
Onderhoud (binnen) Redelijk
Toelichting De woning is redelijk goed onderhouden.
Onderhoud (buiten) Redelijk
Toelichting De woning is redelijk goed onderhouden.
Dak Zadeldak
Dak materialen Pannen, Bitumineuze dakbedekking
Dak toelichting De woning is met pannen gedekt. De platte delen zijn van bitumineuze dakbedekking.

Buitenruimte

Ligging Aan park, Aan rustige weg, Vrij uitzicht
Tuin Achtertuin, Voortuin, Zijtuin (NORMAAL)
Tuin oppervlakte 300 m²
Achtertuin 200 m² (8.81m diep en 14.13m breed)
Ligging Gelegen op OOST (bereikbaar via achterom)
Parkeren Openbaar parkeren, Op eigen terrein
Parkeren Er is voldoende parkeergelegenheid.

Energie

Energielabel F
Einddatum 2032-10-31
Isolatie Dakisolatie, Dubbel glas, Gedeeltelijk dubbel glas
Verwarming CV-ketel
Warm water CV-ketel
C.V.-ketel Nefit Gas gestookte combiketel uit 2015 eigendom

Garage

Garage soort Aangebouwd (steen), Carport, Garage met carport
Voorzieningen Elektra, Elektrische deur
Isolatie Geen isolatie
Oppervlakte 35 m² (9.94m diep en 3.83m breed)
Capaciteit 1 auto(s)
Aantal 1

Oppervlakken en inhoud

Perceeloppervlakte 410 m²
Woonoppervlakte 108 m²
Overige ruimten 72 m²
Inhoud 620 m³
Gebouwgebonden buitenruimte 38 m²

Indeling

Woonlagen 4 woonlagen
Kamers 6 kamers, waarvan 3 slaapkamers
Badkamers 1 badkamer(s) en 1 aparte toilet(ten)
Badkamervoorzieningen Toilet, Douche, Wastafel, Wastafelmeubel
Voorzieningen TV-kabel, Dakraam

Schuur / berging

Schuur / berging soort Aangebouwd (steen)
Voorzieningen Voorzien van elektra, Voorzien van water
Isolatie Geen isolatie
Aantal 1

Bestemming

Huidig gebruik Woonruimte
Huidige bestemming Woonruimte
Permanente bewoning Ja

Kadaster GROOTEGAST D 2685

Oppervlakte 410 m²
Omvang Geheel perceel

Vergelijkbaar in de buurt

...