Menu
Ganzingawei 4a Kollumersweach - Hoofdafbeelding.jpg
E

Tonen op kaart

Beschikbaar: Ganzingawei 4a, Kollumersweach

Kollumersweach Ganzingawei 4a

128 m² woonoppervlakte

495 m² perceeloppervlakte

4 kamers, waarvan 3 slaapkamers

Levensloopbestendig vrijstaand huis met grote tuin en garage

€ 385.000

k.k.

Beschikbaar

Geïnteresseerd in dit object?

Vraag eenvoudig een bezichtiging aan!

Interesse in woning

Omschrijving

Op een rustige en groene locatie in Kollumersweach staat deze vrijstaande woning aan de Ganzingawei 4A. Het huis ligt op een royaal perceel van 495 m² en biedt veel privacy en ruimte.

De woning is verrassend compleet en geschikt voor meerdere doelgroepen. Op de begane grond bevinden zich zowel een slaapkamer als een badkamer, wat het huis levensloopbestendig maakt. Op de verdieping zijn nog twee ruime slaapkamers aanwezig. De woning is grotendeels voorzien van onderhoudsarme kunststof kozijnen met HR++-beglazing, er is dakisolatie aanwezig en de woning wordt verwarmd middels een HR-combiketel uit 2016.

De indeling is als volgt:
Begane grond:
Entree via de (overdekte) voordeur; hal met meterkast, toiletruimte en voorraadkast; sfeervolle woonkamer met erker; dichte keuken met keuken in L-opstelling; hal/gang met trapopgang en achterdeur; slaapkamer van ruim 10 m²; badkamer met inloopdouche, wasmeubel, witgoedaansluitingen, toilet en vaste kastenwand.

Eerste verdieping:
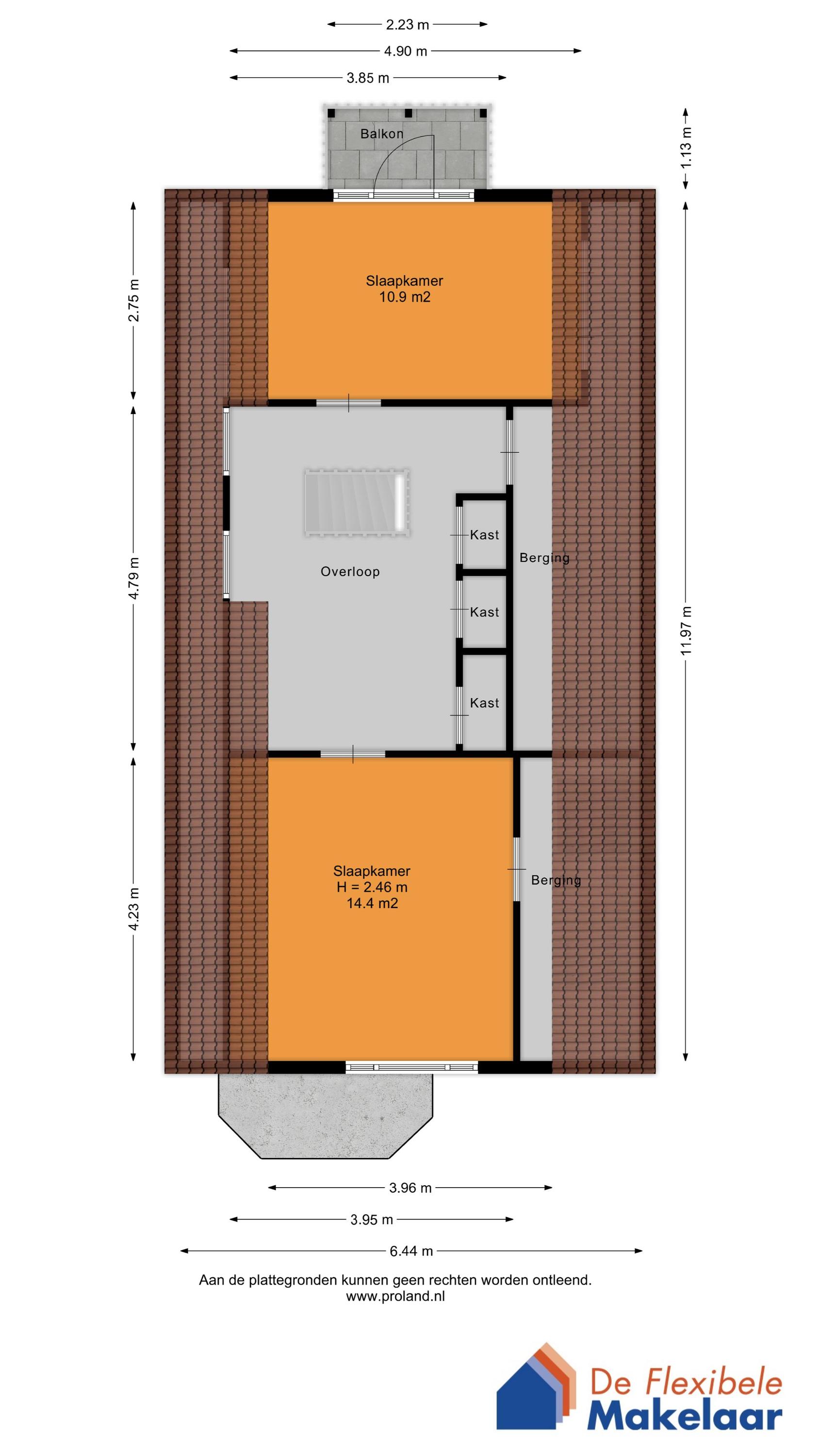
Royale overloop met vaste kastenwanden en dakkapel; twee royale slaapkamers, waarvan één met balkon. Indien gewenst zouden op deze etage meer slaapplekken gerealiseerd kunnen worden.

Buitenom:
Er is een vrijstaande houten garage van circa 11 meter lang en een aparte houten berging, wat veel extra ruimte biedt voor opslag, hobby of werk. Op eigen terrein is voldoende parkeergelegenheid. Rondom de woning is altijd wel een zonnig of schaduwrijk plekje te vinden.

De omgeving en straat kenmerken zich door veel groen en een rustige sfeer, waardoor je hier heerlijk kunt wonen met een gevoel van vrijheid en comfort.

Het dorp Kollumersweach:
Kollumersweach is een levendig dorp met diverse voorzieningen zoals een supermarkt, basisscholen, sportverenigingen en een actief verenigingsleven. Voor aanvullende voorzieningen liggen dorpen als Kollum en Buitenpost op korte afstand. Vanuit zowel De Westereen als Buitenpost is er een uitstekende treinverbinding richting Groningen en Leeuwarden, waardoor ook forenzen hier prettig kunnen wonen. Daarnaast biedt de directe omgeving volop mogelijkheden om te wandelen en fietsen. Het nabijgelegen Feankleasterbos is een prachtig natuurgebied waar je in alle rust kunt genieten van het groen, de stilte en de karakteristieke Friese natuur. Deze combinatie van goede bereikbaarheid, dagelijkse voorzieningen én een natuurrijke omgeving maakt het wonen in Kollumersweach bijzonder aantrekkelijk.

Kortom, Ganzingawei 4A te Kollumersweach biedt een fijne combinatie van rust, ruimte en praktisch wooncomfort. Een ideale plek voor wie houdt van een landelijke woonomgeving met volop zon en mogelijkheden. Zien we je binnenkort bij een bezichtiging? Onze flexibele makelaars staan voor je klaar!

Kenmerken

Soort Eengezinswoning, Vrijstaande woning
Vraagprijs 385.000 k.k.
Aangeboden 2 maanden geleden
Status Beschikbaar
Aanvaarding In overleg

Bekijk alle kenmerken...

Verkoper aan het woord

Aan de rand van het dorp, dichtbij het Veenkloosterbos. Zon rondom het huis, gelegen aan boomrijke weg. Actief dorp met basisschool, supermarkt, grote kringloopwinkel en huisartsenpost. De woning is op fietsafstand van het treinstation.

Interesse?

Vraag een bezichtiging aan

Bekijk de omgeving

Ontdek de ligging van deze woning

Alle kenmerken

Bouw

Bouwvorm Bestaande bouw
Bouwjaar 1963
Bouwjaar omschrijving Gebouwd in 1963.
Onderhoud (binnen) Goed
Toelichting Goed onderhouden.
Onderhoud (buiten) Goed
Toelichting Goed onderhouden.
Dak Zadeldak
Dak materialen Pannen, Bitumineuze dakbedekking
Dak toelichting Met pannen gedekt, platte daken van bitumen.

Energie

Energielabel E
Einddatum 2030-12-02
Isolatie Dakisolatie, Dubbel glas, HR-glas
Verwarming CV-ketel, Gaskachels
Warm water CV-ketel, Elektrische boiler (eigendom)
C.V.-ketel Remeha HR Gas gestookte combiketel uit 2016 eigendom

Buitenruimte

Ligging Aan rustige weg, In woonwijk, Beschutte ligging
Tuin Achtertuin, Voortuin, Zijtuin, Tuin rondom (Normaal)
Tuin oppervlakte 300 m²
Ligging Gelegen op (bereikbaar via achterom)
Parkeren Openbaar parkeren, Op eigen terrein
Parkeren Er is voldoende parkeergelegenheid.

Garage

Garage soort Vrijstaand (hout)
Voorzieningen Elektra
Isolatie Geen isolatie
Oppervlakte 40 m² (11.04m diep en 3.95m breed)
Capaciteit 1 auto(s)
Aantal 1

Oppervlakken en inhoud

Perceeloppervlakte 495 m²
Woonoppervlakte 128 m²
Inhoud 437 m³
Oppervlakte externe bergruimte 56 m²
Gebouwgebonden buitenruimte 10 m²

Indeling

Woonlagen 2 woonlagen
Kamers 4 kamers, waarvan 3 slaapkamers
Badkamers 1 badkamer(s) en 1 aparte toilet(ten)
Badkamervoorzieningen Toilet, Douche, Wastafel, Wastafelmeubel, Inloopdouche, Wasmachineaansluiting
Voorzieningen ROLLUIKEN, TV-kabel, Buitenzonwering, Rookkanaal, Dakraam, Glasvezelkabel, Natuurlijke ventilatie

Schuur / berging

Schuur / berging soort Vrijstaand (hout)
Voorzieningen Voorzien van elektra
Isolatie Geen isolatie
Aantal 1

Bestemming

Huidig gebruik Woonruimte
Huidige bestemming Woonruimte
Permanente bewoning Ja

Kadaster WESTERGEEST D 2436

Oppervlakte 495 m²
Omvang Geheel perceel

Vergelijkbaar in de buurt

...