Menu
Geawei 8 Augustinusga - Hoofdafbeelding.jpg
F

Tonen op kaart

Brochure

Verkocht: Geawei 8, Augustinusga

Augustinusga Geawei 8

83 m² woonoppervlakte

445 m² perceeloppervlakte

5 kamers, waarvan 3 slaapkamers

Verkocht

Geïnteresseerd in dit object?

Vraag eenvoudig een bezichtiging aan!

Interesse in woning

Omschrijving

Deze karakteristieke goed onderhouden twee-onder-een-kapwoning met vrijstaande houten garage en diepe achtertuin is gelegen in het centrum van het dorp op een ruim perceel van 445 m2.

Het woonhuis is gebouwd in 1955 en is in de loop der jaren verbeterd en gemoderniseerd. De gevels zijn geïsoleerd en het heeft grotendeels dubbelglas. In 2017 is het geschilderd. Het geheel wordt verwarmd door een HR combiketel van Intergas uit 2010.

De indeling van deze woning is als volgt:
Entree, hal, lichte woonkamer met trapkast, halfopen keuken met een nette keukenopstelling, bijkeuken met witgoedaansluitingen, de c.v.-opstelling, toilet en de nette badkamer met ligbad, douche en wastafelmeubel.

Eerste verdieping: Overloop met aansluitend drie slaapkamers en bergruimte.

Tweede verdieping: bergzolder te bereiken via een luik.

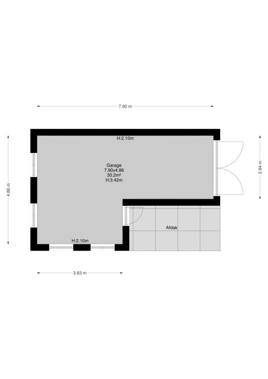
Achter het woonhuis staat de ruime garage van ca. 30 m2 met overkapping. De diepe achtertuin is gelegen op het noordwesten en aangelegd met bestrating, beplanting en een gazon. De oprit biedt voldoende parkeerplaats op eigen terrein.

Augustinusga is een landelijke gelegen dorp in het oosten van Friesland. Het heeft verschillende faciliteiten, waaronder een basisschool, horeca en enkele sportvoorzieningen. Op korte afstand bevinden zich de grotere plaatsen Buitenpost en Surhuisterveen waar goede voorzieningen als een uitgebreid winkelaanbod, een treinstation (Buitenpost) openbaar vervoer basisscholen en voorgezet onderwijs zijn. De A7 (naar Groningen-Drachten-Heerenveen) is binnen ca. 10 minuten te bereiken.

Is uw interesse voor deze woning gewekt? Maak dan snel een afspraak voor een bezichtiging! Wij heten u alvast van harte welkom aan de Geawei 8 te Augustinusga.

Kenmerken

Soort Eengezinswoning, Twee-onder-een-kapwoning
Vraagprijs Prijs op aanvraag
Aangeboden 6 jaar geleden
Status Verkocht
Aanvaarding In overleg

Bekijk alle kenmerken...

Interesse?

Vraag een bezichtiging aan

Bekijk de omgeving

Ontdek de ligging van deze woning

Alle kenmerken

Bouw

Bouwvorm Bestaande bouw
Bouwjaar 1955
Onderhoud (binnen) Goed
Onderhoud (buiten) Goed
Dak Zadeldak
Dak materialen Pannen

Energie

Energielabel F
Einddatum 2025-10-18
Isolatie Muurisolatie, Gedeeltelijk dubbel glas
Verwarming CV-ketel
Warm water CV-ketel
C.V.-ketel HR Intergas Gas gestookte combiketel uit 2010 eigendom

Garage

Garage soort Vrijstaand (hout)
Voorzieningen Elektra
Isolatie Geen isolatie
Oppervlakte 30 m²
Capaciteit 1 auto(s)
Aantal 1

Indeling

Woonlagen 3 woonlagen
Kamers 5 kamers, waarvan 3 slaapkamers
Badkamers 1 badkamer(s) en 1 aparte toilet(ten)
Badkamervoorzieningen Ligbad, Douche, Wastafelmeubel
Voorzieningen TV-kabel

Oppervlakken en inhoud

Perceeloppervlakte 445 m²
Woonoppervlakte 83 m²
Inhoud 275 m³
Oppervlakte externe bergruimte 60 m²

Buitenruimte

Ligging In centrum
Achtertuin 300 m² (30m diep en 10m breed)
Ligging Gelegen op NOORD (bereikbaar via achterom)
Parkeren Openbaar parkeren, Op eigen terrein

Bestemming

Huidig gebruik Woonruimte
Huidige bestemming Woonruimte
Permanente bewoning Ja

Kadaster DROGEHAM C 1992

Oppervlakte 445 m²
Omvang Geheel perceel

Vergelijkbaar in de buurt

...