Menu
Gedempte Vaart 62 Surhuisterveen - Hoofdafbeelding.jpg
E

Tonen op kaart

Brochure

Verkocht: Gedempte Vaart 62, Surhuisterveen

Surhuisterveen Gedempte Vaart 62

94 m² woonoppervlakte

340 m² perceeloppervlakte

4 kamers, waarvan 1 slaapkamer

Verkocht

Geïnteresseerd in dit object?

Vraag eenvoudig een bezichtiging aan!

Interesse in woning

Omschrijving

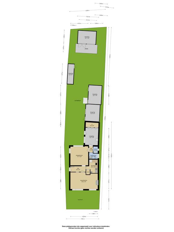
Welkom bij Gedempte Vaart 62, een prachtige vrijstaande uitgebouwde woning in het hart van Surhuisterveen! Deze charmante woning uit 1925 heeft een diepe achtertuin op 340 m2 eigen grond en biedt het een oase van rust en privacy, terwijl het op slechts enkele wandelminuten van het bruisende dorpscentrum ligt. Als kers op de taart biedt het perceel aan de achterzijde een fraai vrij uitzicht.

Dit is echt zo'n woning die je met eigen ogen móet zien en ervaren om positief verrast te worden. De begane grond biedt het gemak van een slaapkamer en badkamer, waardoor het huis ideaal is voor iedereen die op zoek is naar gelijkvloers wonen. De woning is aan de achterzijde uitgebreid, welke vertrekken momenteel als bijkeuken/bergruimte in gebruik zijn. Ook hier bestaat uiteraard de mogelijkheid om deze ruimtes bij het woongedeelte te voegen.

De indeling is als volgt:
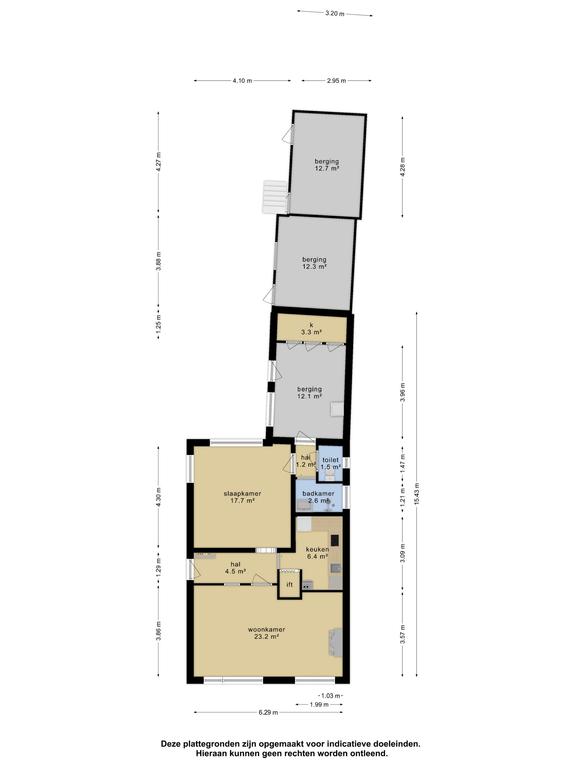
Begane grond:
Zijentree met meterkast; woonkamer met speksteenkachel; keuken (2017) met moderne keukenopstelling voorzien van natuurstenen werkblad, koelkast, combimagnetron, gaskookplaat, vaatwasser en afzuigkap; goederenlift naar 1e verdieping; slaap-/eetkamer; hal, badkamer met douche en wastafelmeubel; toiletruimte; ruime aangebouwde bijkeuken met witgoedaansluitingen en inbouwkast; kelderkast; aangebouwde stenen berging met vaste werkbank.

1e verdieping:
Trapopgang (buitenom via dakterras); kamer; 2e kamer met inbouwkastenwand en goederenlift.

Momenteel is de toegang naar de bovenverdieping voor personen via een trap buitenom. Middels een kleine verbouwing door het realiseren van een trap binnenshuis is het echter ook mogelijk om de bovenverdieping optimaal bij het geheel te betrekken. Liever een gastenkamer aan huis? Dan kan de toegang buitenom juist ideaal zijn!

Buitenom:
In de achtertuin is er een fantastische verrassing: een tuinhuis met een infraroodsauna, perfect om te ontspannen na een drukke dag. Geniet van de lange zomeravonden onder de veranda in de fijne achtertuin, compleet met vijver en biologische moestuin. Een waar paradijs voor tuinliefhebbers! De achterzijde van het perceel grenst aan een weiland en biedt uitzicht richting de haven. Via de trap vanuit de tuin is er toegang tot het platte dak van de bijkeuken/berging. Dit is een prachtige plek voor een dakterras met vrij uitzicht.

Surhuisterveen:
Ontdek het bruisende hart van de regio: Surhuisterveen! Hier vind je een overvloed aan voorzieningen die zorgen voor een levendige gemeenschap. Met vier grote supermarkten, meer dan 100 winkels, diverse scholen en een uitgebreid multifunctioneel centrum is er voor ieder wat wils. Het centrum biedt een scala aan faciliteiten, waaronder een jeugdsoos, kinderopvang en een bibliotheek, waardoor het een dynamische hub is voor jong en oud. Daarnaast zijn er uitstekende sportfaciliteiten beschikbaar en is het openbaar vervoer goed geregeld. De gunstige ligging nabij de A7 maakt het ook eenvoudig om snel naar steden zoals Groningen, Leeuwarden, Heerenveen en Drachten te reizen. Met zijn unieke mix van voorzieningen en bereikbaarheid is Surhuisterveen echt een unieke en gewilde woonplaats. De slogan van het dorp luidt niet voor niets: "Surhuisterveen, zo gezellig is er maar één!"

Mis deze unieke kans niet! Neem vandaag nog contact met ons op om een bezichtiging te plannen en je nieuwe thuis aan de Gedempte Vaart 62 in Surhuisterveen met één van onze flexibele makelaars te ontdekken!

Kenmerken

Soort Eengezinswoning, Vrijstaande woning
Vraagprijs Prijs op aanvraag
Aangeboden 2 jaar geleden
Status Verkocht
Aanvaarding In overleg

Bekijk alle kenmerken...

Interesse?

Vraag een bezichtiging aan

Bekijk de omgeving

Ontdek de ligging van deze woning

Alle kenmerken

Bouw

Bouwvorm Bestaande bouw
Bouwjaar 1925
Bouwjaar omschrijving Volgens BAG
Onderhoud (binnen) Goed
Toelichting De woning is van binnen keurig onderhouden.
Onderhoud (buiten) Goed
Toelichting De woning is van buiten keurig onderhouden.
Dak Zadeldak
Dak materialen Overig
Dak toelichting Met dakpanplaten gedekt zadeldak.

Buitenruimte

Ligging In centrum, In woonwijk, Vrij uitzicht
Tuin Achtertuin, Voortuin, Tuin rondom (FRAAI_AANGELEGD)
Tuin oppervlakte 150 m²
Achtertuin 125 m² (21m diep en 7.52m breed)
Ligging Gelegen op NOORD (bereikbaar via achterom)
Parkeren Openbaar parkeren
Parkeren Er is parkeergelegenheid in de vakken langs de straat.

Energie

Energielabel E
Einddatum 2030-10-29
Isolatie Dakisolatie, Muurisolatie, Vloerisolatie, Dubbel glas
Verwarming Gaskachels, Houtkachel
Warm water Geiser (huur)

Oppervlakken en inhoud

Perceeloppervlakte 340 m²
Woonoppervlakte 94 m²
Overige ruimten 16 m²
Inhoud 407 m³
Oppervlakte externe bergruimte 43 m²

Indeling

Woonlagen 2 woonlagen
Kamers 4 kamers, waarvan 1 slaapkamer
Badkamers 1 badkamer(s) en 1 aparte toilet(ten)
Badkamervoorzieningen Douche, Wastafel, Wastafelmeubel, Inloopdouche
Voorzieningen TV-kabel, Buitenzonwering, Lift, Rookkanaal, Sauna, Glasvezelkabel

Schuur / berging

Schuur / berging soort Aangebouwd (steen)
Voorzieningen Voorzien van elektra
Isolatie Geen isolatie
Aantal 2

Bestemming

Huidig gebruik Woonruimte
Huidige bestemming Gemengde Doeleinden
Permanente bewoning Ja

Kadaster SURHUIZUM C 1915

Oppervlakte 340 m²
Omvang Geheel perceel

Garage

Garage soort Geen garage

Vergelijkbaar in de buurt

...