Menu
Groningerstraat 18 Surhuisterveen - Hoofdafbeelding.jpg
C

Tonen op kaart

Verkocht: Groningerstraat 18, Surhuisterveen

Surhuisterveen Groningerstraat 18

147 m² woonoppervlakte

534 m² perceeloppervlakte

5 kamers, waarvan 4 slaapkamers

Verkocht

Geïnteresseerd in dit object?

Vraag eenvoudig een bezichtiging aan!

Interesse in woning

Omschrijving

Instapklaar, uiterst modern en luxe: dat zijn enkele van de vele kenmerken van deze prachtige woning met uitbouw aan de Groningerstraat 18 te Surhuisterveen. Dit ruime vrijstaande woonhuis met uitgebouwde woonkeuken, aangebouwde garage, heerlijke overkapping en een ruime, zonnige tuin op het zuidwesten is gelegen aan een mooie straat in het centrum van het dorp. De woning beschikt over een woonkamer om u tegen te zeggen en heeft 4 ruime slaapkamers, waarvan 1 op de begane grond, en is daarmee royaal van binnen en van buiten te noemen!

Het oorspronkelijk bouwjaar van dit huis telt terug tot 1978, maar van binnen is het hagelnieuw! Hier kom je echt thuis, want de woning straalt veel gezelligheid en warmte uit. De afgelopen jaren is de begane grond helemaal verbouwd en uitgebouwd tot wat het nu is. Een moderne keuken met diverse Bosch inbouwapparatuur, een houten vloer, een lichtkoepel voor extra daglicht in de aanbouw, openslaande deuren naar de tuin, een vernieuwde toiletruimte met hangtoilet en urinoir: u kunt alles afvinken! Het woonhuis is overigens recent ook nog geschilderd buitenom (2022).

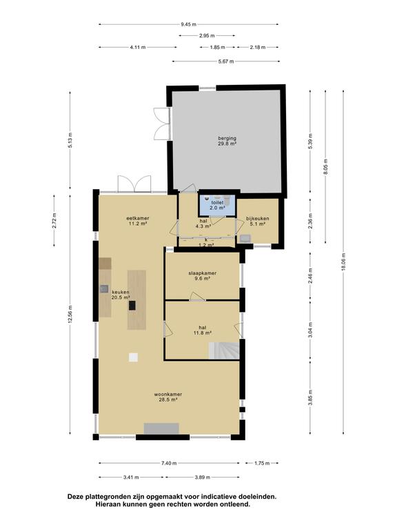
De indeling van de woning is als volgt:
Begane grond:
Entree via de voordeur aan de zijkant van de woning; ruime ontvangsthal met garderobe; slaapkamer/kantoor van ca. 9,5 m²; ruime woonkamer met houtkachel aan de voorzijde van de woning; open keuken als centrale punt van de woning met kookeiland en inbouwapparatuur waar het hart van menig keukenprins of -prinses sneller van gaat kloppen; tuingerichte eetkamer met lichtkoepel en openslaande deuren; tweede hal; toiletruimte met hangtoilet, urinoir en fontein; bijkeuken met uitstortgootsteen en witgoedaansluitingen.

Eerste verdieping:
Overloop; 3 slaapkamers waarvan de ouderslaapkamer ca. 10 m²; complete badkamer met hoekbad (jets!), hangtoilet, dubbele wastafel met meubel en inloopdouche.

Tweede verdieping:
Middels vlizotrap te bereiken vliering.

De aangebouwde garage/berging met houten omkleding en openslaande deuren is ideaal voor de hobbyisten onder ons. De garage is van binnenuit te bereiken en beslaat een oppervlakte van ca. 30 m². Mocht u willen zou deze ruimte prima te verbouwen zijn tot een bad- en/of slaapkamer met tuinzicht op de begane grond.

Buiten:
Doordat de woning gunstig op de kavel gelegen is, zijn de vierkante meters van het 534 m² grote perceel vooral in de zonnige, besloten achtertuin te vinden. Hier treft u een oase van rust. De tuin is uitgerust met veel gras voor eindeloos speelplezier en meerdere terrassen voor optimaal zongenot! En heeft u de overkapping al gezien?

Het dorp Surhuisterveen
Surhuisterveen is hét dorp in de regio waar alles te vinden is als: 4 grote supermarkten, vele industrie, een groot openluchtzwembadcomplex, levendige horeca en een multifunctioneel centrum met o.a. een bibliotheek en ontmoetingsplekken. Bovendien ligt Surhuisterveen aan de snelweg (A7) met een uitstekende verbinding naar Groningen, Drachten en Heerenveen. Ook Leeuwarden is zeer gemakkelijk te bereiken via de Wâldwei.

Dit prachtige geheel heeft dus alles te bieden wat vrijstaand wonen bijzonder en aantrekkelijk maakt. En dat alles nabij het voorzieningenrijk centrum van Surhuisterveen. Wat wilt u nog meer? Mis deze kans niet en bel snel voor een bezichtiging van deze woning. Onze makelaars staan graag voor u klaar.

Kenmerken

Soort Eengezinswoning, Vrijstaande woning
Vraagprijs Prijs op aanvraag
Aangeboden 4 jaar geleden
Status Verkocht
Aanvaarding In overleg

Bekijk alle kenmerken...

Interesse?

Vraag een bezichtiging aan

Bekijk de omgeving

Ontdek de ligging van deze woning

Alle kenmerken

Bouw

Bouwvorm Bestaande bouw
Bouwjaar 1978
Bouwjaar omschrijving De woning is gebouwd in 1971.
Onderhoud (binnen) Goed
Toelichting De woning is van binnen goed onderhouden.
Onderhoud (buiten) Goed
Toelichting De woning is van buiten goed onderhouden.
Dak Zadeldak
Dak materialen Pannen, Bitumineuze dakbedekking
Dak toelichting De woning heeft een met pannen gedekt zadeldak. De platte daken van de uitbouw en de garage zijn voorzien van bitumen.

Buitenruimte

Ligging Aan rustige weg, In centrum, Beschutte ligging
Tuin Achtertuin, Voortuin, Zijtuin, Tuin rondom (NORMAAL)
Tuin oppervlakte 510 m²
Achtertuin 450 m² (36.81m diep en 15.42m breed)
Ligging Gelegen op ZUIDWEST
Parkeren Openbaar parkeren, Op eigen terrein
Parkeren Er is voldoende parkeergelegenheid in de omgeving en op eigen terrein.

Energie

Energielabel C
Einddatum 2030-12-29
Isolatie Dakisolatie, Muurisolatie, Vloerisolatie, Dubbel glas, Gedeeltelijk dubbel glas, Grotendeels dubbel glas, HR-glas
Verwarming CV-ketel, Vloerverwarming (gedeeltelijk), Houtkachel
Warm water CV-ketel
C.V.-ketel HR Vaillant Gas gestookte combiketel uit 2005 eigendom

Garage

Garage soort Aangebouwd (hout)
Voorzieningen Elektra
Isolatie Geen isolatie
Oppervlakte 31 m² (5.67m diep en 5.39m breed)
Capaciteit 1 auto(s)
Aantal 1

Indeling

Woonlagen 3 woonlagen
Kamers 5 kamers, waarvan 4 slaapkamers
Badkamers 1 badkamer(s) en 1 aparte toilet(ten)
Badkamervoorzieningen Ligbad, Toilet, Douche, Dubbele wastafel, Wastafel, Wastafelmeubel, Inloopdouche
Voorzieningen Mechanische ventilatie, TV-kabel, Rookkanaal, Dakraam, Glasvezelkabel, Natuurlijke ventilatie

Oppervlakken en inhoud

Perceeloppervlakte 534 m²
Woonoppervlakte 147 m²
Overige ruimten 36 m²
Inhoud 671 m³

Bestemming

Huidig gebruik Woonruimte
Huidige bestemming Gemengde bestemming (volledig wonen toegestaan)
Permanente bewoning Ja

Kadaster SURHUIZUM B 5628

Oppervlakte 339 m²
Omvang Geheel perceel

Vergelijkbaar in de buurt

...