Menu
Groningerstraat 30 Surhuisterveen - Hoofdafbeelding.jpg
A

Tonen op kaart

Brochure

Verkocht: Groningerstraat 30, Surhuisterveen

Surhuisterveen Groningerstraat 30

199 m² woonoppervlakte

696 m² perceeloppervlakte

4 kamers, waarvan 3 slaapkamers

Verkocht

Geïnteresseerd in dit object?

Vraag eenvoudig een bezichtiging aan!

Interesse in woning

Omschrijving

Ontdek het summum van elegant, authentiek, A-label en ruim wonen in hartje centrum Surhuisterveen! Deze schitterende woning, gelegen op een riante kavel van circa 790m², bijna 200m² woonoppervlakte en een garage van maar liefst ca. 57m². Ook de woning is met zorg gerenoveerd en uitgebreid. Hierbij is de perfecte balans gevonden tussen moderne luxe en het behoud van authentieke charme.

Authentiek?
Deze woning in Surhuisterveen is een werkelijk uniek meesterwerk van architectuur, rijk aan geschiedenis en vakmanschap. Het meest opvallend zijn de exclusieve belijningen in het metselwerk, een detail dat traditioneel gereserveerd was voor woningen van vooraanstaande figuren. Dit element is niet alleen zeldzaam in Surhuisterveen, maar ook een zeldzame vondst in de architectuur.

Maar de authenticiteit stopt daar niet. De woning pronkt met prachtige metselwerkdetailleringen zoals sierlijke boogjes, paneeldeuren, zorgvuldig geslepen bakstenen en vakbekwaam voegwerk. Het geavanceerde metselwerk bevat onder andere kruisverbanden en teruggelegd metselwerk, wat bijdraagt aan de esthetische rijkdom en het historische karakter van het pand. De charmante boogveldjes en het verfijnde voegwerk accentueren de ambachtelijke vaardigheid die in de bouw van het huis is geïnvesteerd.

Elk aspect van deze woning weerspiegelt de hoogwaardige kwaliteit en de status van de oorspronkelijke bewoners, waardoor het niet alleen een huis is, maar ook een levend stuk geschiedenis. Dit huis biedt een zeldzame kans om deel uit te maken van het rijke culturele erfgoed van Surhuisterveen, ingebed in elke steen en elke voeg. Dit huis is dus waarschijnlijk het meest authentieke huis van heel Surhuisterveen.

Energiezuinig?
Dat zeker; zeer uniek en uitgebouwd, de woning voldoet in zijn geheel namelijk aan één van de meest energiezuinige: A-energielabel! Wederom een zeer uniek verhaal voor een jaren authentiek (t)huis.

Nieuw gebouwde garage:
In 2019 is er een zeer complete en super deluxe garage gebouwd, klaar voor een extra verdieping, maar op de begane grond is de garage nu al ca. 57 m². De garage is voorzien van krachtstroom en een vloeistofdichte vloer. Ook is er een eigen meterkast en krachtstroom. Een autobrug is bij deze garage ook mogelijk.

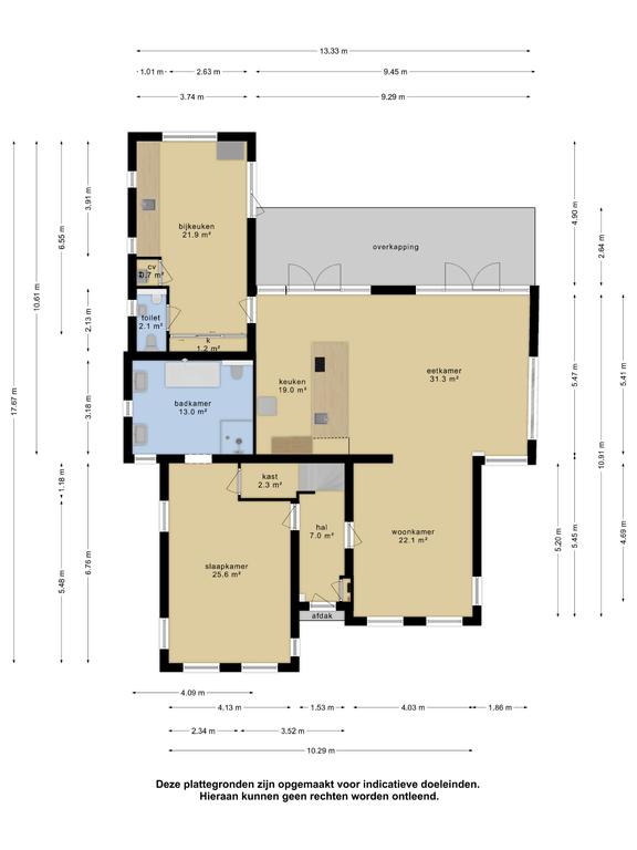
Bij binnenkomst in de entreehal leidt de trapopgang u naar de bovenverdieping. Links treft u een ruime slaapkamer, gekoppeld aan een weelderige badkamer. Deze badkamer, een ware oase, is uitgerust met dubbele wastafels, een uitnodigend ligbad, wandcloset en een aparte inloopdouche met drain, regendouche en handdouche. Rechts bevindt zich de gezellige woonkamer, die vloeiend overgaat in de uitgebouwde woonkeuken. Deze keuken, met een achtergevel van bijna volledig glas en openslaande deuren, baadt in natuurlijk licht. De keuken zelf is een plaatje: een strakke kastenwand, een functioneel schiereiland en voorzien van alle mogelijke inbouwapparatuur, inclusief een Quooker.

Grenzend aan de keuken ligt de praktische bijkeuken, voorzien van een extra kastenwand en een tweede aanrecht met ingebouwde kasten. Hier vindt u ook een separaat wandcloset met fonteintje en een extra urinoir.

De eerste verdieping herbergt twee ruime slaapkamers en een tweede luxe badkamer, compleet met douche, stijlvol wastafelmeubel en toilet.

Bijzondere kenmerken van deze woning:
*Zorgvuldige verbouwing met oog voor detail.
*Energielabel A
*Gebruik van eersteklas materialen.
*Uitzonderlijk complete keuken en sanitair.
*Begane grond met plavuizen en vloerverwarming.
*Volledig afgewerkt– klaar om te betrekken.
*Ideaal voor wie gelijkvloers wonen wenst: extra brede deuren, ruime badkamer en slaapkamer op de begane grond. De woning is (nagenoeg) rolstoelvriendelijk.

Nog specialer?
Volgens de gemeentelijke basisadministratie is de woning in 1938 gebouwd. Echter, de ingemetselde steen bij de voordeur vertelt een heel ander verhaal, namelijk dat de woning al in 1919 bestond. Bovendien heeft de woning een bijzondere geschiedenis met een prachtig verhaal dat weinig mensen kennen, maar waar onze makelaars u graag meer over willen vertellen.

Een huis dat luxe, comfort en stijl belichaamt, klaar om uw nieuwe thuis te worden. De Groningerstraat 30 in Surhuisterveen staat te popelen om bezichtigd te worden met u en onze flexibele makelaars. Maak daarom snel een afspraak voor dit overweldigende en zeer complete geheel.

Kenmerken

Soort Herenhuis, Vrijstaande woning
Vraagprijs Prijs op aanvraag
Aangeboden 1 jaar geleden
Status Verkocht
Aanvaarding In overleg

Bekijk alle kenmerken...

Interesse?

Vraag een bezichtiging aan

Bekijk de omgeving

Ontdek de ligging van deze woning

Alle kenmerken

Bouw

Bouwvorm Bestaande bouw
Bouwjaar 1919
Bouwjaar omschrijving Naderhand volledig gerenoveerd + uitgebouwd
Onderhoud (binnen) Goed tot uitstekend
Toelichting Bijna in nieuwbouwstaat
Onderhoud (buiten) Goed tot uitstekend
Toelichting Bijna in nieuwbouwstaat
Dak Samengesteld dak
Dak materialen Pannen, Bitumineuze dakbedekking

Energie

Energielabel A
Einddatum 2033-11-16
Isolatie Dakisolatie, Muurisolatie, Vloerisolatie, Dubbel glas, HR-glas
Verwarming CV-ketel, Vloerverwarming (geheel), Vloerverwarming (gedeeltelijk)
Warm water CV-ketel
C.V.-ketel Intergas HR107 Gas gestookte combiketel uit 2021 eigendom

Buitenruimte

Ligging Aan rustige weg, In centrum, In woonwijk, Beschutte ligging
Tuin Tuin rondom (FRAAI_AANGELEGD)
Tuin oppervlakte 450 m²
Ligging Gelegen op (bereikbaar via achterom)
Parkeren Openbaar parkeren, Op eigen terrein
Parkeren Ruim voldoende parkeergelegenheid, ook op eigen terrein.

Garage

Garage soort Vrijstaand (steen), Parkeerplaats
Voorzieningen Verwarming, Elektra, Water, Elektrische deur
Isolatie Dakisolatie, Muurisolatie, Vloerisolatie, Dubbel glas, Volledig geïsoleerd
Oppervlakte 57 m² (9.54m diep en 5.93m breed)
Capaciteit 2 auto(s)
Aantal 1

Oppervlakken en inhoud

Perceeloppervlakte 696 m²
Woonoppervlakte 199 m²
Inhoud 804 m³
Oppervlakte externe bergruimte 57 m²
Gebouwgebonden buitenruimte 26 m²

Indeling

Woonlagen 2 woonlagen
Kamers 4 kamers, waarvan 3 slaapkamers
Badkamers 2 badkamer(s) en 1 aparte toilet(ten)
Badkamervoorzieningen Wastafel, Wastafelmeubel, Ligbad, Dubbele wastafel, Vloerverwarming, Toiletten 2, Douches 2
Voorzieningen TV-kabel, Buitenzonwering, Airconditioning, Rookkanaal, Dakraam, Glasvezelkabel, Zonnepanelen, Natuurlijke ventilatie

Bestemming

Huidig gebruik Woonruimte
Huidige bestemming Woonruimte
Permanente bewoning Ja

Kadaster SURHUIZUM B 5624

Oppervlakte 409 m²
Omvang Geheel perceel

Vergelijkbaar in de buurt

...