Menu
Groningerstraat 58 Surhuisterveen - Hoofdafbeelding.jpg
F

Tonen op kaart

Brochure

Verkocht: Groningerstraat 58, Surhuisterveen

Surhuisterveen Groningerstraat 58

104 m² woonoppervlakte

313 m² perceeloppervlakte

5 kamers, waarvan 4 slaapkamers

Verkocht
Referentie door verkoper: "Al heel vaak een woning voor verkocht, zowel nieuwbouw als bestaand, maar altijd goed. Hele Fijne samenwerking!"
Geschreven op 01-09-2025

Deskundigheid10

Prijs/kwaliteit10

Marktkennis10

Service10

Meer reviews bekijken op Funda

Geïnteresseerd in dit object?

Vraag eenvoudig een bezichtiging aan!

Interesse in woning

Omschrijving

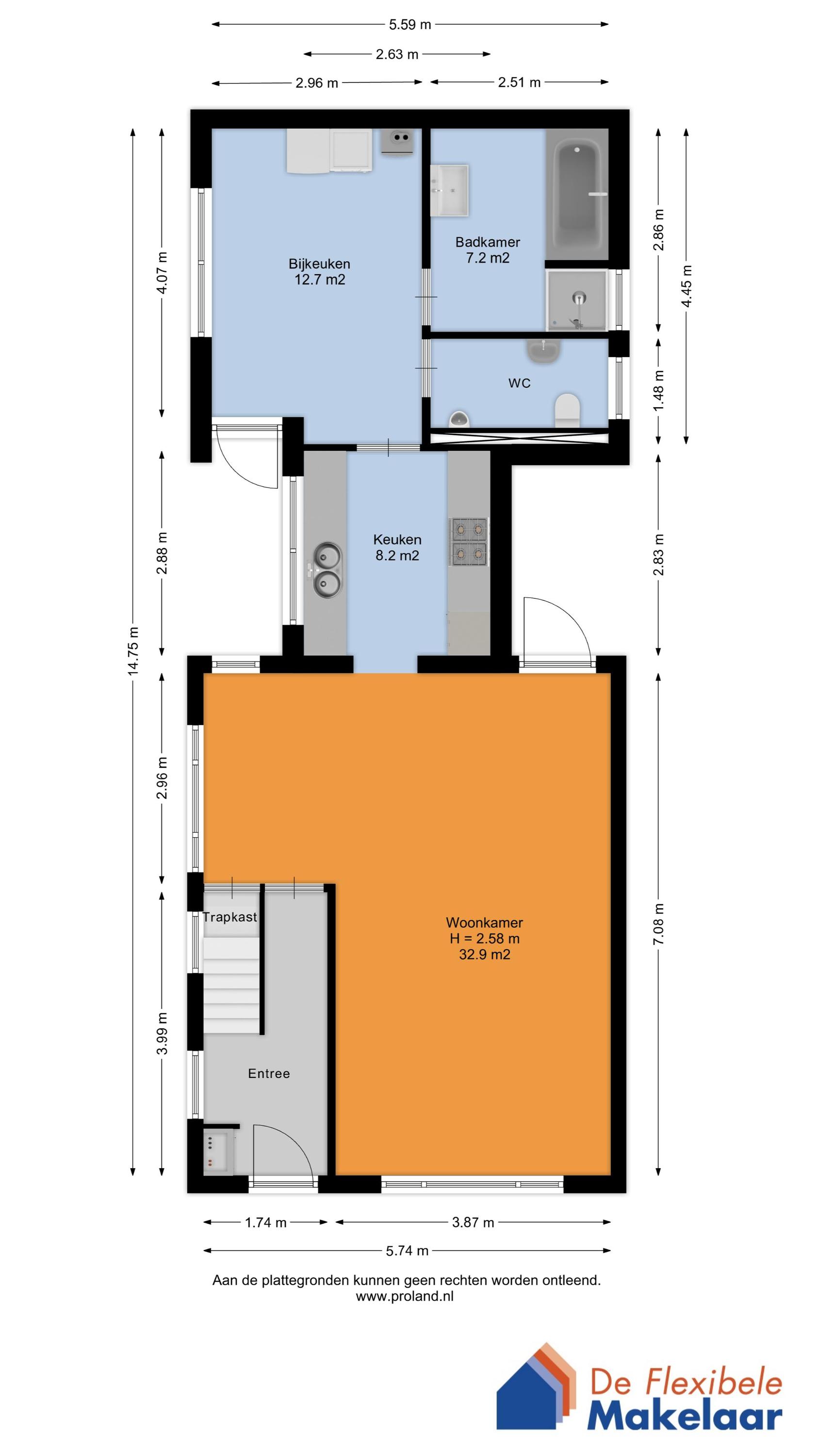
Aan de rand van het centrum van Surhuisterveen staat deze authentieke, uitgebouwde en vrijstaande jaren ’30 woning op een perceel van 311m² eigen grond met eigen garage én royale toegangsweg. Een woning met karakter, originele details en verrassend veel ruimte dankzij de royale uitbouw aan de achterzijde. Hier zijn onder andere de bijkeuken, een badkamer en een luxe uitgevoerde toiletgroep gerealiseerd, wat het mogelijk maakt om het geheel levensloopbestendig te gebruiken.

Begane grond:
De uitstraling van de woning past helemaal bij de bouwperiode, met onder andere een erker, paneeldeuren, glas-in-loodaccenten en een fraaie indeling. De woonkamer met massieve houten vloer is L-vormig en heeft openslaande deuren naar de tuin. De keuken is apart en beschikt over veel kastruimte en diverse inbouwapparatuur. Vanuit de aanbouw bereik je de bijkeuken, het toilet met zwevend closet, bidetaansluiting en urinoir en een ruimte waar de badkamer gerealiseerd is met ligbad, aparte douchehoek en badmeubel, allen voorzien van thermostatische kranen.

1e etage:
Overloop met op de eerste verdieping drie slaapkamers, waaronder een ruime ouderslaapkamer met toegang tot het platte dak.

2e etage:
Vlizotrap met toegang tot de bergzolder.

Buiten:
Een keurig aangelegde en onderhoudsarme voor- en achtertuin, met een grote vrijstaande garage, welke bereikbaar is via de achterzijde van het perceel. Hierdoor blijft de tuin volledig bruikbaar en verlies je geen buitenruimte.

Surhuisterveen biedt uitstekende voorzieningen zoals winkels (meer dan 100!), openbaarvervoer en sportfaciliteiten, en ligt gunstig ten opzichte van Drachten en Groningen (A7). Daarnaast zijn er volop mogelijkheden voor recreatie, zoals het nabijgelegen Strandheem en het Lauwersmeergebied. Surhuisterveen draagt dan ook niet voor niet de leus: Surhuisterveen, zo gezellig is er maar één! Het is dan ook het absolute regiohart van de gehele omgeving, waar alle inwoners van de omliggende dorpen (inclusief het eerste deel van Drachten) komen winkelen.

Ben je op zoek naar een goed onderhouden jaren ’30 woning met een authentieke sfeer, veel ruimte en een garage zonder dat dit ten koste gaat van je tuin? Dan is dit beslist een woning om te bekijken. Onze flexibele makelaars laten je deze plek graag in alle rust en ruimte ervaren aan de Groningerstraat 58 te Surhuisterveen.

Kenmerken

Soort Eengezinswoning, Vrijstaande woning
Vraagprijs Prijs op aanvraag
Aangeboden 10 maanden geleden
Status Verkocht
Aanvaarding In overleg

Bekijk alle kenmerken...

Interesse?

Vraag een bezichtiging aan

Bekijk de omgeving

Ontdek de ligging van deze woning

Alle kenmerken

Bouw

Bouwvorm Bestaande bouw
Bouwjaar 1937
Onderhoud (binnen) Goed
Onderhoud (buiten) Goed
Dak Samengesteld dak
Dak materialen Pannen, Bitumineuze dakbedekking

Energie

Energielabel F
Einddatum 2035-04-08
Isolatie Vloerisolatie, Dubbel glas, HR-glas
Verwarming CV-ketel
Warm water CV-ketel, Elektrische boiler (eigendom)
C.V.-ketel Remeha Gas gestookte combiketel uit 2021 eigendom

Garage

Garage soort Vrijstaand (hout)
Voorzieningen Elektra
Isolatie Geen isolatie
Oppervlakte 25 m² (5.7m diep en 4.45m breed)
Capaciteit 1 auto(s)
Aantal 1

Oppervlakken en inhoud

Perceeloppervlakte 313 m²
Woonoppervlakte 104 m²
Overige ruimten 6 m²
Inhoud 409 m³
Oppervlakte externe bergruimte 25 m²

Indeling

Woonlagen 3 woonlagen
Kamers 5 kamers, waarvan 4 slaapkamers
Badkamers 1 badkamer(s) en 1 aparte toilet(ten)
Badkamervoorzieningen Ligbad, Toilet, Douche
Voorzieningen TV-kabel, Glasvezelkabel, Natuurlijke ventilatie

Buitenruimte

Ligging Aan drukke weg, In woonwijk, Open ligging
Tuin Tuin rondom (NORMAAL)
Tuin oppervlakte 250 m²
Ligging Gelegen op (bereikbaar via achterom)
Parkeren Openbaar parkeren, Op eigen terrein

Bestemming

Huidig gebruik Woonruimte
Huidige bestemming Woonruimte
Permanente bewoning Ja

Schuur / berging

Schuur / berging soort Inpandig
Voorzieningen Voorzien van elektra
Aantal 1

Kadaster SURHUIZUM B 7711

Oppervlakte 67 m²
Omvang Geheel perceel

Vergelijkbaar in de buurt

...