Menu
Groningerstraat 75 Surhuisterveen - Hoofdafbeelding.jpg
B

Tonen op kaart

Brochure

Verkocht: Groningerstraat 75, Surhuisterveen

Surhuisterveen Groningerstraat 75

94 m² woonoppervlakte

390 m² perceeloppervlakte

4 kamers, waarvan 3 slaapkamers

Verkocht

Geïnteresseerd in dit object?

Vraag eenvoudig een bezichtiging aan!

Interesse in woning

Omschrijving

Wat een pracht en praal; compleet gerenoveerd, groots uitgebouwd en zeer karakteristiek. Deze vrijstaande woning, genaamd 't Hoarnleger', aan de Groningerstraat 75 in Surhuisterveen heeft het werkelijk allemaal. Gelegen op een perceel van ca. 390m² bevindt deze zich op korte afstand van het levendige centrum van Surhuisterveen. Deze woning is uitstekend geïsoleerd en aangepast aan moderne woonwensen met een levensloopbestendige indeling inclusief een nieuw aangebouwde bad- en slaapkamer op de begane grond. Dit, in combinatie met de zonnige achtertuin en alle aantrekkelijke aspecten daaromheen, maakt dit een geweldig oord om te genieten van het nabijgelegen centrum, de diepe tuin en het gemak van gelijkvloers wonen.

De uitbouw, met een grootte van ca. 7 meter bij 4 meter, plus een overkapping van ca. 18m², verzekert je van voldoende ruimte en comfort. De woonkamer en keuken spannen samen circa 30m², compleet met een sfeervolle erker die bijdraagt aan het karakter van het huis.

Sinds 2018 is deze woning grootschalig aangepakt, uitgebouwd en geïsoleerd. Het dak is echter nog niet geïsoleerd; als dit wel zou gebeuren, zou de woning met basisisolatie gemakkelijk naar een A-energielabel kunnen opschalen, met zelfs de mogelijkheid voor extra plusjes achter het A-label. Momenteel heeft de woning een B-energielabel.

Zo zijn de volgende zaken o.a. opgepakt en veelal nog met garantie:
-Aanbouw met nieuwe badkamer, slaapkamer, toiletruimte en bijkeuken.
-Betonvloeren
-Vloerverwarming op de gehele begane grond
-Luxe keuken met Neff apparatuur en Quooker
-Nieuwe kozijnen en nieuwe beglazing (HR++) + glas in lood geplaatst in de nieuwe kozijnen (tussen het glas)
-Nieuwe goten en boeidelen (kunststof)
-10 zonnepanelen
-Nieuwe cv-combiketel (Intergas HRE met A-label pomp)
-Massieve Paneeldeuren
-Nieuwe dakpannen en aanpakken constructie
-Nieuwe markies

Begane grond:
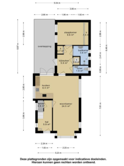
Via een elegante ronde voordeur betreed je de hal met meterkast, droge kelder en trapopgang. De lichte woonkamer is voorzien van een erker en een L-vormige keuken met luxe inbouwapparatuur, softclose lades en dubbele openslaande deuren naar de zonnige achtertuin. De aanbouw omvat een hal/bijkeuken met een vaste kast inclusief wasruimte en een kast met de cv-opstelling. Verder is er een toiletruimte met wandcloset en fontein, een badkamer met inloopdouche en een wastafel met wastafelmeubel, en een tweepersoonsslaapkamer met een grote kastenwand.

1e etage:
Op de eerste etage vind je een overloop die leidt naar twee royale slaapkamers en extra bergruimte.

2e etage:
Via een vlizotrap bereik je de tweede etage.

Kelder:
De kelder is toegankelijk via de hal aan de voorzijde van het huis.

Buiten:
Buiten beschikt de woning over een ruime tuin en prachtige zonneterrassen in combinatie met overkappingen; royale bergruimtes van in totaal circa 25m² en meerdere luxe overkappingen die voor diverse doeleinden geschikt zijn. Ook is er zowel een eigen oprit als een gedeelde oprit aan de andere kant.

Het bruisende centrum van Surhuisterveen ligt op steenworp afstand van deze woning. Als grootste dorp in de gemeente Achtkarspelen vervult Surhuisterveen een centrale rol in de regio. Het dorp telt meer dan 100 winkels, vier grote supermarkten, een uitgebreide gezondheidspraktijk met onder meer huisartsen en een apotheek, en een multifunctioneel centrum inclusief buurthuis en bibliotheek. Ook zijn er kinderdagverblijven, zwembaden en een postkantoor binnen loopafstand. Surhuisterveen beschikt verder over drie basisscholen en een middelbare school, evenals uitgebreide sportfaciliteiten. Het levendige dag- en avondaanbod in de horeca draagt bij aan de unieke sfeer van het dorp. De welverdiende slogan van Surhuisterveen luidt dan ook: "Zo gezellig is er maar één!

Wil je wonen nabij het centrum van Surhuisterveen in een instapklare en zeer markante, levensloopbestendige en gelijkvloerse vrijstaande woning? Kom dan naar de Groningerstraat 75 in Surhuisterveen en ontdek het zelf met onze flexibele makelaars!

Kenmerken

Soort Eengezinswoning, Vrijstaande woning
Vraagprijs Prijs op aanvraag
Aangeboden 1 jaar geleden
Status Verkocht
Aanvaarding In overleg

Bekijk alle kenmerken...

Interesse?

Vraag een bezichtiging aan

Bekijk de omgeving

Ontdek de ligging van deze woning

Alle kenmerken

Bouw

Bouwvorm Bestaande bouw
Bouwjaar 1941
Bouwjaar omschrijving Naderhand tussen 2018 en 2024 compleet vernieuwd.
Onderhoud (binnen) Uitstekend
Toelichting Compleet gerenoveerd en verbouwd
Onderhoud (buiten) Uitstekend
Toelichting Compleet gerenoveerd en verbouwd
Dak Samengesteld dak
Dak materialen Pannen, Bitumineuze dakbedekking

Energie

Energielabel B
Einddatum 2034-04-17
Isolatie Dakisolatie, Muurisolatie, Vloerisolatie, Dubbel glas, HR-glas
Verwarming CV-ketel
Warm water CV-ketel
C.V.-ketel Intergas HRE Gas gestookte combiketel uit 2018 eigendom

Oppervlakken en inhoud

Perceeloppervlakte 390 m²
Woonoppervlakte 94 m²
Overige ruimten 8 m²
Inhoud 378 m³
Oppervlakte externe bergruimte 25 m²
Gebouwgebonden buitenruimte 18 m²

Buitenruimte

Ligging Aan drukke weg, In woonwijk, Open ligging
Tuin Tuin rondom (VERZORGD)
Tuin oppervlakte 300 m²
Ligging Gelegen op (bereikbaar via achterom)
Parkeren Openbaar parkeren
Parkeren Ruim voldoende parkeergelegenheid, ook op eigen terrein.

Indeling

Woonlagen 4 woonlagen
Kamers 4 kamers, waarvan 3 slaapkamers
Badkamers 1 badkamer(s) en 1 aparte toilet(ten)
Badkamervoorzieningen Douche, Wastafel, Wastafelmeubel, Inloopdouche, Vloerverwarming
Voorzieningen TV-kabel, Buitenzonwering, Dakraam, Glasvezelkabel, Zonnepanelen

Bestemming

Huidig gebruik Woonruimte
Huidige bestemming Woonruimte
Permanente bewoning Ja

Schuur / berging

Schuur / berging soort Vrijstaand (steen)
Voorzieningen Voorzien van elektra
Aantal 2

Kadaster SURHUIZUM B 6935

Oppervlakte 390 m²
Omvang Geheel perceel

Garage

Garage soort Garage mogelijk, Parkeerplaats

Vergelijkbaar in de buurt

...